Elérhető Otthon Start hitellel
Eladó újépítésű lakás,
U0048633
Cegléd
63 500 000 Ft
167 000 €
- 71,6m²
- 4 szoba
- földszint
ELADÓ ÚJÉPÍTÉSŰ TÁRSASHÁZI LAKÁS CEGLÉDEN!!!
Eladó Cegléden, az Alszegi út közelében egy 2 lakásos társasházban kialakított 71 nm-es lakás.
Az ingatlan műszaki paraméterei:
- Tartó szerkezet:
Az épület alapozása sávalapozással történik, 30 cm vastag viablokk falazat
- Válaszfalak :
10 cm vastag válaszfal téglából készülnek
- Födém szerkezet :
Az épületen fa gerendás födém készül fenyő gerendákkal
- Tetőszerkezet :
Fából készül, hagyományos ács és csavaros kötésekkel, fogópárokkal
- Nyílászáró szerkezetek : műanyag
- Burkolatok :
Meleg padlós helyiségnél laminált parketta, hidegpadlós helyiségeknél kerámia burkolat
- Térburkolat: Viacolor térburkolat készül
- Fűtés: Hőszivattyús fűtés plusz,zárt égésterű gázkazánokkal, radiátoros fűtéssel lesz megoldva
- Parkoló: A telken belül két gépkocsi parkolása megoldott
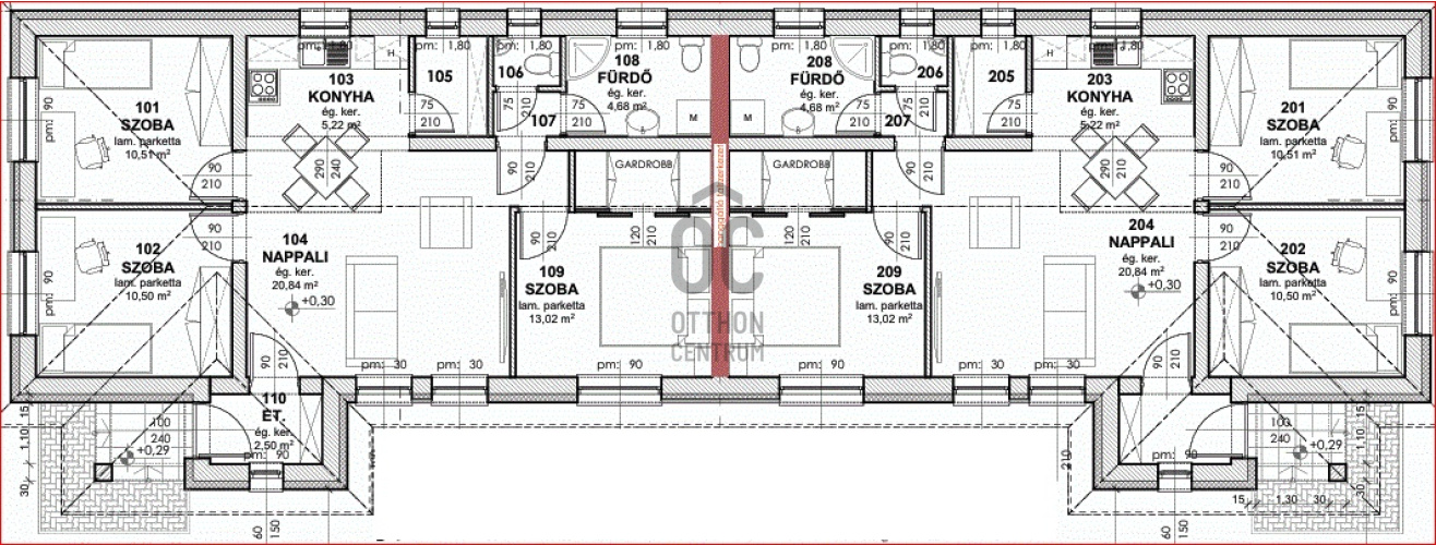
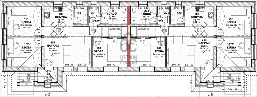
Elosztása: nappali, konyha + 3 hálószoba
Bővebb információkért keressen bizalommal!
Ne hagyja ki ezt a remek lehetőséget!
Irodánkban teljes körű jogi és bankfüggetlen hiteltanácsadással segítjük vásárlását.
A hirdetésben szereplő információk a megbízótól kapott adatok alapján készültek, pontosságukért felelősséget nem vállalunk!
Az ingatlan műszaki paraméterei:
- Tartó szerkezet:
Az épület alapozása sávalapozással történik, 30 cm vastag viablokk falazat
- Válaszfalak :
10 cm vastag válaszfal téglából készülnek
- Födém szerkezet :
Az épületen fa gerendás födém készül fenyő gerendákkal
- Tetőszerkezet :
Fából készül, hagyományos ács és csavaros kötésekkel, fogópárokkal
- Nyílászáró szerkezetek : műanyag
- Burkolatok :
Meleg padlós helyiségnél laminált parketta, hidegpadlós helyiségeknél kerámia burkolat
- Térburkolat: Viacolor térburkolat készül
- Fűtés: Hőszivattyús fűtés plusz,zárt égésterű gázkazánokkal, radiátoros fűtéssel lesz megoldva
- Parkoló: A telken belül két gépkocsi parkolása megoldott
Elosztása: nappali, konyha + 3 hálószoba
Bővebb információkért keressen bizalommal!
Ne hagyja ki ezt a remek lehetőséget!
Irodánkban teljes körű jogi és bankfüggetlen hiteltanácsadással segítjük vásárlását.
A hirdetésben szereplő információk a megbízótól kapott adatok alapján készültek, pontosságukért felelősséget nem vállalunk!
Regisztrációs szám
U0048633
Az ingatlan adatai
Értékesités
eladó
Jogi státusz
új
Jelleg
lakás
Építési mód
tégla
Méret
71,6 m²
Bruttó méret
75 m²
Fűtés
hőszivattyú
Belmagasság
265 cm
Tájolás
Dél
Lépcsőház típusa
nincs
Állapot
Kiváló
Homlokzat állapota
Kiváló
Lépcsőház állapota
Kiváló
Építés éve
2025
Fürdőszobák száma
1
Fekvés
utcai
Víz
Van
Gáz
Utcán
Villany
Van
Csatorna
Van
Helyiségek
szoba
10.51 m²
szoba
10.5 m²
szoba
13.02 m²
nappali
20.84 m²
konyha
5.22 m²
kamra
2.34 m²
előszoba
2.5 m²
fürdőszoba
4.68 m²
wc
1.08 m²
közlekedő
0.96 m²