105 000 000 Ft
279 000 €
- 88,7m²
- 4 szoba
- 2. emelet
Néhány percre a megújult Egressy tértől újépítésű belső kétszintes lakás ELADÓ!
ALSÓRÁKOS kedvelt utcájában ELADÓ egy 88 m2-es, BELSŐ KÉTSZINTES újépítésű lakás.
A tégla építésű ház 5 lakása a XIV kerületben, társasházi, zöldövezeti környezetben épült. Már az összes lakás elkelt. Ablakos kialakítású zárt lépcsőház. A társasházhoz biciklitároló került kiépítésre.
A Rákos -patak a közelben található, mert mindössze 5-8 perc séta, ami ideális biciklizésre, kocogásra, sétálásra, kutyasétáltatásra.
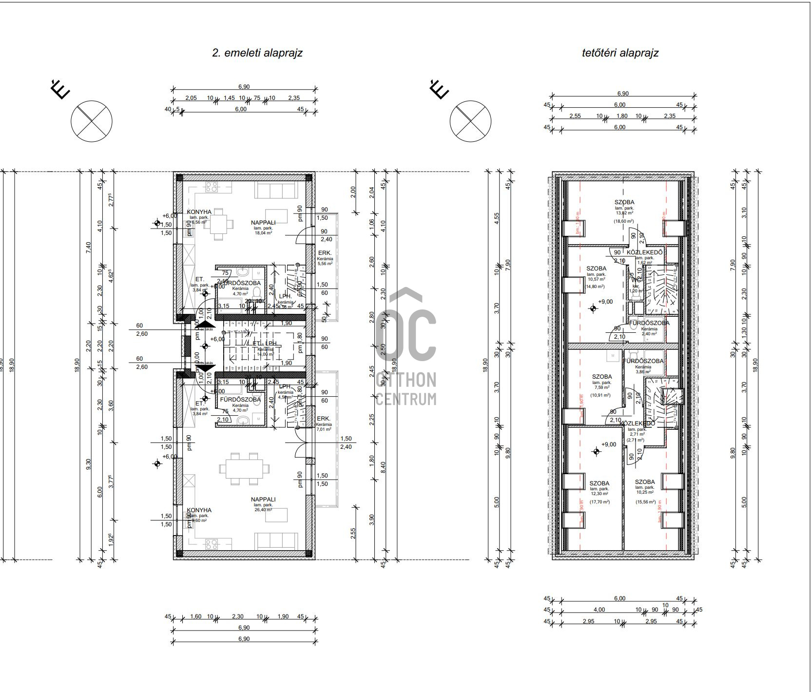
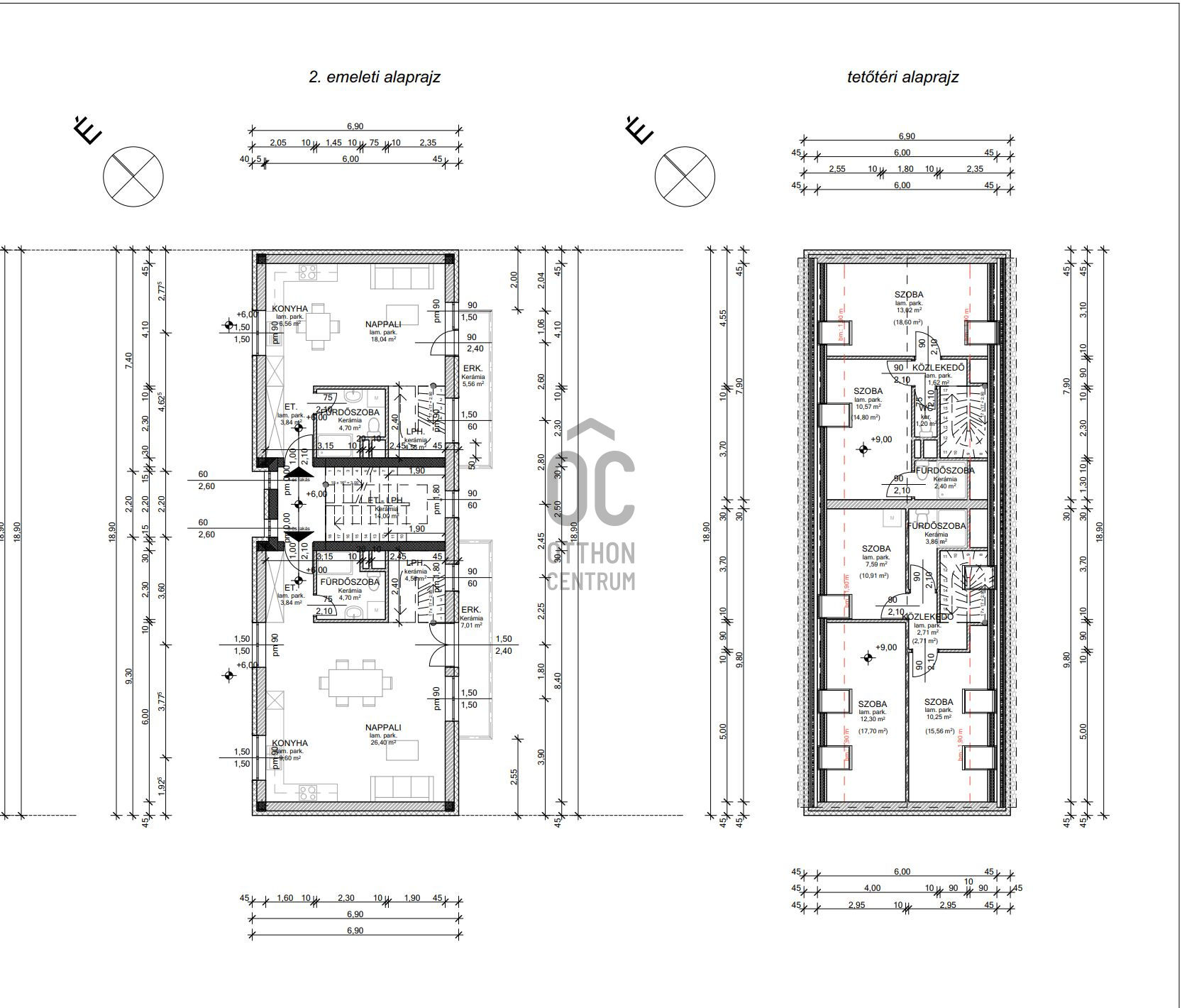
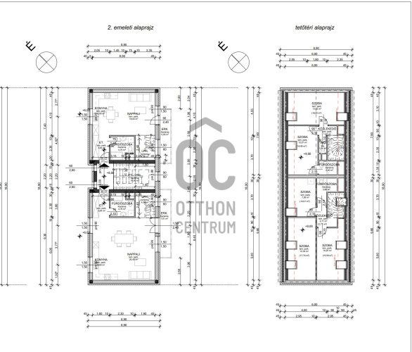
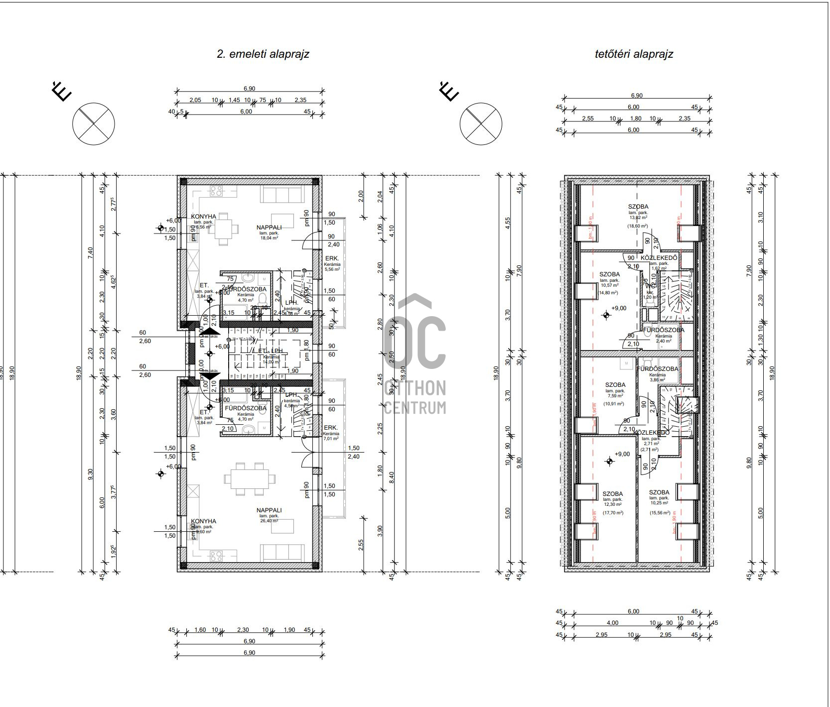
Az UTOLSÓ eladó lakás paraméterei:
-nettó 88,79 m2 (bruttó: 103,73 m2)
-belmagasság: 260 m
- műanyag nyílászárók
-hőszivattyú (hűtő-fűtő)
-klíma
-hidegburkolat választható
-melegburkolat (parketta)választható
-szaniterek
-riasztó kiállás előkészített verzió
-fedett kocsibeálló (A meghirdetett vételár a gépkocsi beálló árát is tartalmazza!)
Az épületről:
-elektromos kapu
-zárt lépcsőház nyitható ablakokkal
-biciklitároló
-kukatároló
-gépkocsi beállók
A vételár NEM TARTALMAZ konyhabútort!!
Műszaki paraméterek:
alapozás: -minőségi beton
talajnedvesség elleni szigetelés: -CV4 jelű 4,0 mm vastag bitumenes szigetelőlemez + PORMEX RAPID
járda: -kavics ágyon, beton, cement és bitumen az előírt technológiával elkészítve
gépkocsi behajtó: -térkő burkolás jogszabálynak megfelelően
falazat: PHOROTHERM 30 N+ F blokktégla
födém: hagyományos szerkezetű fagerenda + gipszkarton burkolat
tetőszerkezet (45 fokos):-téglavörös színű betoncserép
szigetelés : -külső falon 15 cm -es EPS
esővíz elvezetés: - ereszcsatorna, szürke bádogból (ereszkinyúlás 20 cm)
nyílászárók:-fehér műanyag ablakok
-belső falak festése: fehér műanyag bázisú falfestés
-külső felület színezése: Dryvit rendszerű fehér és dióbarna illetve lábazaton sötétbarna homlokzatvakolat,
burkolatok: parketta, kerámialap
Közelben lévő létesítmények:
-élelmiszer boltok, kifőzde, étterem, kávézó, iskola, óvoda, piac (kocsival 8 perc), fogászati centrum, strandfürdő, cukrászdák
- Közlekedés és tömegközlekedés:
-3, 62, 62A villamos, 32 -es busz (Örs vezér tere (Árkád, Sugár, IKEA 15 perc)
-77 troli (Egressy tér -től Puskás stadion 2-es metro felé)
Ajánlom családoknak vagy befektetőknek.
Egyedi igényekre szabott lakáshitelekkel állunk rendelkezésére.
Bankfüggetlen Hitel Centrumunk az országban elérhető összes bank és hitelintézet ajánlatát versenyezteti az Ön számára díjmentesen. Munkatársaink nagy szakmai tapasztalattal várják Önt az előre egyeztetett időpontban akár a normál munkaidő után is.
Bővebb információért és a megtekintéssel kapcsolatban hívjon bizalommal!
A tégla építésű ház 5 lakása a XIV kerületben, társasházi, zöldövezeti környezetben épült. Már az összes lakás elkelt. Ablakos kialakítású zárt lépcsőház. A társasházhoz biciklitároló került kiépítésre.
A Rákos -patak a közelben található, mert mindössze 5-8 perc séta, ami ideális biciklizésre, kocogásra, sétálásra, kutyasétáltatásra.
Az UTOLSÓ eladó lakás paraméterei:
-nettó 88,79 m2 (bruttó: 103,73 m2)
-belmagasság: 260 m
- műanyag nyílászárók
-hőszivattyú (hűtő-fűtő)
-klíma
-hidegburkolat választható
-melegburkolat (parketta)választható
-szaniterek
-riasztó kiállás előkészített verzió
-fedett kocsibeálló (A meghirdetett vételár a gépkocsi beálló árát is tartalmazza!)
Az épületről:
-elektromos kapu
-zárt lépcsőház nyitható ablakokkal
-biciklitároló
-kukatároló
-gépkocsi beállók
A vételár NEM TARTALMAZ konyhabútort!!
Műszaki paraméterek:
alapozás: -minőségi beton
talajnedvesség elleni szigetelés: -CV4 jelű 4,0 mm vastag bitumenes szigetelőlemez + PORMEX RAPID
járda: -kavics ágyon, beton, cement és bitumen az előírt technológiával elkészítve
gépkocsi behajtó: -térkő burkolás jogszabálynak megfelelően
falazat: PHOROTHERM 30 N+ F blokktégla
födém: hagyományos szerkezetű fagerenda + gipszkarton burkolat
tetőszerkezet (45 fokos):-téglavörös színű betoncserép
szigetelés : -külső falon 15 cm -es EPS
esővíz elvezetés: - ereszcsatorna, szürke bádogból (ereszkinyúlás 20 cm)
nyílászárók:-fehér műanyag ablakok
-belső falak festése: fehér műanyag bázisú falfestés
-külső felület színezése: Dryvit rendszerű fehér és dióbarna illetve lábazaton sötétbarna homlokzatvakolat,
burkolatok: parketta, kerámialap
Közelben lévő létesítmények:
-élelmiszer boltok, kifőzde, étterem, kávézó, iskola, óvoda, piac (kocsival 8 perc), fogászati centrum, strandfürdő, cukrászdák
- Közlekedés és tömegközlekedés:
-3, 62, 62A villamos, 32 -es busz (Örs vezér tere (Árkád, Sugár, IKEA 15 perc)
-77 troli (Egressy tér -től Puskás stadion 2-es metro felé)
Ajánlom családoknak vagy befektetőknek.
Egyedi igényekre szabott lakáshitelekkel állunk rendelkezésére.
Bankfüggetlen Hitel Centrumunk az országban elérhető összes bank és hitelintézet ajánlatát versenyezteti az Ön számára díjmentesen. Munkatársaink nagy szakmai tapasztalattal várják Önt az előre egyeztetett időpontban akár a normál munkaidő után is.
Bővebb információért és a megtekintéssel kapcsolatban hívjon bizalommal!
Regisztrációs szám
U0048558
Az ingatlan adatai
Értékesités
eladó
Jogi státusz
új
Jelleg
lakás
Építési mód
tégla
Méret
88,7 m²
Bruttó méret
103,7 m²
Terasz / erkély mérete
7,1 m²
Fűtés
megújuló
Belmagasság
260 cm
Lakáson belüli szintszám
2
Tájolás
Dél-kelet
Lépcsőház típusa
zárt lépcsőház
Állapot
Kiváló
Homlokzat állapota
Kiváló
Lépcsőház állapota
Kiváló
Építés éve
2024
Fürdőszobák száma
2
Fekvés
udvari
Víz
Van
Gáz
Van
Villany
Van
Csatorna
Van
Helyiségek
előszoba
3.84 m²
egyéb helyiség
4.56 m²
konyha
9.6 m²
nappali
26.4 m²
fürdőszoba
4.7 m²
szoba
12.3 m²
szoba
10.25 m²
közlekedő
2.71 m²
fürdőszoba
3.86 m²
szoba
10.57 m²
erkély
7.01 m²