222 500 000 Ft
573 000 €
- 130m²
- 4 szoba










Álmai otthona várja Aranyhegyen! – Új építésű, modern ikerház fél eladó
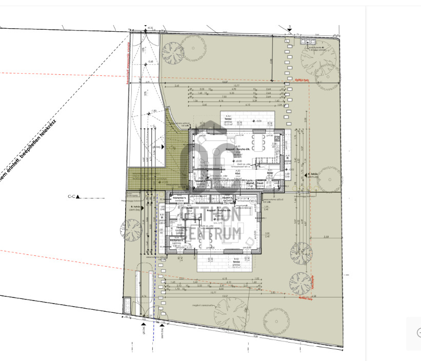
Tapasztalt fejlesztő kínál eladásra Aranyhegyen egy új építésű, 4 szobás (nappali + 3 hálószoba) ikerház felet magas műszaki tartalommal, sík, kizárólagos használatú, teljesen szeparált telekrésszel. Az egyedi adottságoknak köszönhetően a kínált ingatlan olyan, mintha önálló családi házat venne. Az ingatlan Aranyhegy közepén, egy már teljesen kiépült, szinte kizárólag új építésű házakkal körülvett lakókörnyezetben helyezkedik el, így ez az utolsó beépítetlen telek a környéken!
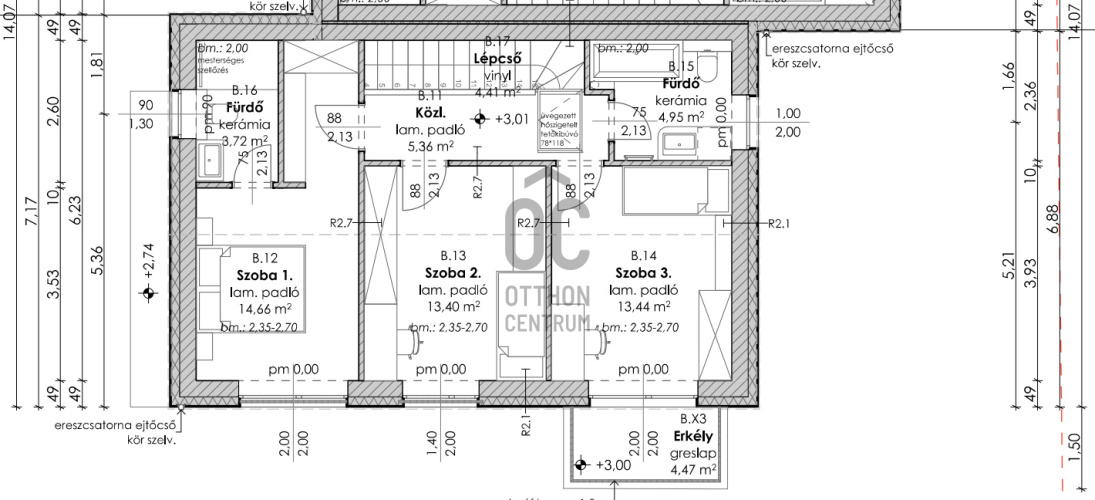
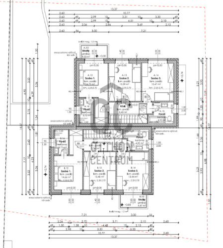
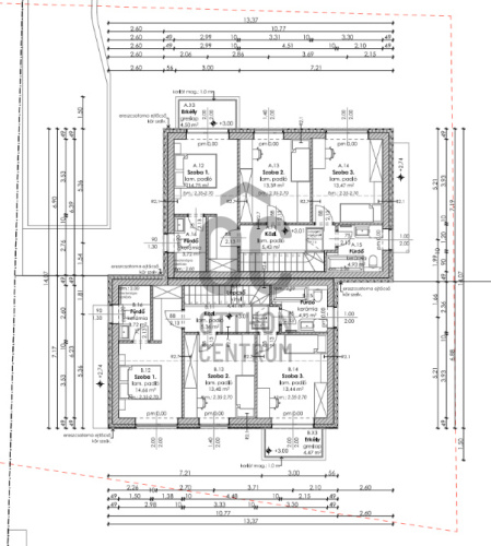
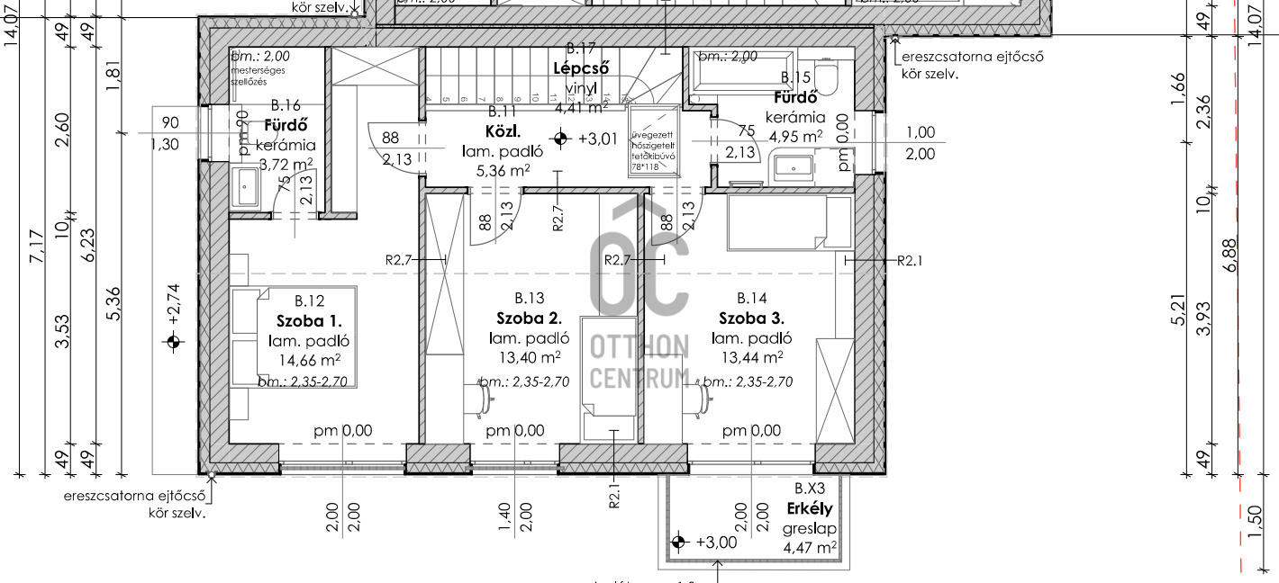
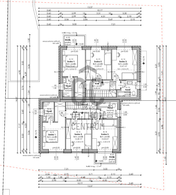
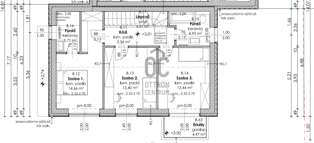
A lakótér mérete nettó 118,5m2, amely tökéletes elosztást kínál. A földszinten tágas nappali-konyha-étkező, előtér, fürdő és egy háztartási helyiség, míg az emeleten 3 hálószoba és 2 fürdőszoba kap helyet a mellékelt alaprajzok szerinti ideális elrendezésben. A nappaliból leválasztva akár egy 5. szoba is kialakítható eseti igény szerint.
Ezen kívül az eladásra kínált ingatlan részét képezi még egy 14nm-es kertre néző terasz, illetve egy 4,5nm-es emeleti erkély panorámás kilátással, valamint a 2db kényelmes méretű gépkocsi udvari beálló.
Energiatakarékos, környezettudatos kialakítás:
Az ingatlan alapesetben BB energetikai besorolással rendelkezik, azonban napelemek telepítésével AA++ kategóriára fejleszthető – garantált energiatakarékosság és fenntarthatóság!
Kiemelkedő műszaki tartalom:
Monolit vasbeton födém, kerámia falazat;
Hőtechnikailag méretezett grafitos hőszigetelés;
Háromrétegű nyílászárók;
Levegő-víz hőszívattyús, energiatakarékos hűtés-fűtési rendszer – mennyezet hűtés-fűtés, padlófűtés;
Motoros redőnyök szúnyoghálóval;
Magas minőségű hideg- és melegburkolatok, szaniterek, csaptelepek és belső nyílászárók,
motoros kapu
videó kaputelefon
durva tereprendezés
Az ár kulcsrakész állapotra vonatkozik.
Szolgáltatások a közelben: élelmiszerbolt, pékség, játszótér, kávézó, kutyafuttató
Tömegközlekedés: A 219-es és 160-as buszjáratok megállói 5-10 perc sétatávolságon belül
Átadás várható ideje: 2026 II. félév
Teljes körű ügyintézéssel várom a hívását a hét minden napján!
Tapasztalt fejlesztő kínál eladásra Aranyhegyen egy új építésű, 4 szobás (nappali + 3 hálószoba) ikerház felet magas műszaki tartalommal, sík, kizárólagos használatú, teljesen szeparált telekrésszel. Az egyedi adottságoknak köszönhetően a kínált ingatlan olyan, mintha önálló családi házat venne. Az ingatlan Aranyhegy közepén, egy már teljesen kiépült, szinte kizárólag új építésű házakkal körülvett lakókörnyezetben helyezkedik el, így ez az utolsó beépítetlen telek a környéken!
A lakótér mérete nettó 118,5m2, amely tökéletes elosztást kínál. A földszinten tágas nappali-konyha-étkező, előtér, fürdő és egy háztartási helyiség, míg az emeleten 3 hálószoba és 2 fürdőszoba kap helyet a mellékelt alaprajzok szerinti ideális elrendezésben. A nappaliból leválasztva akár egy 5. szoba is kialakítható eseti igény szerint.
Ezen kívül az eladásra kínált ingatlan részét képezi még egy 14nm-es kertre néző terasz, illetve egy 4,5nm-es emeleti erkély panorámás kilátással, valamint a 2db kényelmes méretű gépkocsi udvari beálló.
Energiatakarékos, környezettudatos kialakítás:
Az ingatlan alapesetben BB energetikai besorolással rendelkezik, azonban napelemek telepítésével AA++ kategóriára fejleszthető – garantált energiatakarékosság és fenntarthatóság!
Kiemelkedő műszaki tartalom:
Monolit vasbeton födém, kerámia falazat;
Hőtechnikailag méretezett grafitos hőszigetelés;
Háromrétegű nyílászárók;
Levegő-víz hőszívattyús, energiatakarékos hűtés-fűtési rendszer – mennyezet hűtés-fűtés, padlófűtés;
Motoros redőnyök szúnyoghálóval;
Magas minőségű hideg- és melegburkolatok, szaniterek, csaptelepek és belső nyílászárók,
motoros kapu
videó kaputelefon
durva tereprendezés
Az ár kulcsrakész állapotra vonatkozik.
Szolgáltatások a közelben: élelmiszerbolt, pékség, játszótér, kávézó, kutyafuttató
Tömegközlekedés: A 219-es és 160-as buszjáratok megállói 5-10 perc sétatávolságon belül
Átadás várható ideje: 2026 II. félév
Teljes körű ügyintézéssel várom a hívását a hét minden napján!
Regisztrációs szám
U0047609
Az ingatlan adatai
Értékesités
eladó
Jogi státusz
új
Jelleg
ház
Építési mód
tégla
Méret
130 m²
Bruttó méret
160 m²
Telek méret
400 m²
Terasz / erkély mérete
23,5 m²
Fűtés
hőszivattyú
Belmagasság
275 cm
Lakáson belüli szintszám
2
Tájolás
Dél-kelet
Panoráma
Zöldre néző panoráma
Állapot
Kiváló
Homlokzat állapota
Kiváló
Környék
csendes, jó közlekedés, zöld
Építés éve
2026
Fürdőszobák száma
3
Garázs
Benne van az árban
Víz
Van
Villany
Van
Csatorna
Van
Tároló
Önálló
Helyiségek
nappali-konyha
43 m²
szoba
15 m²
szoba
13.4 m²
szoba
13.4 m²
fürdőszoba-wc
3 m²
fürdőszoba-wc
5 m²
fürdőszoba-wc
4 m²

Andrejcsik Nikoletta
Hitelszakértő