Eladó újépítésű lakás, P4815-1-01-02-005
Debrecen, Hatvan-utcai kert

82 200 000 Ft

210 000 €

  • 52,1m²
  • 3 szoba
  • 2. emelet

Újépítésű 5 lakásos társasház a Hatvan utcai kertben.

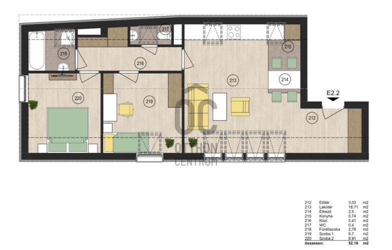
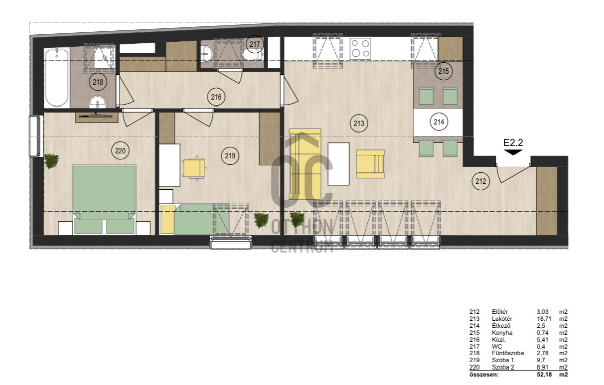
Ez az ingatlan a 2. emeleten, a tetőtérben helyezkedik el, hasznos alaptarületet : 52,18 m2 , de az 1,90 méter alatti terület is jól kihasználható, mivel a főfal , attika fal: 1,2 méter magas, onnan indul a tető, tehát az alatti lévő terület könnyen bútorozható.

Regisztrációs szám

P4815-1-01-02-005

Az ingatlan adatai

Értékesités
eladó
Jogi státusz
új
Jelleg
lakás
Építési mód
tégla
Méret
52,1 m²
Bruttó méret
62,1 m²
Fűtés
hőszivattyú (levegő-levegő)
Belmagasság
270 cm
Tájolás
Dél
Lépcsőház típusa
zárt lépcsőház
Állapot
Kiváló
Homlokzat állapota
Kiváló
Lépcsőház állapota
Kiváló
Környék
csendes, jó közlekedés, zöld, központi
Építés éve
2027
Fürdőszobák száma
1
Fekvés
udvari
Garázs
Külön vásárolható
Garázs férőhely
1
Víz
Van
Villany
Van
Csatorna
Van
Tároló
Külön vásárolható

Helyiségek

nappali
15.95 m²
konyha-étkező
6 m²
szoba
9.7 m²
szoba
8.91 m²
fürdőszoba
2.78 m²
wc
0.4 m²
Plébán László
Plébán László

Hitelszakértő

Irodánk kínálatából - Debrecen - Hatvan utca

for sale apartment

Index image
14

for sale apartment

Index image
data_sheet.details.realestate.section.main.otthonstart_flag.label
15

for sale apartment

Index image
data_sheet.details.realestate.section.main.otthonstart_flag.label
35

eladó újépítésű ikerház

Index image
Elérhető Otthon Start hitellel
7