229 000 000 Ft
600 000 €
- 128m²
- 4 szoba
- földszint
Fedezze fel álmai otthonát Balatonakarattyán – új,
Ez az ingatlan hirdetés kifejezetten azoknak az időseknek szól, akik a kényelmet és a prémium életszínvonalat keresik.
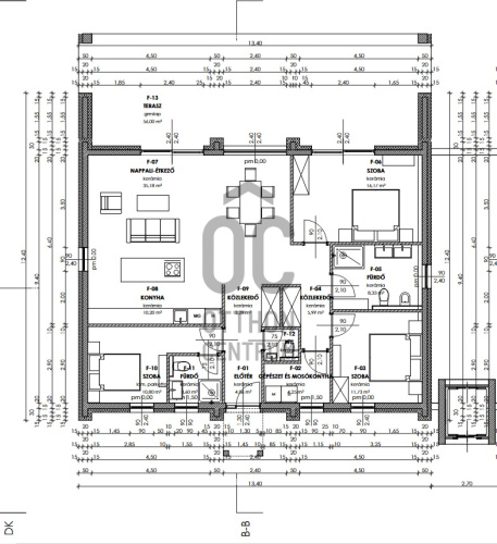
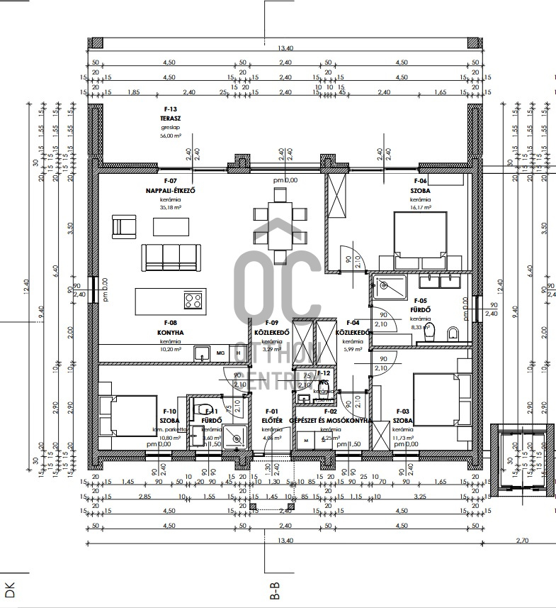
A figyelemre méltó, új lakás, amelynek alapterülete 110 nm, egy igazi gyöngyszem a piacon. A tágas nappali és a konyhaszigetes amerikai konyha ideális teret biztosít a családi összejövetelekhez és a baráti találkozókhoz.
A lakásban három hálószoba található, így bőven van hely a vendégek fogadására is. Két fürdőszobával rendelkezik, ami különösen praktikus lehet a nagyobb családok számára.
A terasz, amely 36 nm-es, csodás tóra néző kilátással büszkélkedik, tökéletes helyszín a reggeli kávézásra vagy a naplemente élvezésére. Az ingatlan állapota kiváló, a prémium kivitelezés pedig garantálja a hosszú távú megelégedettséget. A hőszivattyús fűtés és hűtés modern kényelmet nyújt, miközben az elektromos autó töltés lehetősége is adott, így a környezettudatos életmódot követők számára ideális választás.
A lakás akadálymentesített, így minden korosztály számára könnyen megközelíthető, és az integrált szúnyoghálóval, valamint motoros redőnyökkel felszerelt ablakokkal a kényelmet és a biztonságot szolgálja. A kertkapcsolatos lakásban egyedi tervezésű kandalló is található, amely a hideg téli estéken otthonos hangulatot teremt. Az automata öntözőrendszer pedig a kert karbantartását egyszerűsíti, így több időt tölthetsz a pihenéssel.
A környék csendes és biztonságos, ideális helyszín a nyugodt életvitelhez. A közlekedési lehetőségek is kiválóak, hiszen a közelben található buszmegállók és vonatállomások gyors elérhetőséget biztosítanak a város központjához. A közeli boltok, gyógyszertárak és orvosi rendelők pedig megkönnyítik a mindennapi életet. Ez az ingatlan nemcsak egy új otthon, hanem egy életstílus is, amely a kényelmet és a biztonságot helyezi előtérbe. Ha bármilyen kérdésed van, vagy szeretnéd megtekinteni ezt a különleges lakást, bátran keresd fel a megadott elérhetőségeken. Bizalommal várjuk a megkeresésedet!
A figyelemre méltó, új lakás, amelynek alapterülete 110 nm, egy igazi gyöngyszem a piacon. A tágas nappali és a konyhaszigetes amerikai konyha ideális teret biztosít a családi összejövetelekhez és a baráti találkozókhoz.
A lakásban három hálószoba található, így bőven van hely a vendégek fogadására is. Két fürdőszobával rendelkezik, ami különösen praktikus lehet a nagyobb családok számára.
A terasz, amely 36 nm-es, csodás tóra néző kilátással büszkélkedik, tökéletes helyszín a reggeli kávézásra vagy a naplemente élvezésére. Az ingatlan állapota kiváló, a prémium kivitelezés pedig garantálja a hosszú távú megelégedettséget. A hőszivattyús fűtés és hűtés modern kényelmet nyújt, miközben az elektromos autó töltés lehetősége is adott, így a környezettudatos életmódot követők számára ideális választás.
A lakás akadálymentesített, így minden korosztály számára könnyen megközelíthető, és az integrált szúnyoghálóval, valamint motoros redőnyökkel felszerelt ablakokkal a kényelmet és a biztonságot szolgálja. A kertkapcsolatos lakásban egyedi tervezésű kandalló is található, amely a hideg téli estéken otthonos hangulatot teremt. Az automata öntözőrendszer pedig a kert karbantartását egyszerűsíti, így több időt tölthetsz a pihenéssel.
A környék csendes és biztonságos, ideális helyszín a nyugodt életvitelhez. A közlekedési lehetőségek is kiválóak, hiszen a közelben található buszmegállók és vonatállomások gyors elérhetőséget biztosítanak a város központjához. A közeli boltok, gyógyszertárak és orvosi rendelők pedig megkönnyítik a mindennapi életet. Ez az ingatlan nemcsak egy új otthon, hanem egy életstílus is, amely a kényelmet és a biztonságot helyezi előtérbe. Ha bármilyen kérdésed van, vagy szeretnéd megtekinteni ezt a különleges lakást, bátran keresd fel a megadott elérhetőségeken. Bizalommal várjuk a megkeresésedet!
Regisztrációs szám
P4739-1-01-FZ-001
Az ingatlan adatai
Értékesités
eladó
Jogi státusz
új
Jelleg
lakás
Építési mód
tégla
Méret
128 m²
Bruttó méret
146 m²
Terasz / erkély mérete
36 m²
Kert méret
200 m²
Fűtés
hőszivattyú
Belmagasság
270 cm
Tájolás
Nyugat
Panoráma
folyóra tóra néző panoráma
Lépcsőház típusa
zárt lépcsőház
Állapot
Kiváló
Homlokzat állapota
Kiváló
Lépcsőház állapota
Kiváló
Környék
csendes, központi
Építés éve
2026
Fürdőszobák száma
2
Fekvés
kertre néző
Társaház kert
igen
Garázs
Külön vásárolható
Víz
Van
Villany
Van
Csatorna
Van
Lift
van
Kertkapcsolatos
igen
Tároló
Külön vásárolható
Vízpart távolsága
500 méterre
Helyiségek
nappali-konyha
45 m²
szoba
16 m²
szoba
11 m²
szoba
11 m²
fürdőszoba-wc
8 m²
fürdőszoba-wc
4 m²