171 000 000 Ft
437 000 €
- 114m²
- 5 szoba


Regisztrációs szám
P4715-1-02-NA-001
Az ingatlan adatai
Értékesités
eladó
Jogi státusz
új
Jelleg
ház
Építési mód
tégla
Méret
114 m²
Bruttó méret
124 m²
Telek méret
315 m²
Terasz / erkély mérete
5 m²
Kert méret
252 m²
Fűtés
values.realestate.futes.27
Belmagasság
265 cm
Lakáson belüli szintszám
2
Tájolás
Dél-nyugat
Állapot
Kiváló
Homlokzat állapota
Kiváló
Környék
csendes, zöld
Építés éve
2026
Fürdőszobák száma
2
Társaház kert
igen
Garázs
Benne van az árban
Fedett beállók száma
1
Víz
Van
Villany
Van
Csatorna
Van
Tároló
Önálló
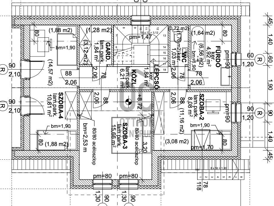
Helyiségek
nappali-konyha
31.5 m²
szoba
9.45 m²
háztartási helyiség
5.1 m²
zuhanyzó
3.3 m²
előszoba
7.5 m²
kamra
2 m²
terasz
5 m²
szoba
10.8 m²
szoba
15.66 m²
szoba
8.1 m²
fürdőszoba
4.92 m²
wc-kézmosó
1.1 m²
gardrób
2 m²
közlekedő
6.2 m²

Plébán László
Hitelszakértő