149 900 000 Ft
383 000 €
- 64,4m²
- 2 szoba
- földszint

Kertvárosi lakások amerikai mintára!
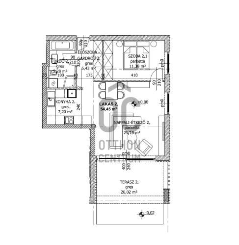
54,45 m2+20,02 m2 terasz, saját kizárólagos használatú kertrésszel!
Regisztrációs szám
P4705-1-0A-FZ-022
Az ingatlan adatai
Értékesités
eladó
Jogi státusz
új
Jelleg
lakás
Építési mód
tégla
Méret
64,4 m²
Bruttó méret
74,4 m²
Terasz / erkély mérete
20 m²
Fűtés
hőszivattyú
Belmagasság
266 cm
Tájolás
Dél-kelet
Lépcsőház típusa
zárt lépcsőház
Állapot
Kiváló
Homlokzat állapota
Kiváló
Lépcsőház állapota
Kiváló
Környék
csendes, zöld
Építés éve
2027
Fürdőszobák száma
1
Fekvés
udvari
Víz
Van
Villany
Van
Csatorna
Van
Lift
van
Helyiségek
nappali-étkező
25.16 m²
konyha
7.2 m²
fürdőszoba-wc
5.28 m²
hálószoba
11.38 m²
előszoba
5.43 m²
terasz
20.02 m²

Tóth Róbert
Hitelszakértő