216 300 000 Ft
552 000 €
- 92,5m²
- 4 szoba
- földszint

Kertvárosi lakások amerikai mintára!
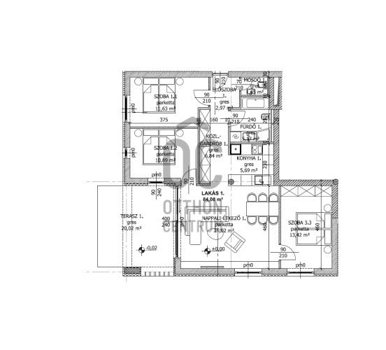
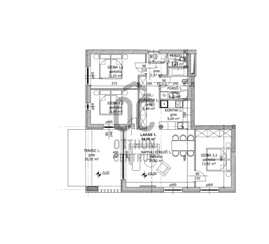
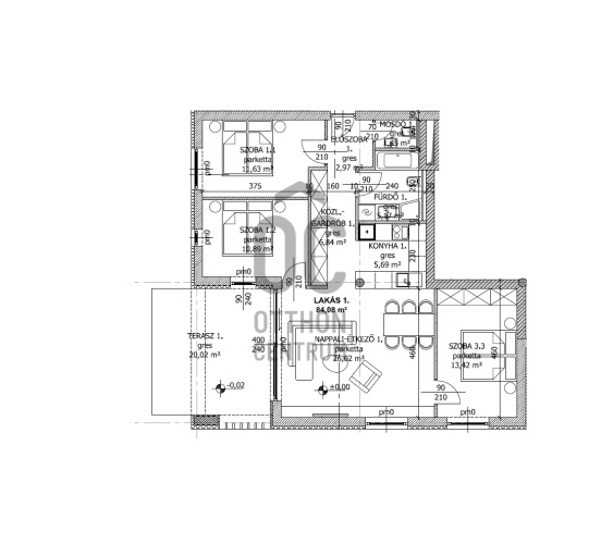
nettó 84,08 m2+20 m2 terasz+kizárólagos használatú kertrész
Regisztrációs szám
P4705-1-01-FZ-021
Az ingatlan adatai
Értékesités
eladó
Jogi státusz
új
Jelleg
lakás
Építési mód
tégla
Méret
92,5 m²
Bruttó méret
96,2 m²
Terasz / erkély mérete
7,3 m²
Fűtés
hőszivattyú
Belmagasság
266 cm
Tájolás
Dél-nyugat
Lépcsőház típusa
zárt lépcsőház
Állapot
Kiváló
Homlokzat állapota
Kiváló
Lépcsőház állapota
Kiváló
Környék
csendes, zöld
Építés éve
2027
Fürdőszobák száma
1
Fekvés
udvari
Víz
Van
Villany
Van
Csatorna
Van
Lift
van
Helyiségek
előszoba
2.97 m²
wc
1.45 m²
fürdőszoba
5.17 m²
szoba
11.33 m²
gardrób
6.84 m²
szoba
10.77 m²
konyha
5.69 m²
nappali-étkező
24.63 m²
szoba
13.64 m²
erkély
7.33 m²

Tóth Róbert
Hitelszakértő