187 814 320 Ft
480 000 €
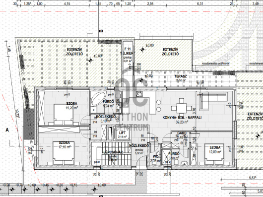
- 79,3m²
- 3 szoba
- földszint

Kertvárosi lakások amerikai mintára!
Regisztrációs szám
P4705-1-01-FZ-001
Az ingatlan adatai
Értékesités
eladó
Jogi státusz
új
Jelleg
lakás
Építési mód
tégla
Méret
79,3 m²
Bruttó méret
89,3 m²
Terasz / erkély mérete
20 m²
Fűtés
hőszivattyú
Belmagasság
260 cm
Tájolás
Dél-kelet
Lépcsőház típusa
zárt lépcsőház
Állapot
Kiváló
Homlokzat állapota
Kiváló
Lépcsőház állapota
Kiváló
Környék
csendes, zöld
Építés éve
2027
Fürdőszobák száma
1
Fekvés
udvari
Társaház kert
igen
Víz
Van
Villany
Van
Csatorna
Van
Lift
van
Kertkapcsolatos
igen
Helyiségek
előszoba
2.97 m²
wc
1.45 m²
fürdőszoba
5.17 m²
közlekedő
6.84 m²
konyha
5.69 m²
nappali-étkező
24.63 m²
szoba
11.63 m²
szoba
10.89 m²

Tóth Róbert
Hitelszakértő