Eladó újépítésű lakás, P4696-1-00-02-202
Budapest VIII. kerület, Corvin negyed

72 990 000 Ft

193 000 €

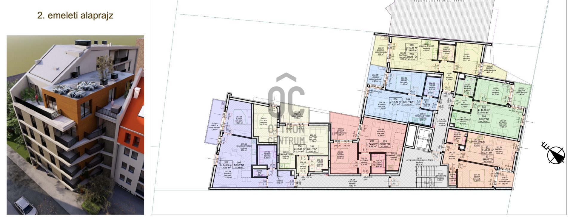
  • 43,5m²
  • 2 szoba
  • 2. emelet

❗️SMART HOME - Near Corvin District Newly built apartments at introductory prices! Home / Investment ⏺️ Location: - A dynamically developing area of the 8th district - Central city transportation - METRO and major transportation hubs within reach - Close to UNIVERSITIES and COLLEGES - Excellent infrastructure ❗️ Technical specifications: - High-quality construction suitable for the era - NGBS SMART HOME system - Heat pump heating system - Wall cooling - Green garden with irrigation system ⬆️ Apartments: - Super practical design - Selectable floor coverings - Terrace or balcony with every apartment - Garage available upon request ✅ Loan management - with favorable interest rates, tailored to individual needs! Legal assistance available upon request! Feel free to contact us!

Regisztrációs szám

P4696-1-00-02-202

Az ingatlan adatai

Értékesités
eladó
Jogi státusz
új
Jelleg
lakás
Építési mód
tégla
Méret
43,5 m²
Bruttó méret
46,2 m²
Terasz / erkély mérete
5,4 m²
Fűtés
hőszivattyú (levegő-levegő)
Belmagasság
260 cm
Tájolás
Dél-kelet
Lépcsőház típusa
zárt lépcsőház
Állapot
Kiváló
Homlokzat állapota
Kiváló
Lépcsőház állapota
Kiváló
Építés éve
2026
Fürdőszobák száma
1
Fekvés
utcai
Garázs
Külön vásárolható
Víz
Van
Villany
Van
Csatorna
Van
Lift
van

Helyiségek

előszoba
3.78 m²
nappali
19.2 m²
hálószoba
10.38 m²
konyha-étkező
5.74 m²
fürdőszoba
4.46 m²
Pongó Miklós
Pongó Miklós

Hitelszakértő

Irodánk kínálatából - VIII. kerület - József körút

eladó lakás

Index image
19

eladó családi ház

Index image
Elérhető Otthon Start hitellel
41

eladó családi ház

Index image
Elérhető Otthon Start hitellel
38

eladó újépítésű lakás

Index image
11

eladó újépítésű lakás

Index image
10

kiadó lakás

Index image
22