Eladó újépítésű lakás, P4648-1-0A-05-009
Budapest VII. kerület, Középső Erzsébetváros

153 031 500 Ft

394 000 €

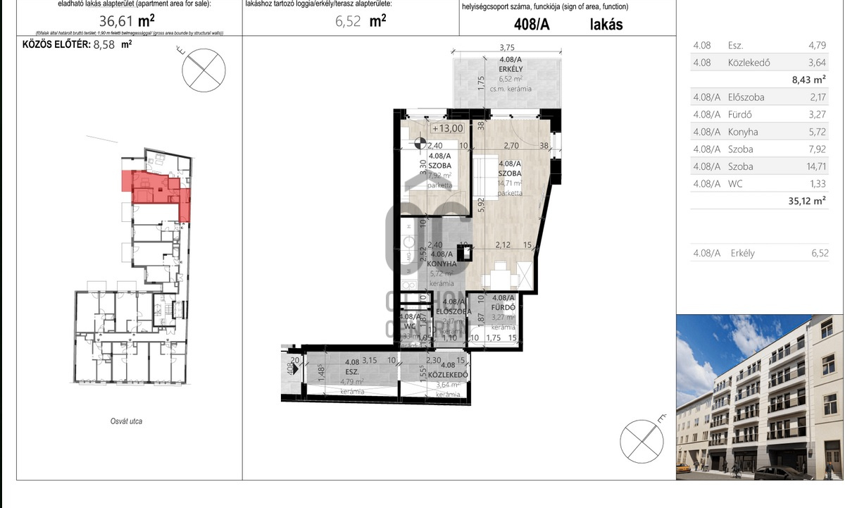
  • 64,4m²
  • 3 szoba
  • 5. emelet

Kiváló lokáció, értékálló befektetés!

Befektetőknek! Az ingatlan az 5. emeleten található. Kertre néző. Egy helyrajzi számon két különálló ingatlan került kialakításra.
Egy garzon és egy nappali + 1 hálós lakás. 70.242.900 Ft, 82.788.600 Ft. Ügyvédi megosztással külön is megvásárolhatók.

Regisztrációs szám

P4648-1-0A-05-009

Az ingatlan adatai

Értékesités
eladó
Jogi státusz
új
Jelleg
lakás
Építési mód
tégla
Méret
64,4 m²
Bruttó méret
82,2 m²
Terasz / erkély mérete
14,2 m²
Fűtés
hőszivattyú
Belmagasság
260 cm
Tájolás
Észak-nyugat
Lépcsőház típusa
zárt lépcsőház
Állapot
Kiváló
Homlokzat állapota
Kiváló
Lépcsőház állapota
Kiváló
Építés éve
2026
Fürdőszobák száma
2
Fekvés
kertre néző
Garázs
Külön vásárolható
Víz
Van
Villany
Van
Csatorna
Van
Lift
van

Helyiségek

nappali-konyha
0 m²
nappali-konyha
0 m²
hálószoba
0 m²
előszoba
0 m²
közlekedő
0 m²
wc-kézmosó
0 m²
fürdőszoba
0 m²
előszoba
0 m²
közlekedő
0 m²
előszoba
0 m²
konyha-étkező
0 m²
közlekedő
0 m²
nappali-konyha
0 m²
zuhanyzó
0 m²
Ruczek Krisztina
Ruczek Krisztina

Hitelszakértő

Irodánk kínálatából - V. kerület - Hild tér

for sale new construction family house

Index image
22

for sale apartment

Index image
25

for sale panel apartment

Index image
data_sheet.details.realestate.section.main.otthonstart_flag.label
11

for sale apartment

Index image
18

for sale apartment

Index image
23

for sale family house

Index image
12