Eladó újépítésű lakás, P4566-1-01-FZ-001
Budapest II. kerület, Rézmál

240 250 000 Ft

631 000 €

  • 74,7m²
  • 3 szoba
  • földszint

Exkluzív új építésű lakások Rózsadombon!

Kertkapcsolatos földszinti kis lakás kizárólagos használatú kertrésszel, igazi kuriózum ezen a környéken!
A lakáshoz tartozik egy garázshely, amelynek ára további 13.000.000 Ft, illetve egy tároló, amely további 5.000.000 Ft

Regisztrációs szám

P4566-1-01-FZ-001

Az ingatlan adatai

Értékesités
eladó
Jogi státusz
új
Jelleg
lakás
Építési mód
tégla
Méret
74,7 m²
Bruttó méret
82,6 m²
Terasz / erkély mérete
7,9 m²
Fűtés
hőszivattyú
Belmagasság
265 cm
Lakáson belüli szintszám
3
Tájolás
Dél-kelet
Lépcsőház típusa
zárt lépcsőház
Állapot
Kiváló
Homlokzat állapota
Kiváló
Lépcsőház állapota
Kiváló
Környék
csendes, zöld
Építés éve
2027
Fürdőszobák száma
1
Fekvés
utcai
Víz
Van
Villany
Van
Csatorna
Van
Lift
van
Kertkapcsolatos
igen
Tároló
Külön vásárolható

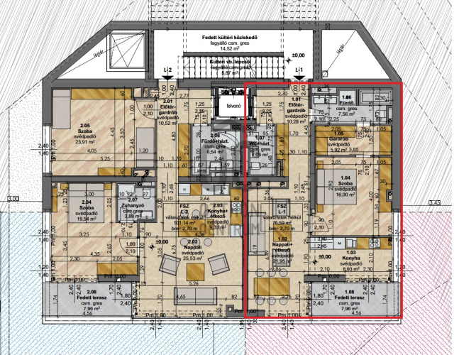
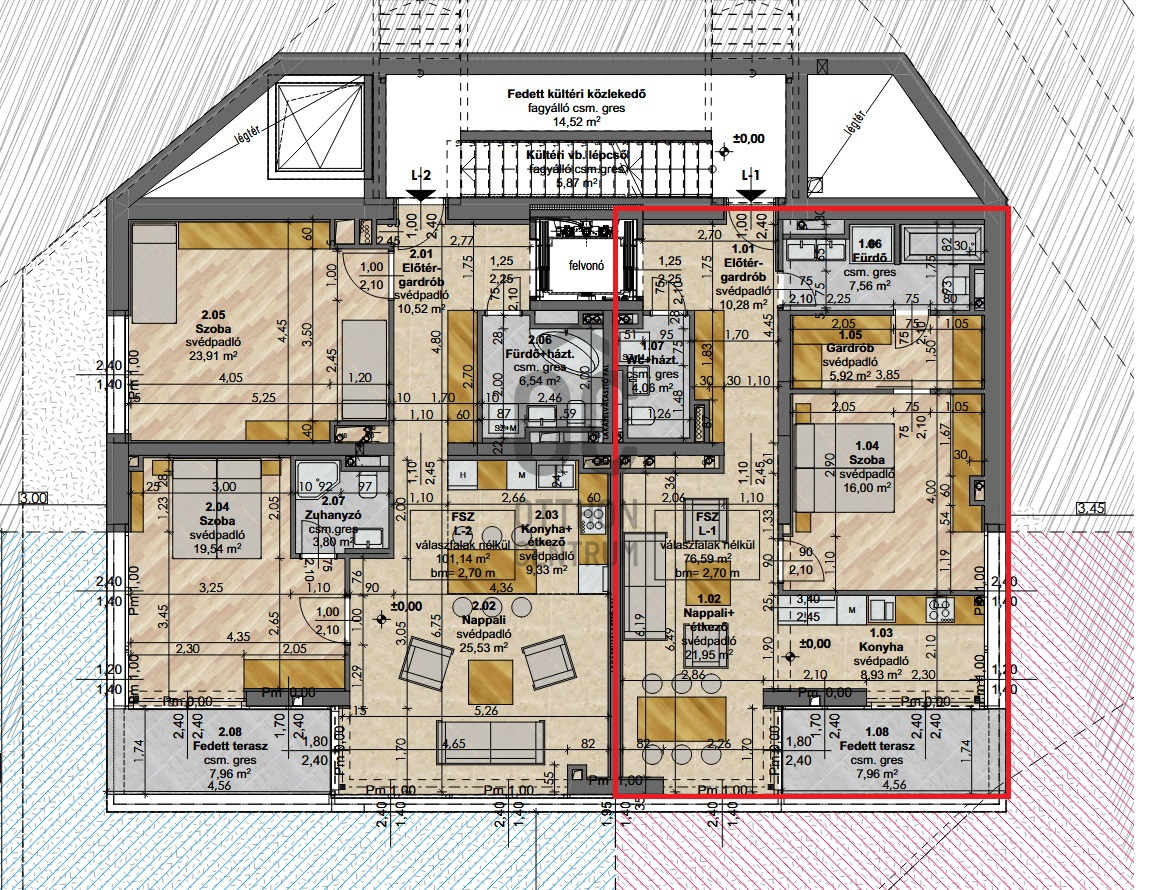
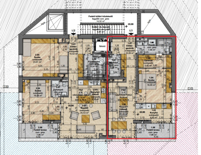
Helyiségek

közlekedő
10.28 m²
nappali-étkező
21.95 m²
konyha
8.93 m²
szoba
16 m²
gardrób
5.92 m²
fürdőszoba-wc
7.56 m²
háztartási helyiség
4.06 m²
terasz
7.96 m²
Tóth Róbert
Tóth Róbert

Hitelszakértő

Irodánk kínálatából - III. kerület - WFC

for sale apartment

Index image
19

for sale apartment

Index image
12

for rent apartment

Index image
36

for sale new construction apartment

Index image
18

for sale new construction apartment

Index image
18

for sale apartment

Index image
16

for sale developmental property

Index image
7

for rent new construction apartment

Index image
16

for rent new construction apartment

Index image
25

for rent new construction apartment

Index image
12

for sale apartment

Index image
16