113 458 000 Ft
294 000 €
- 62,1m²
- 3 szoba
- 3. emelet
Tisza István tértől sétatávolságra zöldövezeti új építésű lakás eladó
Herminamező (Budapest XIV. kerület, Zugló) zöldövezeti központjában, csodás, ősfás környezetben KIS LAKÁSSZÁMÚ társasházban kínálok eladásra egy amerikai konyhás nappali + 2 hálószobás TERASZOS és ERKÉLYES lakást most épülő társasházban, magas műszaki tartalommal.
Az épületet csendes, szinte forgalommentes, egyirányú utcában alakítják ki, amerikai konyhás nappalija, erkélye utcai nézetű, a mindkét hálószobából megközelíthető terasz a belső kertre néz.
Az ötszintes épület pinceszint + 4 emeletből áll:
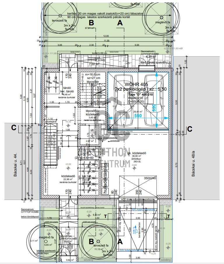
- a pinceszinten 2 állásos, parkológépes teremgarázs beálló, tárolók,
- a földszinten át juthatunk ki a közös kertbe, itt kerékpártárolók és szintén a parkológépes teremgarázsbeálló található,
- a zárt lépcsőházas épület lakásai az 1-4. emeleteken helyezkednek el.
A burkolóanyagok, belső nyílászárók, szaniterek, villanykapcsolók és dugaljak szabadon választhatók bizonyos összeghatárig.
A fűtést és melegvízellátást központi hőszivattyú és melegvíztároló biztosítja:
- fűtés: padlófűtés
- hűtés: a lakások hűtése nem része a műszaki tartalomnak, igény esetén fan coil vagy egyedi klíma kiépítésére van lehetőség.
Teremgarázs beálló, külön zárható, önálló száraz tároló külön vásárolható.
A KÖRNYEZETRŐL:
A Tisza István tér közelében található, a Zuglói kormányablak, üzletek, hangulatos kávézó, étterem, pékség, gyógyszertár, Uzsoki Utcai kórház, szakrendelők, bölcsőde, óvoda, iskola rövid sétán belül elérhetők.
Tömegközlekedés szempontjából is ideális, hiszen a 7, 7E, 8E, 108E, 110, 112, 133E, 32, 124, 125, 125B, 277 buszok megállója, a 3-as, 62-62/A villamosok megállója, illetve a 82-es trolimegálló rövid sétatávolságon belül található.
Bővebb információért és a megtekintéssel kapcsolatban várom hívását!
Egyedi igényekre szabott lakáshitelekkel állunk rendelkezésére.
Bankfüggetlen Hitel Centrumunk az országban elérhető összes bank és hitelintézet ajánlatát versenyezteti az Ön számára díjmentesen.
Munkatársaink nagy szakmai tapasztalattal várják Önt az előre egyeztetett időpontban akár a normál munkaidő után is.
Az épületet csendes, szinte forgalommentes, egyirányú utcában alakítják ki, amerikai konyhás nappalija, erkélye utcai nézetű, a mindkét hálószobából megközelíthető terasz a belső kertre néz.
Az ötszintes épület pinceszint + 4 emeletből áll:
- a pinceszinten 2 állásos, parkológépes teremgarázs beálló, tárolók,
- a földszinten át juthatunk ki a közös kertbe, itt kerékpártárolók és szintén a parkológépes teremgarázsbeálló található,
- a zárt lépcsőházas épület lakásai az 1-4. emeleteken helyezkednek el.
A burkolóanyagok, belső nyílászárók, szaniterek, villanykapcsolók és dugaljak szabadon választhatók bizonyos összeghatárig.
A fűtést és melegvízellátást központi hőszivattyú és melegvíztároló biztosítja:
- fűtés: padlófűtés
- hűtés: a lakások hűtése nem része a műszaki tartalomnak, igény esetén fan coil vagy egyedi klíma kiépítésére van lehetőség.
Teremgarázs beálló, külön zárható, önálló száraz tároló külön vásárolható.
A KÖRNYEZETRŐL:
A Tisza István tér közelében található, a Zuglói kormányablak, üzletek, hangulatos kávézó, étterem, pékség, gyógyszertár, Uzsoki Utcai kórház, szakrendelők, bölcsőde, óvoda, iskola rövid sétán belül elérhetők.
Tömegközlekedés szempontjából is ideális, hiszen a 7, 7E, 8E, 108E, 110, 112, 133E, 32, 124, 125, 125B, 277 buszok megállója, a 3-as, 62-62/A villamosok megállója, illetve a 82-es trolimegálló rövid sétatávolságon belül található.
Bővebb információért és a megtekintéssel kapcsolatban várom hívását!
Egyedi igényekre szabott lakáshitelekkel állunk rendelkezésére.
Bankfüggetlen Hitel Centrumunk az országban elérhető összes bank és hitelintézet ajánlatát versenyezteti az Ön számára díjmentesen.
Munkatársaink nagy szakmai tapasztalattal várják Önt az előre egyeztetett időpontban akár a normál munkaidő után is.
Regisztrációs szám
P4563-1-01-03-006
Az ingatlan adatai
Értékesités
eladó
Jogi státusz
új
Jelleg
lakás
Építési mód
tégla
Méret
62,1 m²
Bruttó méret
71,3 m²
Terasz / erkély mérete
9,2 m²
Fűtés
hőszivattyú
Belmagasság
270 cm
Tájolás
Dél
Lépcsőház típusa
zárt lépcsőház
Állapot
Kiváló
Homlokzat állapota
Kiváló
Lépcsőház állapota
Kiváló
Építés éve
2026
Fürdőszobák száma
1
Fekvés
utcai
Víz
Van
Villany
Van
Csatorna
Van
Lift
van
Helyiségek
nappali-konyha
27.53 m²
erkély
2.7 m²
közlekedő
9.42 m²
hálószoba
8.74 m²
hálószoba
9.79 m²
terasz
6.52 m²
fürdőszoba
3.71 m²
gardrób
1.5 m²
wc-kézmosó
1.41 m²