Elérhető Otthon Start hitellel
Eladó újépítésű sorház,
P4379-C1-01-NA-003
Cegléd,
73 810 000 Ft
192 000 €
- 78,4m²
- 4 szoba
Vadvirág Lakópark - A lakhatás új szintje Cegléden
Nappali + 3 szobás, belső kétszintes lakás. A lakáshoz tartozik egy 8 nm-es fedett terasz és egy 6 nm-es tornác is. Az ingatlanhoz tartozik egy kötelezően megvásárolandó gépkocsi beálló, melynek ára 1,5 millió forint valamint saját udvarrésszel is rendelkezik. A lakóparkon belül játszótér, pihenőpark kerül kialakításra.
- 30-as Porotherm tégla falazat
- 18 cm-es hőszigetelés
- Creaton tetőcserép
- műanyag nyílászárók 3 rétegű üvegezéssel, aluredőnyökkel
- egyedi hőszivattyús hűtés-fűtés padlófűtéssel és fan coillokkal
- lakásonként 3x20A elektromos áram + H tarifa
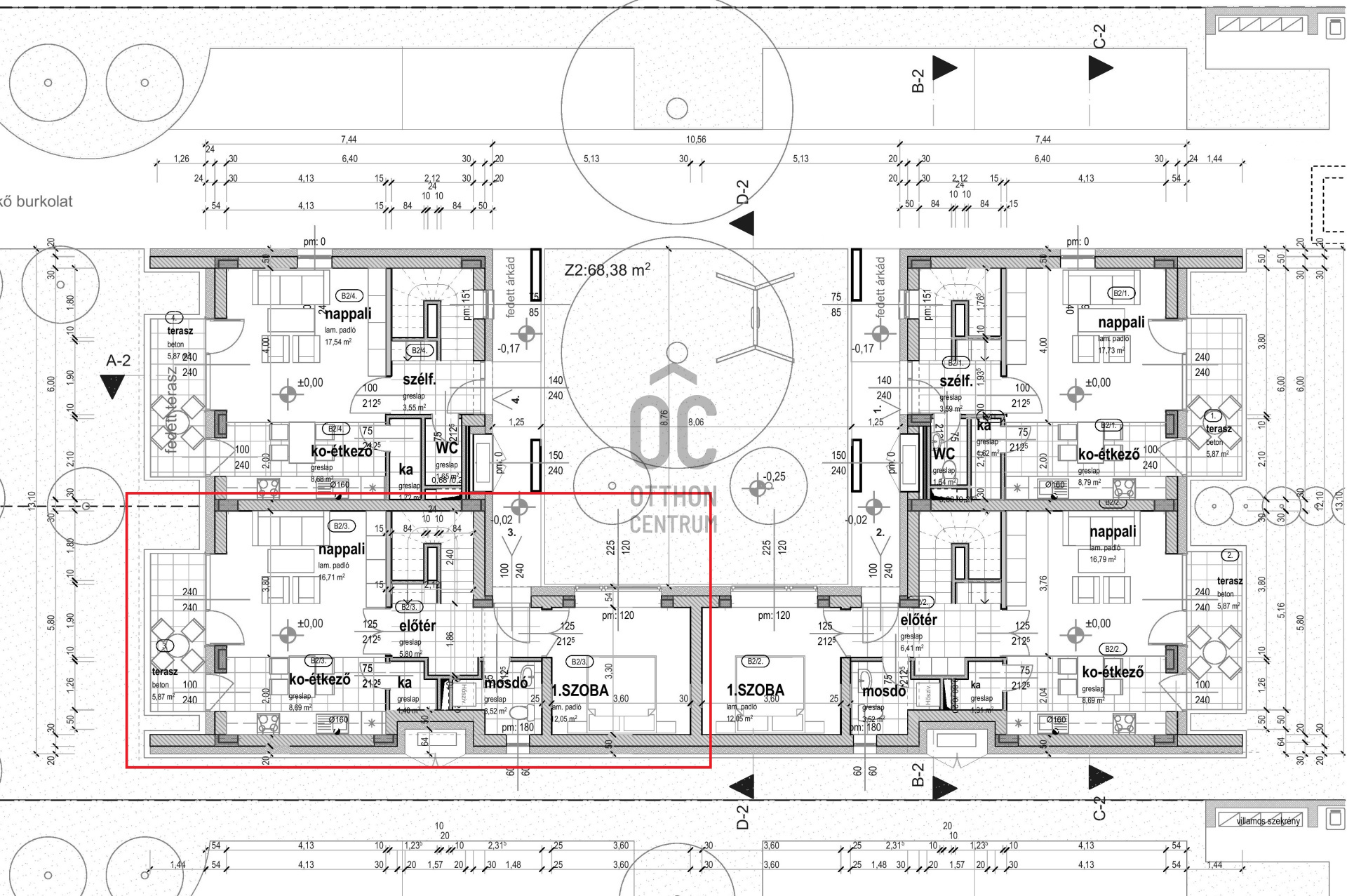
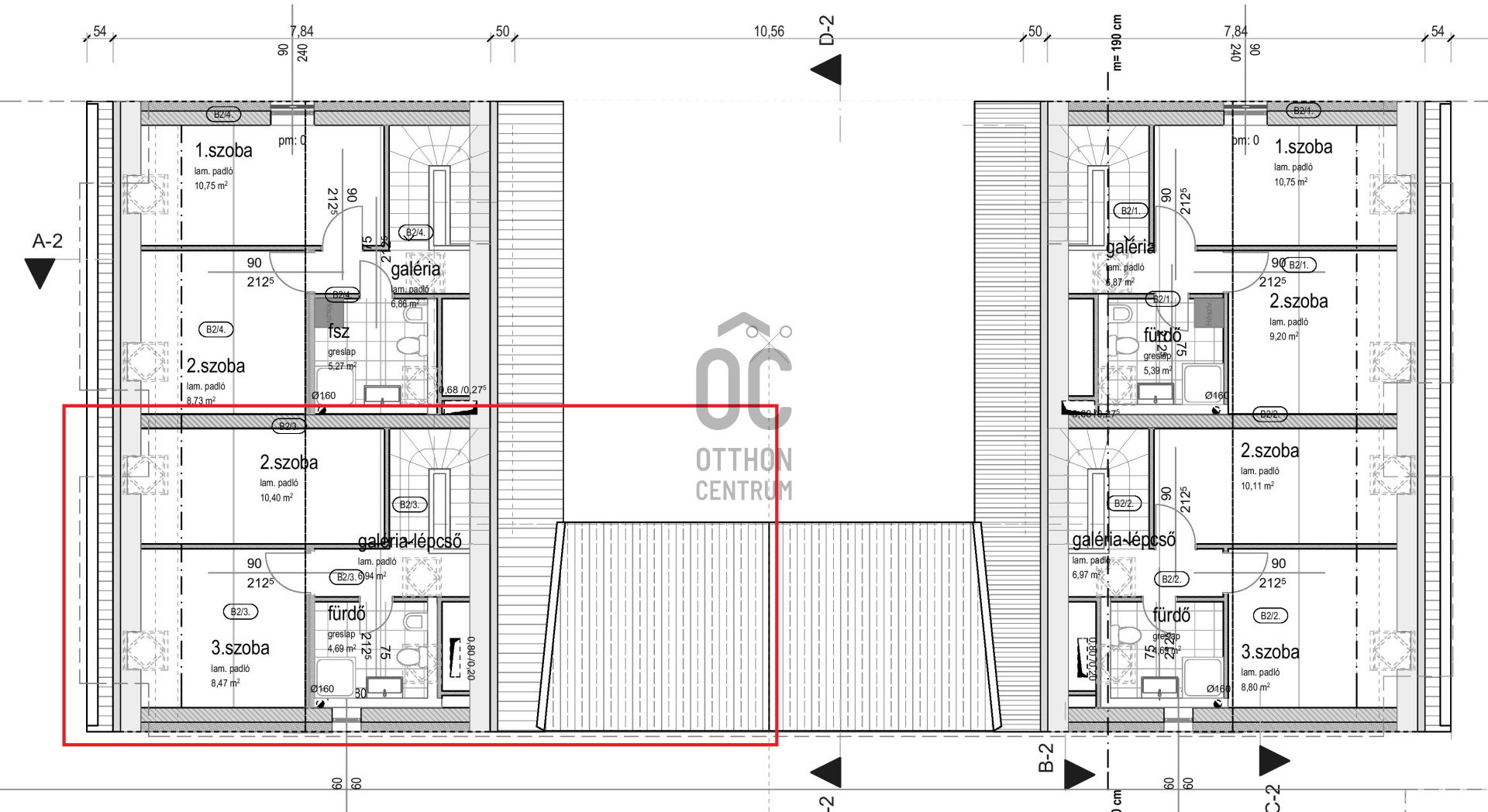
79 m2 alapterületű 4 szobás lakás. A lakás földszint + tetőteres kialakítású.
A földszinten elhelyezett étkezőkonyha és nappali összesített alapterülete meghaladja a 26 m2-t. A nappali mérete
meghaladja a 16 m2-t, amely területből étkező nem foglal el helyet. A lakáshoz nagyméretű, 1, 5 m széles fedett
terasz kapcsolódik, mind az étkezőkonyhából, mind a nappaliból önálló kijutási lehetőséget biztosítottunk a teraszra.
A földszinten a két főtömeget összekötő szárnyban egy szobát alakítottunk ki. A tágas földszinti mosdó helyiségben
helyeztük el a hőszivattyú beltéri egységét. A lakásnak van külön WC-je és kamrája a földszinten.
Az emeletre húzottkarú, gipszbeton szerkezetű lépcső vezet fel. Mindkét tetőtéri szobára 2-2 db tetőablakot terveztünk. A lakások
fűtése/hűtése víz-levegős hőszivattyúval történik , a lakáson belüli hőleadás padlófűtésen és fan-coil berendezésen keresztül történik.
Parkolást a telken belül oldjuk meg szilárd burkolaton, garázsépület nélkül. A hőszivattyú kültéri egységét a földszinti mosdó mellett
a külső falba süllyesztetten alakítottuk ki rácsos takarással, a beltéri egységet az emeleti tágas fürdőszobában helyeztük el.
A kültéri egységet az oldalhatári homlokzatba süllyesztve helyeztük el rácsos takaróajtóval. Az emeleti fürdőszobában mosógép, mosdó WC és tusoló kap helyet.
- 30-as Porotherm tégla falazat
- 18 cm-es hőszigetelés
- Creaton tetőcserép
- műanyag nyílászárók 3 rétegű üvegezéssel, aluredőnyökkel
- egyedi hőszivattyús hűtés-fűtés padlófűtéssel és fan coillokkal
- lakásonként 3x20A elektromos áram + H tarifa
79 m2 alapterületű 4 szobás lakás. A lakás földszint + tetőteres kialakítású.
A földszinten elhelyezett étkezőkonyha és nappali összesített alapterülete meghaladja a 26 m2-t. A nappali mérete
meghaladja a 16 m2-t, amely területből étkező nem foglal el helyet. A lakáshoz nagyméretű, 1, 5 m széles fedett
terasz kapcsolódik, mind az étkezőkonyhából, mind a nappaliból önálló kijutási lehetőséget biztosítottunk a teraszra.
A földszinten a két főtömeget összekötő szárnyban egy szobát alakítottunk ki. A tágas földszinti mosdó helyiségben
helyeztük el a hőszivattyú beltéri egységét. A lakásnak van külön WC-je és kamrája a földszinten.
Az emeletre húzottkarú, gipszbeton szerkezetű lépcső vezet fel. Mindkét tetőtéri szobára 2-2 db tetőablakot terveztünk. A lakások
fűtése/hűtése víz-levegős hőszivattyúval történik , a lakáson belüli hőleadás padlófűtésen és fan-coil berendezésen keresztül történik.
Parkolást a telken belül oldjuk meg szilárd burkolaton, garázsépület nélkül. A hőszivattyú kültéri egységét a földszinti mosdó mellett
a külső falba süllyesztetten alakítottuk ki rácsos takarással, a beltéri egységet az emeleti tágas fürdőszobában helyeztük el.
A kültéri egységet az oldalhatári homlokzatba süllyesztve helyeztük el rácsos takaróajtóval. Az emeleti fürdőszobában mosógép, mosdó WC és tusoló kap helyet.
Regisztrációs szám
P4379-C1-01-NA-003
Az ingatlan adatai
Értékesités
eladó
Jogi státusz
új
Jelleg
ház
Építési mód
tégla
Méret
78,4 m²
Bruttó méret
92 m²
Telek méret
34 m²
Terasz / erkély mérete
13,5 m²
Fűtés
megújuló
Belmagasság
260 cm
Lakáson belüli szintszám
1
Tájolás
Észak-kelet
Panoráma
Zöldre néző panoráma
Állapot
Kiváló
Homlokzat állapota
Kiváló
Környék
csendes, zöld
Építés éve
2025
Fürdőszobák száma
1
Víz
Van
Villany
Van
Csatorna
Van
Helyiségek
nappali
17 m²
konyha-étkező
7 m²
szoba
12 m²
előszoba
6 m²
kamra
1.5 m²
mosdó
3.5 m²
szoba
10.5 m²
szoba
8.5 m²
fürdőszoba-wc
5 m²
galéria
7 m²