Elérhető Otthon Start hitellel
Eladó újépítésű családi ház,
P4342-1-02-NA-001
Kőszeg,
69 900 000 Ft
185 000 €
- 66m²
- 3 szoba
Kőszegen új építésű családi házak eladók
Kőszegen épülő Borostyánkő lakóparkban eladó fémvázas, könnyűszerkezetes iker családi ház 405 nm-es telken.
A település klímája szubalpin, egyedülállóan az országban. Kőszeg infrastruktúrája kiváló, bölcsőde, óvoda, általános és középiskola egyaránt rendelkezésre áll a családok számára.
Határváros révén 20 km-en belül ausztriai autópálya és az M86 gyorsforgalmi útra csatlakozás teszi könnyen elérhetővé.
A telkek saját úttal rendelkeznek, átmenő forgalom nincs az utcában. Fekvésük miatt örök-panorámás kilátással rendelkeznek a telkek a Kőszegi hegységre.
Közművek közül víz, csatorna, villany áll rendelkezésre.
25 éves kivitelezési gyakorlattal rendelkező, tőkeerős és referenciákkal rendelkező beruházótól, rendkívül precíz és igényes kivitelezéssel, osztrák minőségben készülő örök életű fémvázas szerkezettel kivitelezett könnyűszerkezetes házak. Házainkhoz szárított, minősített faanyagokat használunk!
-20 cm kőzetgyapot szigetelés a falakban-20 cm Dryvit szigetelés kívül
-30 cm mennyezeti szigetelés hőtükrös fóliával
-fokozott hang és hőszigetelésű három rétegű üvegezéssel készült nyílászárók
- energiatakarékos helységenként vezérelhető infrafilm padlófűtés
- duplakomfortos, minden igényt kielégítő kialakítás, lakberendező közreműködésével készült alaprajzi elrendezés
- klíma, riasztó előkészítve későbbi igény esetére
- külön mosókonyha rendkívül kényelmes megoldás a háztartás vezetésére
- 12nm terasz
- Minőségi laminált padló burkolatok, vízálló laminált burkolattal készült fürdők, első osztályú szaniterekkel felszerelve. Csillagpontosan kiépített gyenge áramú hálózat lehetővé teszi berendezések kábelen történő csatlakoztatását minden helységben.
A település klímája szubalpin, egyedülállóan az országban. Kőszeg infrastruktúrája kiváló, bölcsőde, óvoda, általános és középiskola egyaránt rendelkezésre áll a családok számára.
Határváros révén 20 km-en belül ausztriai autópálya és az M86 gyorsforgalmi útra csatlakozás teszi könnyen elérhetővé.
A telkek saját úttal rendelkeznek, átmenő forgalom nincs az utcában. Fekvésük miatt örök-panorámás kilátással rendelkeznek a telkek a Kőszegi hegységre.
Közművek közül víz, csatorna, villany áll rendelkezésre.
25 éves kivitelezési gyakorlattal rendelkező, tőkeerős és referenciákkal rendelkező beruházótól, rendkívül precíz és igényes kivitelezéssel, osztrák minőségben készülő örök életű fémvázas szerkezettel kivitelezett könnyűszerkezetes házak. Házainkhoz szárított, minősített faanyagokat használunk!
-20 cm kőzetgyapot szigetelés a falakban-20 cm Dryvit szigetelés kívül
-30 cm mennyezeti szigetelés hőtükrös fóliával
-fokozott hang és hőszigetelésű három rétegű üvegezéssel készült nyílászárók
- energiatakarékos helységenként vezérelhető infrafilm padlófűtés
- duplakomfortos, minden igényt kielégítő kialakítás, lakberendező közreműködésével készült alaprajzi elrendezés
- klíma, riasztó előkészítve későbbi igény esetére
- külön mosókonyha rendkívül kényelmes megoldás a háztartás vezetésére
- 12nm terasz
- Minőségi laminált padló burkolatok, vízálló laminált burkolattal készült fürdők, első osztályú szaniterekkel felszerelve. Csillagpontosan kiépített gyenge áramú hálózat lehetővé teszi berendezések kábelen történő csatlakoztatását minden helységben.
Regisztrációs szám
P4342-1-02-NA-001
Az ingatlan adatai
Értékesités
eladó
Jogi státusz
új
Jelleg
ház
Építési mód
könnyűszerkezetes
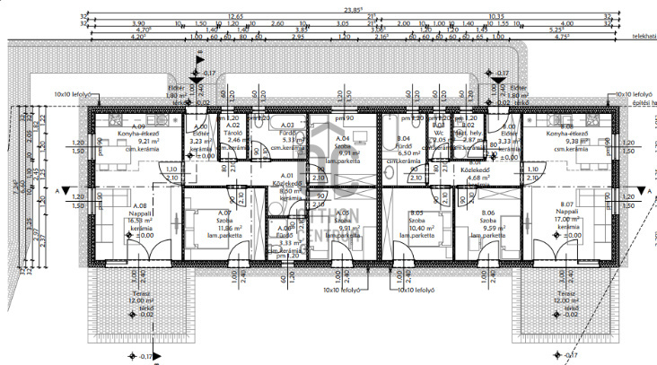
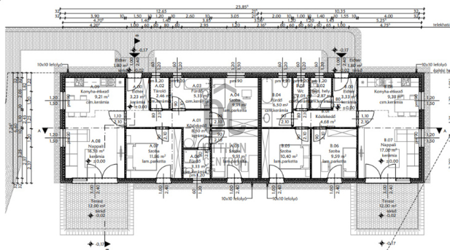
Méret
66 m²
Bruttó méret
100 m²
Telek méret
405,2 m²
Terasz / erkély mérete
10 m²
Fűtés
elektromos, infra
Belmagasság
275 cm
Tájolás
Dél-kelet
Állapot
Kiváló
Homlokzat állapota
Kiváló
Környék
csendes, zöld
Építés éve
2024
Fürdőszobák száma
1
Társaház kert
igen
Víz
Van
Villany
Van
Csatorna
Van
Helyiségek
hálószoba
10.4 m²
hálószoba
9.6 m²
nappali
17 m²
konyha-étkező
9.38 m²
fürdőszoba-wc
6.5 m²
közlekedő
4.7 m²
wc-kézmosó
2 m²
háztartási helyiség
2 m²
Horváth Szabina
Hitelszakértő