141 281 000 Ft
364 000 €
- 80,6m²
- 3 szoba
- tetőtér



Újépítésű lakások Budapest szívében
Exkluzív környezetben, műszakilag és esztétikailag a jelen elvárásainak megfelelően megtervezett és kivitelezett 82,885 m2 alapterületű, nappali-kétszoba beosztású lakás, 5,03 m2 télikerttel eladó.
A lakás Petschacher Gusztáv tervei alapján készült épület 5.emeletén helyezkedik el, kétszintes, ablakai csendes belső udvarra és utcára néznek.
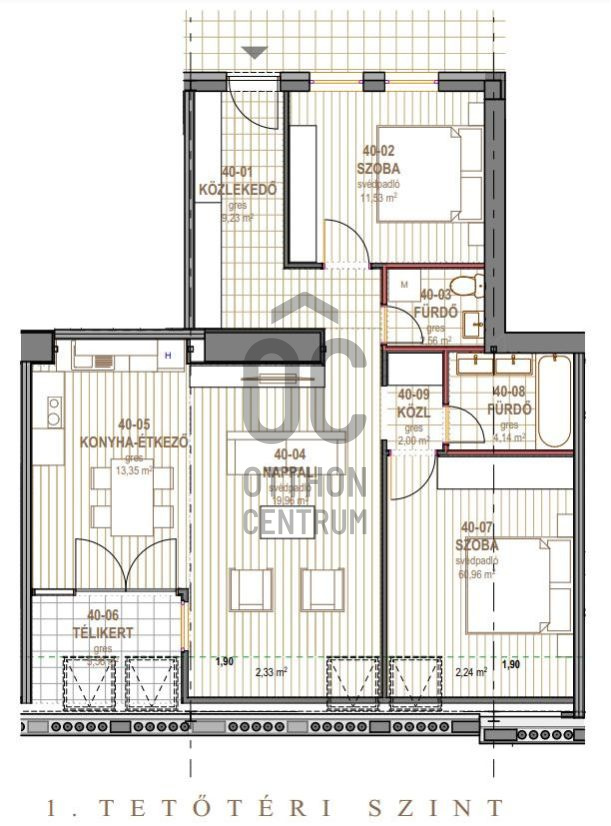
Kedvező beosztású, a közlekedőből közelíthető meg a nappali és a két szoba. A konyha-étkező a nappalival egy térben helyezkedik el. Két vizesblokk is kialakításra kerül. A télikert, melynek kialakítása opcionálisan igényelhető, a konyhából nyílik.
A lakás hűtéséről és fűtéséről oldalfali fan-coil rendszer gondoskodik. Riasztórendszer kiépítésre kerül. A hidegburkolatok (konyha, fürdőszoba, közlekedők) alatt padlófűtés kerül elhelyezésre. A lakások hűtését és fűtését H tarifás hőszivattyús rendszer biztosítja, így a lakások energiaellátásának költsége nagyon kedvező.
A lakásokba a műszaki tartalomban szereplő konyhabútorok és gépek kerülnek beépítésre.
A burkolatok és a konyhabútor színe tetszés szerint választható, a kijelölt opciók közül. Megfelelő időben történt megrendelői módosításokra lehetőség van.
A lakás Petschacher Gusztáv tervei alapján készült épület 5.emeletén helyezkedik el, kétszintes, ablakai csendes belső udvarra és utcára néznek.
Kedvező beosztású, a közlekedőből közelíthető meg a nappali és a két szoba. A konyha-étkező a nappalival egy térben helyezkedik el. Két vizesblokk is kialakításra kerül. A télikert, melynek kialakítása opcionálisan igényelhető, a konyhából nyílik.
A lakás hűtéséről és fűtéséről oldalfali fan-coil rendszer gondoskodik. Riasztórendszer kiépítésre kerül. A hidegburkolatok (konyha, fürdőszoba, közlekedők) alatt padlófűtés kerül elhelyezésre. A lakások hűtését és fűtését H tarifás hőszivattyús rendszer biztosítja, így a lakások energiaellátásának költsége nagyon kedvező.
A lakásokba a műszaki tartalomban szereplő konyhabútorok és gépek kerülnek beépítésre.
A burkolatok és a konyhabútor színe tetszés szerint választható, a kijelölt opciók közül. Megfelelő időben történt megrendelői módosításokra lehetőség van.
Regisztrációs szám
P4303-1-01-TE-040
Az ingatlan adatai
Értékesités
eladó
Jogi státusz
új
Jelleg
lakás
Építési mód
ytong
Méret
80,6 m²
Bruttó méret
82,8 m²
Fűtés
hőszivattyú
Belmagasság
280 cm
Tájolás
Észak-kelet
Panoráma
városi panoráma
Lépcsőház típusa
körfolyosó
Állapot
Kiváló
Homlokzat állapota
Jó
Lépcsőház állapota
Jó
Környék
jó közlekedés, központi
Építés éve
2023
Fürdőszobák száma
2
Fekvés
utcai
Víz
Van
Gáz
Van
Villany
Van
Csatorna
Van
Lift
van
Helyiségek
közlekedő
9.31 m²
szoba
11.62 m²
fürdőszoba-wc
2.6 m²
közlekedő
2 m²
fürdőszoba
4.14 m²
nappali
19.96 m²
szoba
12.98 m²
konyha-étkező
13.68 m²
télikert
3.27 m²

Németh István
Hitelszakértő