Elérhető Otthon Start hitellel
Eladó újépítésű lakás, P3605-1-01-04-001
Budapest VII. kerület,

99 000 000 Ft

255 000 €

  • 77m²
  • 3 szoba
  • 4. emelet

VII. New York Kávéházhoz közel, liftes társasház legfelső 4. emeletén új építésű belső kétszintes lakás eladó.

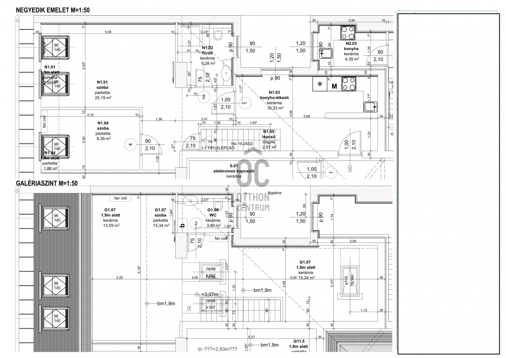
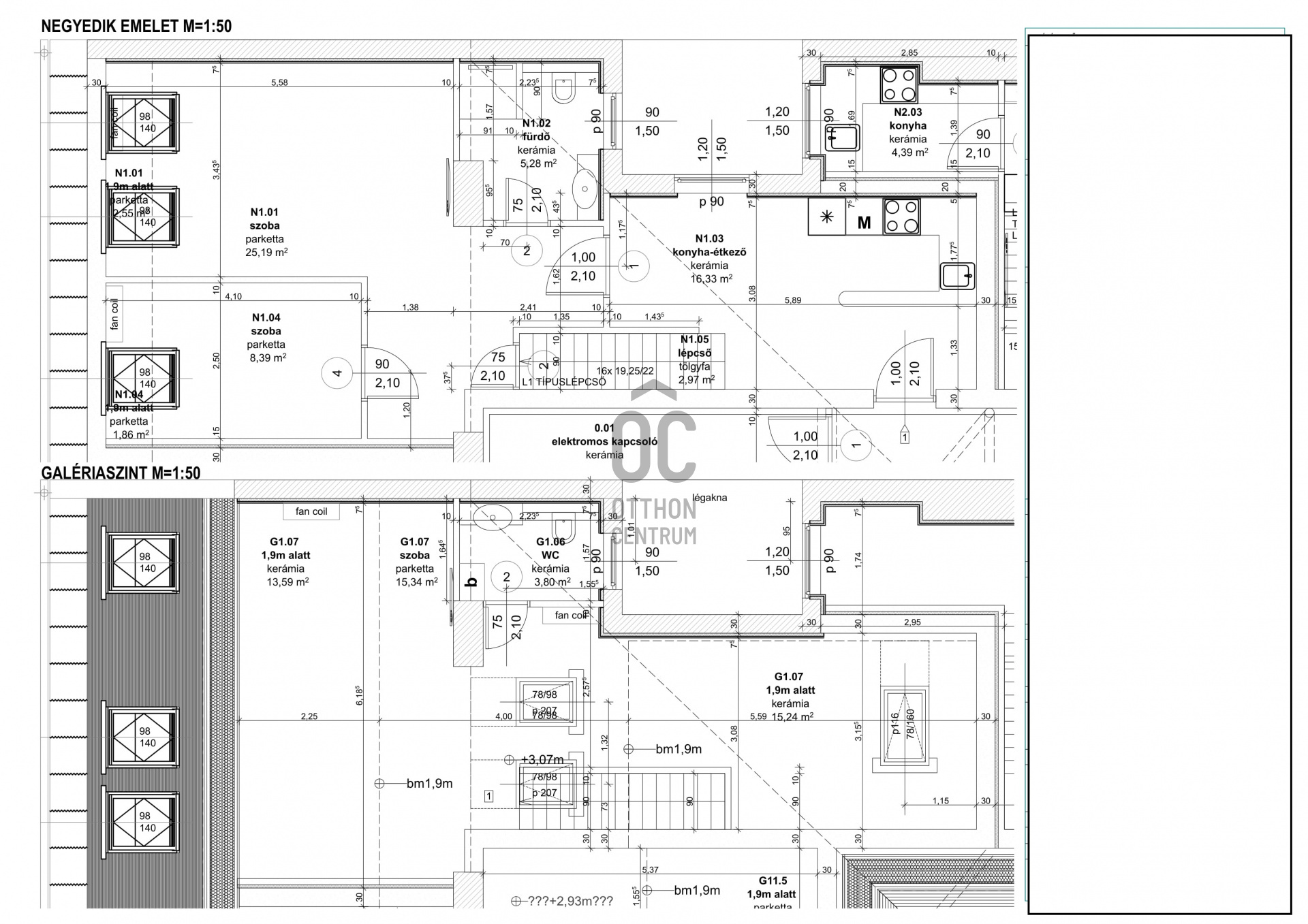
-nettó 77nm, bruttó 110,5nm.
-alsó szint: 1 nappali, 1 háló, fürdőszoba +Wc, konyha étkezővel,
-emelet: 1 hálószoba, 1 mosdó, gardrób helyiség.

- Igényes kivitelezés,
- hűtő-fűtő klíma,
- csendes, világos
- belső udvari nézet


A közelben minden megtalálható, ami a kényelmes belvárosi életet szolgálja.


#belváros#újépítés#modern#belsőkétszint#csendes#jóközlekedés#3szoba#

Regisztrációs szám

P3605-1-01-04-001

Az ingatlan adatai

Értékesités
eladó
Jogi státusz
új
Jelleg
lakás
Építési mód
tégla
Méret
77 m²
Bruttó méret
111,7 m²
Fűtés
elektromos fan-coil
Belmagasság
260 cm
Lakáson belüli szintszám
2
Tájolás
Dél-kelet
Lépcsőház típusa
körfolyosó
Állapot
Kiváló
Homlokzat állapota
Kiváló
Lépcsőház állapota
Kiváló
Környék
jó közlekedés
Építés éve
2019
Fürdőszobák száma
1
Fekvés
udvari
Víz
Van
Villany
Van
Csatorna
Van
Lift
van

Helyiségek

szoba
25.19 m²
fürdőszoba
5.44 m²
konyha-étkező
16.77 m²
szoba
8.39 m²
közlekedő
4 m²
wc
3.63 m²
szoba
22.14 m²
Ruczek Krisztina
Ruczek Krisztina

Hitelszakértő

Irodánk kínálatából - VI. kerület - Ó utca

for sale apartment

Index image
data_sheet.details.realestate.section.main.otthonstart_flag.label
23

for sale apartment

Index image
35

for sale apartment

Index image
17

for sale apartment

Index image
13

for sale family house

Index image
data_sheet.details.realestate.section.main.otthonstart_flag.label
6

for sale apartment

Index image
22

for sale apartment

Index image
36