Elérhető Otthon Start hitellel
Eladó ikerház,
OHH168996
Szeged, Rókus
99 900 000 Ft
255 000 €
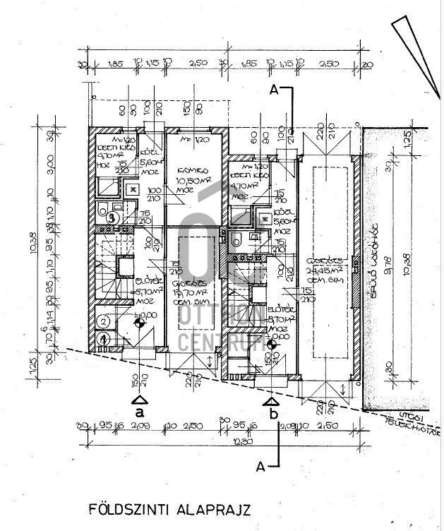
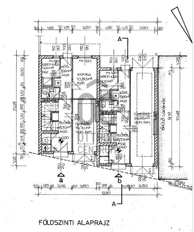
- 145m²
- 4 szoba






















ELADÓ TÉGLA ÉPÍTÉSŰ IKERHÁZ SZEGEDEN, A PULZ UTCÁBAN!
Szeged egyik frekventált, de mégis nyugodt részén, a Pulz utcában eladó egy IKERHÁZ, amely KIVÁLÓ LEHETŐSÉGET NYÚJT CSALÁDOKNAK ÉS VÁLLALKOZÁSOKNAK EGYARÁNT. Az ingatlan sokoldalúsága miatt akár lakóingatlan, akár telephely, székhely céljára is ideális választás lehet.
FŐBB JELLEMZŐK:
*
145 M² lakóterület
*
4 SZOBA, de további helyiségek könnyedén átalakíthatók
*
BEÉPÍTHETŐ TETŐTÉR, amely további bővítési lehetőséget biztosít
*
GARÁZS és több egyéb helyiség
*
838 M²-ES TELEK, amely 40%-OS BEÉPÍTHETŐSÉGÉNEK köszönhetően további épületráépítést tesz lehetővé
*
A telken tégla építésű MELLÉKÉPÜLET is található
ÁLLAPOT ÉS MŰSZAKI JELLEMZŐK:
*
Az épület BELSEJE FELÚJÍTANDÓ, így saját igények szerint alakítható
*
A KÜLSŐ NYÍLÁSZÁRÓK MŰANYAGRA LETTEK CSERÉLVE néhány éve
*
A KÜLSŐ HOMLOKZAT JÓ ÁLLAPOTÚ, így nagyobb szerkezeti felújítás nem szükséges
KIVÁLÓ ELHELYEZKEDÉS, SOKOLDALÚ FELHASZNÁLÁSI LEHETŐSÉG!
Az ingatlan mérete és adottságai miatt NEMCSAK CSALÁDOK, HANEM VÁLLALKOZÁSOK SZÁMÁRA IS TÖKÉLETES VÁLASZTÁS, legyen szó irodáról, rendelőről vagy telephelyről.
Ha egy kiváló lehetőségeket rejtő ingatlant keres, amelyet saját igényeire szabhat, NE HABOZZON, HÍVJON MOST!
Regisztrációs szám
OHH168996
Az ingatlan adatai
Értékesités
eladó
Jogi státusz
használt
Jelleg
ház
Építési mód
tégla
Méret
145 m²
Telek méret
838 m²
Fűtés
Gáz cirkó
Állapot
Felújítandó
Építés éve
1980