295 000 000 Ft
784 000 €
- 276m²
- 5 szoba
Debrecenben,a Nagyerdei körútból nyíló csendes kis utcában, 276 nm-es, 5 szobás, dupla garázsos, önálló családi ház eladó
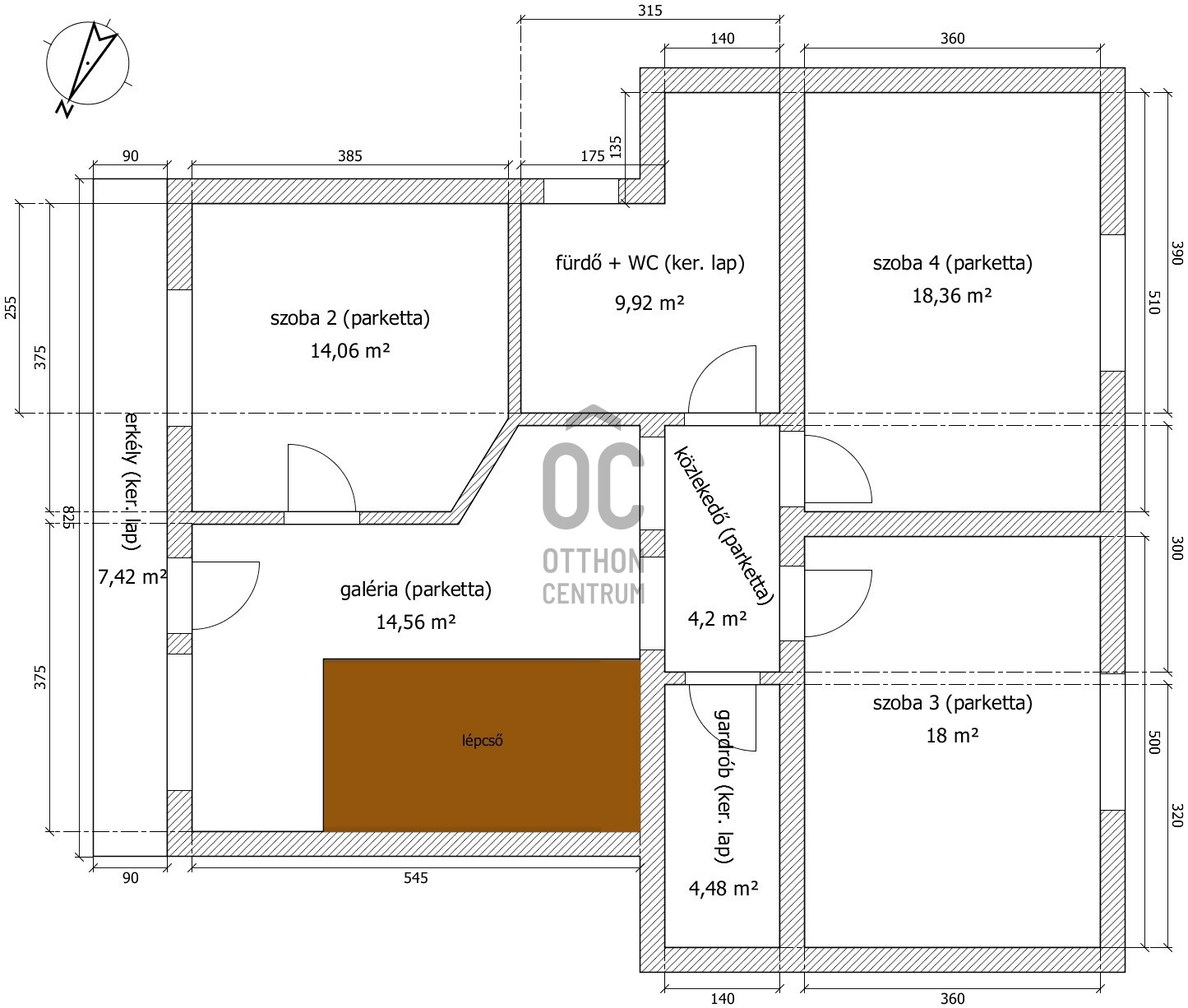
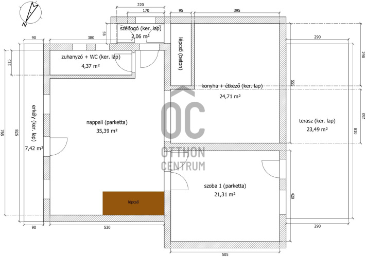
Debrecenben, a klasszikus Nagyerdőn, a Nagyerdei körútból nyíló csendes kis utcában, 276 nm-es (+ 42 nm-es dupla garázs) alapterületű, nappali + nagy konyha-étkezős + 4 nagy hálós + 2 fürdő + wc-s + a szuterén szinten külön fürdő és wc-s, a nyolcvanas években, 470 nm-es telken épült kétszintes (+a szuterén szint) gáz-cirkó fűtéses önálló családi ház eladó.
A ház 2020-ban teljeskörű belső felújításon esett át (villany és gáz vezetékek cseréje, kondenzációs kazán,burkolatok,stb) kivéve a konyhai burkolat és a konyhaszekrény melyek régebbiek.
A ház tégla falazatán 10 cm szigetelés van, a tetőn Bramac cserép,műanyag nyílászárók redőnnyel részben rovarhálóval ellátva, van riasztó és elektromos kapu, a szuterén szinten szauna hozzá tartozó zuhanyzóval és téglával kirakott borospince található valamint 42 nm-es 2 állásos garázs, a parkosított kertben szalonnasütő és kiépített öntözőrendszer, kerti csap
A ház 2020-ban teljeskörű belső felújításon esett át (villany és gáz vezetékek cseréje, kondenzációs kazán,burkolatok,stb) kivéve a konyhai burkolat és a konyhaszekrény melyek régebbiek.
A ház tégla falazatán 10 cm szigetelés van, a tetőn Bramac cserép,műanyag nyílászárók redőnnyel részben rovarhálóval ellátva, van riasztó és elektromos kapu, a szuterén szinten szauna hozzá tartozó zuhanyzóval és téglával kirakott borospince található valamint 42 nm-es 2 állásos garázs, a parkosított kertben szalonnasütő és kiépített öntözőrendszer, kerti csap
Regisztrációs szám
H513629
Az ingatlan adatai
Értékesités
eladó
Jogi státusz
használt
Jelleg
ház
Építési mód
tégla
Méret
276 m²
Bruttó méret
350 m²
Telek méret
470 m²
Terasz / erkély mérete
31 m²
Fűtés
Gáz cirkó
Belmagasság
270 cm
Lakáson belüli szintszám
1
Tájolás
Dél-kelet
Állapot
Jó
Homlokzat állapota
Jó
Pince
Önálló
Építés éve
1986
Fürdőszobák száma
2
Garázs
Benne van az árban
Garázs férőhely
2
Víz
Van
Gáz
Van
Villany
Van
Csatorna
Van
Többgenerációs
igen
Tároló
Önálló
Helyiségek
nappali
35 m²
konyha-étkező
25 m²
hálószoba
21 m²
fürdőszoba-wc
4 m²
terasz
24 m²
előszoba
3 m²
erkély
7 m²
Plébán László
Hitelszakértő