Elérhető Otthon Start hitellel
Eladó ikerház, H512838
Budapest XXII. kerület, Budafok

99 900 000 Ft

254 000 €

  • 75m²
  • 3 szoba
Kiemelt megbízás

Rare offering in the center of Budafok – a section of a family house with a garden, garage, in an excellent environment!

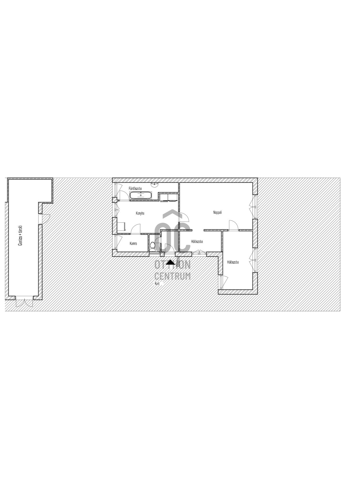
Rare offering in the center of Budafok – semi-detached house with garden, garage, in an excellent environment! I am offering for sale a home located in the heart of Budafok, in a family-friendly yet urban setting—an area where properties rarely come onto the market, making it highly sought after. The house is 75 square meters, currently a 2.5-room semi-detached house, which holds a lot of potential. It can be transformed into a modern open-plan living room with an American-style kitchen, 2 bedrooms, and 2 bathrooms with a dressing room! Please see the modified floor plan among the photos. A visual design will be available soon! Five years ago, new plastic windows and air conditioning were installed in the property. The house also comes with a small garden (with a cherry tree and grapevines). There is a garage suitable for a car in the garden, which has been expanded with a small shed. The property holds many possibilities! An open-plan living room with an American-style kitchen, 2 bedrooms, and 2 bathrooms with a dressing room can be created! Please see the modified floor plan among the photos. A visual design will be available soon! Property features: - 75 square meters, 2 and a half rooms, - garden with fruit trees, - plastic windows, - air conditioning, - southeast orientation, - bathroom with a bathtub, - separate toilet, - pantry, - attic, - garage, - shed Neighborhood: The property is located in a quiet side street in the downtown area of Budafok – an ideal combination of a peaceful suburban atmosphere and urban convenience. Everyday services are easily accessible on foot: a small shop is just a few minutes away, as well as one of the most popular shopping spots in the area, the Budafok Market, where fresh vegetables, fruits, meats, and local products can be purchased. At the end of the street, 300 meters away, several bus lines stop (133E, 138, 287), providing quick connections to other parts of the district and the city center. By car or bus, the Campona Shopping Center can be reached in a few minutes, where shops, restaurants, and entertainment options are all available in one place. The area is close to the Danube, so the proximity of the river and the experience of the riverside promenades and restaurants are part of the atmosphere of the place—this is simply a feature of the southern part of the Buda side that many buyers particularly appreciate for daily well-being and leisure activities. This neighborhood is not only a calm, well-functioning place in the city but also a part of Budapest where urban convenience (markets, shops, transportation) and the closeness to nature (Danube bank, suburban atmosphere) coexist, making it an excellent choice for families, investments, or even long-term homes. Come and make yourself comfortable in your new home! I look forward to your esteemed call every day of the week!

Regisztrációs szám

H512838

Az ingatlan adatai

Értékesités
eladó
Jogi státusz
használt
Jelleg
ház
Építési mód
tégla
Méret
75 m²
Bruttó méret
75 m²
Telek méret
200 m²
Kert méret
200 m²
Fűtés
Gáz cirkó
Belmagasság
260 cm
Tájolás
Dél-kelet
Állapot
Homlokzat állapota
Átlagos
Építés éve
1930
Fürdőszobák száma
1
Társaház kert
igen
Garázs
Benne van az árban
Garázs férőhely
1
Víz
Van
Gáz
Van
Villany
Van
Csatorna
Van
Vízpart távolsága
200 méterre

Helyiségek

előszoba
3 m²
konyha-étkező
14 m²
kamra
3 m²
fürdőszoba
8 m²
nappali
30 m²
hálószoba
9.5 m²
hálószoba
6.5 m²
wc
1.5 m²
Gerber Dorottya
Gerber Dorottya

Hitelszakértő

Irodánk kínálatából - III. kerület - Óbuda

eladó lakás

Index image
14

eladó lakás

Index image
46

eladó ikerház

Index image
Elérhető Otthon Start hitellel
21

eladó családi ház

Index image
Elérhető Otthon Start hitellel
32

eladó lakás

Index image
20

eladó ikerház

Index image
31