Elérhető Otthon Start hitellel
Eladó családi ház,
H511483
Szombathely, Kámon
79 000 000 Ft
205 000 €
- 139m²
- 4 szoba
Eladó családi ház Szombathely kedvelt kámoni városrészén
Szombathely egyik legkeresettebb, nyugodt kertvárosi részén, Kámonban kínálunk megvételre egy két szintes, 4 szobás családi házat, amely kiváló választás lehet, akár nagyobb család, akár vállalkozási cél számára is.
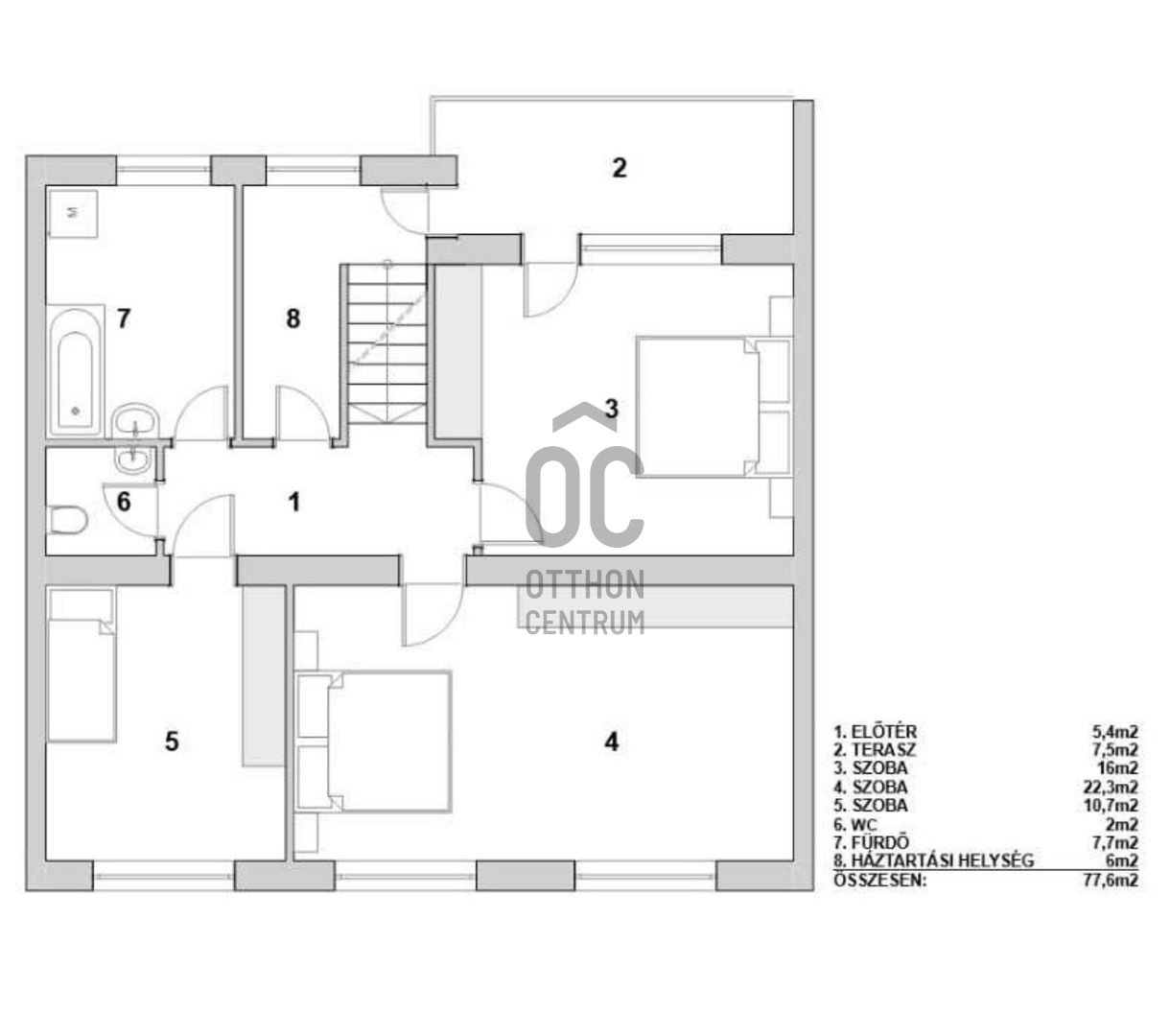
Az ingatlan alapterülete 139 m² (+ garázs) és egy 328 m²-es telken helyezkedik el. A szobák mindegyike világos, barátságos légkört teremt, ideális teret biztosítva a családi élethez. A házban gáz cirkófűtés és vegyes tüzelésű kazán is rendelkezésre áll, ez biztosítja a kellemes hőmérsékletet a hideg téli hónapokban is, a nyári melegben pedig klíma segíti a nyugodt pihenést. Az épület szigetelt homlokzattal, cserélt nyílászárókkal és felújított tetővel rendelkezik, ezek a legköltségesebb munkák már megtörténtek. A ház belső állapota megkímélt, megőrizte a 80-as évek hangulatát, így igény szerint azonnal költözhető, vagy saját elképzelés szerint modernizálható. A két fürdőszoba kényelmet és praktikus megoldásokat kínál a mindennapok során. A garázs épületen belüli található, így rossz idő esetén, Ön egyenesen otthonába érkezhet. Egy autó kényelmesen elfér, így a parkolás miatt sem kell aggódnia.
Az ingatlan elhelyezkedése különösen kedvező, hiszen a környék csendes, zöldövezeti jellegű, ahol a természet közelsége és a városi élet előnyei egyaránt megtalálhatók. A Kámon városrész a családosok körében népszerű, hiszen a közeli iskolák, óvodák és játszóterek mind hozzájárulnak a gyermekek biztonságos és boldog felnövekedéséhez.
A közlekedési lehetőségek is kedvezőek, hiszen a város tömegközlekedési hálózata könnyen elérhető, így a város többi része is gyorsan megközelíthető. Az autóval közlekedők számára pedig a főbb közlekedési útvonalak közelsége biztosítja a gyors és kényelmes utazást.
A környék biztonságos, a szomszédok barátságosak, így ideális helyszín lehet a családi élethez. A csendes környék, a zöldellő kertek és a barátságos közösség mind hozzájárulnak ahhoz, hogy itt otthonra leljen.
A ház méretéből adódóan, akár vállalkozási céljai megvalósítására is alkalmas. Az alsó szinten, akár iroda, rendelő, vagy szépségszalon is helyet kaphat. Ügyfelei, vendégei az ingatlan előtt könnyen parkolhatnak.
Amennyiben egy értékálló, sok lehetőséget rejtő ingatlant keres Szombathely egyik legjobb városrészén, ez a ház kiváló választás! Amennyiben kérdései merülnének fel az ingatlannal, vagy a környékkel kapcsolatban, bizalommal kereshet minket. Szívesen állunk rendelkezésére, hogy segítsünk Önnek megtalálni álmai otthonát!
Hitelre van szüksége?
Az Otthon Centrum az ország egyik legnagyobb és legmegbízhatóbb hitelközvetítőjeként, teljes körű és díjmentes hitel ügyintézéssel, biztosításkötéssel áll rendelkezésére! Kérje személyre szabott ajánlatunkat Kollégáinktól!
Válassza ki az Önnek legmegfelelőbbet!
Az ingatlan alapterülete 139 m² (+ garázs) és egy 328 m²-es telken helyezkedik el. A szobák mindegyike világos, barátságos légkört teremt, ideális teret biztosítva a családi élethez. A házban gáz cirkófűtés és vegyes tüzelésű kazán is rendelkezésre áll, ez biztosítja a kellemes hőmérsékletet a hideg téli hónapokban is, a nyári melegben pedig klíma segíti a nyugodt pihenést. Az épület szigetelt homlokzattal, cserélt nyílászárókkal és felújított tetővel rendelkezik, ezek a legköltségesebb munkák már megtörténtek. A ház belső állapota megkímélt, megőrizte a 80-as évek hangulatát, így igény szerint azonnal költözhető, vagy saját elképzelés szerint modernizálható. A két fürdőszoba kényelmet és praktikus megoldásokat kínál a mindennapok során. A garázs épületen belüli található, így rossz idő esetén, Ön egyenesen otthonába érkezhet. Egy autó kényelmesen elfér, így a parkolás miatt sem kell aggódnia.
Az ingatlan elhelyezkedése különösen kedvező, hiszen a környék csendes, zöldövezeti jellegű, ahol a természet közelsége és a városi élet előnyei egyaránt megtalálhatók. A Kámon városrész a családosok körében népszerű, hiszen a közeli iskolák, óvodák és játszóterek mind hozzájárulnak a gyermekek biztonságos és boldog felnövekedéséhez.
A közlekedési lehetőségek is kedvezőek, hiszen a város tömegközlekedési hálózata könnyen elérhető, így a város többi része is gyorsan megközelíthető. Az autóval közlekedők számára pedig a főbb közlekedési útvonalak közelsége biztosítja a gyors és kényelmes utazást.
A környék biztonságos, a szomszédok barátságosak, így ideális helyszín lehet a családi élethez. A csendes környék, a zöldellő kertek és a barátságos közösség mind hozzájárulnak ahhoz, hogy itt otthonra leljen.
A ház méretéből adódóan, akár vállalkozási céljai megvalósítására is alkalmas. Az alsó szinten, akár iroda, rendelő, vagy szépségszalon is helyet kaphat. Ügyfelei, vendégei az ingatlan előtt könnyen parkolhatnak.
Amennyiben egy értékálló, sok lehetőséget rejtő ingatlant keres Szombathely egyik legjobb városrészén, ez a ház kiváló választás! Amennyiben kérdései merülnének fel az ingatlannal, vagy a környékkel kapcsolatban, bizalommal kereshet minket. Szívesen állunk rendelkezésére, hogy segítsünk Önnek megtalálni álmai otthonát!
Hitelre van szüksége?
Az Otthon Centrum az ország egyik legnagyobb és legmegbízhatóbb hitelközvetítőjeként, teljes körű és díjmentes hitel ügyintézéssel, biztosításkötéssel áll rendelkezésére! Kérje személyre szabott ajánlatunkat Kollégáinktól!
Válassza ki az Önnek legmegfelelőbbet!
Regisztrációs szám
H511483
Az ingatlan adatai
Értékesités
eladó
Jogi státusz
használt
Jelleg
ház
Építési mód
tégla
Méret
139 m²
Bruttó méret
170 m²
Telek méret
328 m²
Fűtés
Gáz cirkó
Belmagasság
270 cm
Lakáson belüli szintszám
2
Tájolás
Kelet
Panoráma
Zöldre néző panoráma
Állapot
Jó
Homlokzat állapota
Jó
Környék
csendes
Építés éve
1980
Fürdőszobák száma
2
Garázs
Benne van az árban
Garázs férőhely
1
Víz
Van
Gáz
Van
Villany
Van
Csatorna
Van
Helyiségek
szoba
14.68 m²
konyha-étkező
10.92 m²
szoba
17.33 m²
szoba
22.32 m²
szoba
11.52 m²
fürdőszoba
7.68 m²
Csejtey Krisztina
Hitelszakértő