204 000 000 Ft
528 000 €
- 230m²
- 9 szoba
Exkluzív, többgenerációs családi ház Halásztelken – vállalkozásra vagy befektetésre is tökéletes!
Eladásra kínálok Halásztelken, játszótér szomszédságában, csendes, mégis frekventált elhelyezkedésű utcában egy igényesen felújított, háromszintes, kétlakásos családi házat, amelynek alagsorában jelenleg bejáratott cukrászat működik.
Az ingatlan több generáció együttélésére is kiválóan alkalmas, de befektetésnek is remek választás: az alsó szint akár önálló lakássá alakítható, így összesen három különálló lakóegység is kialakítható.
A 575 m²-es, gondozott telken álló, 1973-ban épült ház masszív, 50 cm vastag falakkal készült, és a teljes körű felújítás során korszerű szigetelést is kapott, így rezsije rendkívül alacsony.
A ház elosztása:
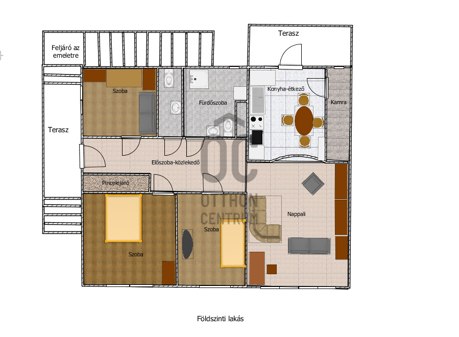
-Földszinti lakás: tágas nappali, 3 hálószoba, külön konyha, kamra, fürdőszoba, WC, és hátsó terasz.
-Emeleti lakás: nappali + 4 szoba, loggia, étkezős konyha, fürdőszoba.
-Alagsor: jelenleg cukrászatként működik, teljes infrastruktúrával, 3x50 A árammal, de könnyedén lakóegységgé alakítható.
-A fűtésről gázkazán és vegyes tüzelésű kazán is gondoskodik. A felújítás során új nyílászárók, burkolatok, gépészet és modern hőszigetelés került beépítésre.
-A kertben több autó számára kényelmes parkolási lehetőség, illetve hangulatos terasz és pihenő kapott helyet.
-A ház elhelyezkedése ideális: játszótér, bolt, óvoda, iskola és buszmegálló pár perc sétával elérhető.
Ez a hirdetés az Otthon Centrum Felező portfóliójának része, melyről bővebb információt a https://www.oc.hu/felezocsomag oldalon talál.
Megtekintéssel kapcsolatban keressen bizalommal!
Hitelre is vásárolna? Bankfüggetlen hitelügyintéző kollégáim díjmentesen segítenek a legkedvezőbb megoldás megtalálásában.
Az ingatlan több generáció együttélésére is kiválóan alkalmas, de befektetésnek is remek választás: az alsó szint akár önálló lakássá alakítható, így összesen három különálló lakóegység is kialakítható.
A 575 m²-es, gondozott telken álló, 1973-ban épült ház masszív, 50 cm vastag falakkal készült, és a teljes körű felújítás során korszerű szigetelést is kapott, így rezsije rendkívül alacsony.
A ház elosztása:
-Földszinti lakás: tágas nappali, 3 hálószoba, külön konyha, kamra, fürdőszoba, WC, és hátsó terasz.
-Emeleti lakás: nappali + 4 szoba, loggia, étkezős konyha, fürdőszoba.
-Alagsor: jelenleg cukrászatként működik, teljes infrastruktúrával, 3x50 A árammal, de könnyedén lakóegységgé alakítható.
-A fűtésről gázkazán és vegyes tüzelésű kazán is gondoskodik. A felújítás során új nyílászárók, burkolatok, gépészet és modern hőszigetelés került beépítésre.
-A kertben több autó számára kényelmes parkolási lehetőség, illetve hangulatos terasz és pihenő kapott helyet.
-A ház elhelyezkedése ideális: játszótér, bolt, óvoda, iskola és buszmegálló pár perc sétával elérhető.
Ez a hirdetés az Otthon Centrum Felező portfóliójának része, melyről bővebb információt a https://www.oc.hu/felezocsomag oldalon talál.
Megtekintéssel kapcsolatban keressen bizalommal!
Hitelre is vásárolna? Bankfüggetlen hitelügyintéző kollégáim díjmentesen segítenek a legkedvezőbb megoldás megtalálásában.
Regisztrációs szám
H509691
Az ingatlan adatai
Értékesités
eladó
Jogi státusz
használt
Jelleg
ház
Építési mód
tégla
Méret
230 m²
Bruttó méret
270 m²
Telek méret
575 m²
Terasz / erkély mérete
20 m²
Fűtés
Gáz cirkó
Belmagasság
280 cm
Lakáson belüli szintszám
3
Tájolás
Dél-kelet
Panoráma
Zöldre néző panoráma
Állapot
Jó
Homlokzat állapota
Jó
Pince
Önálló
Építés éve
1973
Fürdőszobák száma
2
Víz
Van
Gáz
Van
Villany
Van
Csatorna
Van
Többgenerációs
igen
Tároló
Önálló
Helyiségek
előszoba
17.95 m²
fürdőszoba
10.8 m²
wc
2.61 m²
hálószoba
18 m²
hálószoba
8.19 m²
hálószoba
7 m²
nappali
25.5 m²
konyha
19.8 m²
kamra
5 m²
szoba
12 m²
szoba
10.5 m²
Joó Krisztina
Hitelszakértő