Elérhető Otthon Start hitellel
Eladó lakás, H509608
Budapest X. kerület, Kőbánya városközpont

99 490 000 Ft

257 000 €

  • 79m²
  • 3 szoba
  • 1. emelet

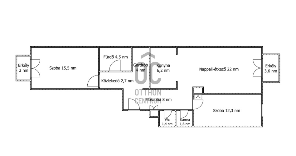
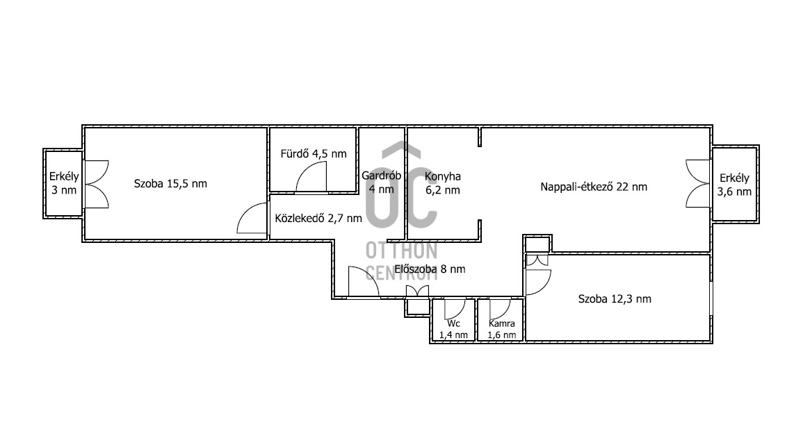
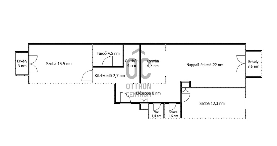
Eladó a 10.kerületben Kőbányán egy 2008-ban épült liftes társasház 1. emeletén, egy 79 nm-es, praktikus elosztású, igényes, 3 szobás, külön Wc-vel, kamrával és dupla erkéllyel is rendelkező, kitűnő állapotú lakás. Tágas és erkélyes nappaliján kívül, két szintén tágas hálószobával (melyek egyike szintén erkélyes), amerikai konyhával, kádas fürdővel, előszobával, külön Wc-vel és kamrával rendelkezik. A keleti tájolású nappali és az egyik szoba csendes utcára, míg a másik, nyugati tájolású szoba belső kertre néz. Az ingatlan egy éven belül teljes felújításon esett át, melynek keretében valamennyi burkolat cserére került, megújult a fürdő, a Wc, és új (még bőven garanciális) gépesített konyhabútor került beépítésre. További tárolást elősegítő szekrények is beépítésre kerültek, melyek a vételárban benne foglaltatnak. A nyílászárók műanyagok és redőnnyel felszereltek, a padlófűtést egyedi méréssel házközponti kazán látja el. A nemrégiben kamerarendszerrel és új postaládákkal valamint friss lépcsőházi festéssel ellátott három szintes szigetelt társasház nagy belső udvarral rendelkezik, mely játszótérrel is rendelkezik. A közös költség átlagban 25 000 Ft, mely a fűtési és vízmelegítési díjat is magában foglalja. Az utcai parkolás megoldott, de igény esetén a házban garázshely és felszíni beálló egyaránt vásárolható vagy bérelhető. A környék ellátottsága mind szolgáltatások, mind közlekedés tekintetében remek, iskolák, óvodák, orvosi rendelők, gyógyszertárak, üzletek, a kerület központja és busz valamint villamos és vasúti közlekedés is sétatávolságon belül találhatóak.

Ha felkeltettem érdeklődését, várom hívását!

Regisztrációs szám

H509608

Az ingatlan adatai

Értékesités
eladó
Jogi státusz
használt
Jelleg
lakás
Építési mód
tégla
Méret
79 m²
Bruttó méret
79 m²
Terasz / erkély mérete
6 m²
Fűtés
központi fűtés
Belmagasság
260 cm
Lakáson belüli szintszám
1
Tájolás
Nyugat
Lépcsőház típusa
zárt lépcsőház
Állapot
Kiváló
Homlokzat állapota
Kiváló
Lépcsőház állapota
Kiváló
Építés éve
2008
Fürdőszobák száma
1
Fekvés
utcai
Közös költség
25000
Víz
Van
Villany
Van
Csatorna
Van
Lift
van

Helyiségek

nappali-étkező
22 m²
szoba
15.5 m²
szoba
12.3 m²
konyha
6.2 m²
előszoba
8 m²
gardrób
4 m²
fürdőszoba
4.5 m²
közlekedő
4.5 m²
wc-kézmosó
1.4 m²
kamra
1.6 m²
Hazay Melinda
Hazay Melinda

Hitelszakértő

Irodánk kínálatából - XIV. kerület - István Park

for sale panel apartment

Index image
data_sheet.details.realestate.section.main.otthonstart_flag.label
16

for sale apartment

Index image
17

for sale family house

Index image
data_sheet.details.realestate.section.main.otthonstart_flag.label
14

for sale apartment

Index image
19

for sale apartment

Index image
data_sheet.details.realestate.section.main.otthonstart_flag.label
13

for sale panel apartment

Index image
data_sheet.details.realestate.section.main.otthonstart_flag.label
21

eladó panel lakás

Index image
Elérhető Otthon Start hitellel
22

for sale apartment

Index image
20

for sale apartment

Index image
15