360 000 000 Ft
933 000 €
- 238m²
- 6 szoba
Family-friendly Detached House on a Quiet Street in Újlak
Spacious, bright, and well-maintained 6-bedroom detached family house located in the Újlak area of Budapest’s District III, on a quiet, leafy street.
WELCOME HOME!
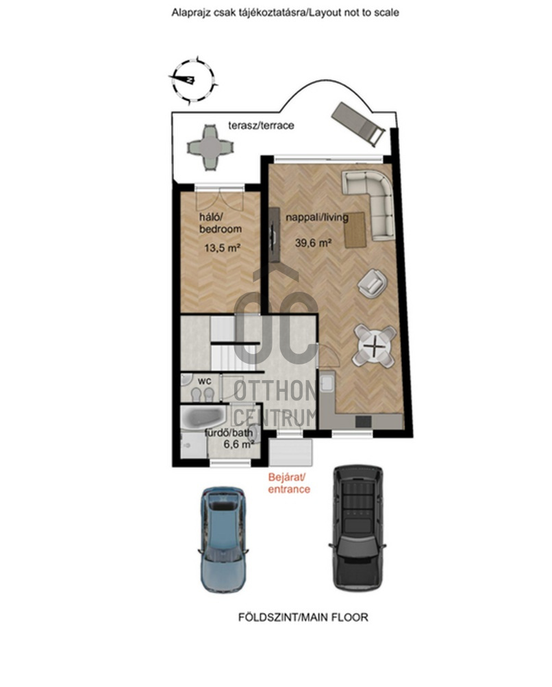
The three-storey house offers 238 m² net living area with a comfortable layout:
- Garden level: large living room with dining area and terrace opening to the garden, separate kitchen, bathroom, shower space prepared for a sauna, and boiler/utility room.
- Main level: entrance hall, open-plan living–kitchen–dining area with terrace access, bedroom, bathroom and guest WC.
- Upper level: 3 bedrooms, two bathrooms, and 2 balconies.
Ideal for larger families or multigenerational living. The terrace and balconies provide excellent options for outdoor relaxation and family gatherings. The 260 m² plot is suitable for gardening, children’s play or outdoor barbecues. Two parking spaces; a garage can be created at the lower end of the garden.
Heating is provided by gas central heating (circo), and air-conditioning units ensure summer comfort. The property is in good condition and regularly maintained. The neighbourhood is safe, family-friendly and green, close to Kolosy Square and the renovated Újlak centre. Excellent transport links: bus and tram stops within short walking distance for quick access to the city centre.
Nearby kindergartens, schools and shopping facilities add to the practicality.
Why view this property?
- Generous living spaces and many bedrooms for large families
- Four bathrooms for convenient everyday use
- Large terrace, balconies and garden for outdoor living
- Quiet, green street—safe for children
- Good transport connections and local amenities close by
To arrange a viewing, please call!
Budapest, Buda, District III (Újlak) — detached family house, 6 bedrooms, 4 bathrooms, garden, terrace, balconies, gas central heating, air-conditioning, good transport, quiet street.
WELCOME HOME!
The three-storey house offers 238 m² net living area with a comfortable layout:
- Garden level: large living room with dining area and terrace opening to the garden, separate kitchen, bathroom, shower space prepared for a sauna, and boiler/utility room.
- Main level: entrance hall, open-plan living–kitchen–dining area with terrace access, bedroom, bathroom and guest WC.
- Upper level: 3 bedrooms, two bathrooms, and 2 balconies.
Ideal for larger families or multigenerational living. The terrace and balconies provide excellent options for outdoor relaxation and family gatherings. The 260 m² plot is suitable for gardening, children’s play or outdoor barbecues. Two parking spaces; a garage can be created at the lower end of the garden.
Heating is provided by gas central heating (circo), and air-conditioning units ensure summer comfort. The property is in good condition and regularly maintained. The neighbourhood is safe, family-friendly and green, close to Kolosy Square and the renovated Újlak centre. Excellent transport links: bus and tram stops within short walking distance for quick access to the city centre.
Nearby kindergartens, schools and shopping facilities add to the practicality.
Why view this property?
- Generous living spaces and many bedrooms for large families
- Four bathrooms for convenient everyday use
- Large terrace, balconies and garden for outdoor living
- Quiet, green street—safe for children
- Good transport connections and local amenities close by
To arrange a viewing, please call!
Budapest, Buda, District III (Újlak) — detached family house, 6 bedrooms, 4 bathrooms, garden, terrace, balconies, gas central heating, air-conditioning, good transport, quiet street.
Regisztrációs szám
H509603
Az ingatlan adatai
Értékesités
eladó
Jogi státusz
használt
Jelleg
ház
Építési mód
tégla
Méret
238 m²
Bruttó méret
256 m²
Telek méret
260 m²
Terasz / erkély mérete
38,6 m²
Kert méret
135 m²
Fűtés
Gáz cirkó
Belmagasság
269 cm
Lakáson belüli szintszám
2
Tájolás
Kelet
Állapot
Jó
Homlokzat állapota
Jó
Környék
csendes, jó közlekedés, központi
Építés éve
1999
Fürdőszobák száma
4
Társaház kert
igen
Víz
Van
Gáz
Van
Villany
Van
Csatorna
Van
Többgenerációs
igen
Helyiségek
nappali
45.2 m²
konyha
9.6 m²
fürdőszoba-wc
6.6 m²
nappali-konyha
39.5 m²
hálószoba
13.5 m²
fürdőszoba-wc
6.6 m²
wc-kézmosó
2.3 m²
hálószoba
18.2 m²
hálószoba
16.2 m²
hálószoba
16.2 m²
fürdőszoba-wc
7.7 m²
fürdőszoba-wc
6.6 m²
Tóth Róbert
Hitelszakértő