469 000 000 Ft
1 228 000 €
- 200m²
- 5 szoba
Kert, fény, tágas terek – minden, amit egy családi háztól vársz a II. Kerületben!
Eladásra kínálok Adyligeten, a II. kerületben egy 200 m²-es, 4 hálószobás, modern családi házat 729 m²-es telken.
A ház 3 méteres belmagasságával, tágas tereivel és minőségi anyaghasználatával kiváló otthont nyújt többgyermekes családok számára is.
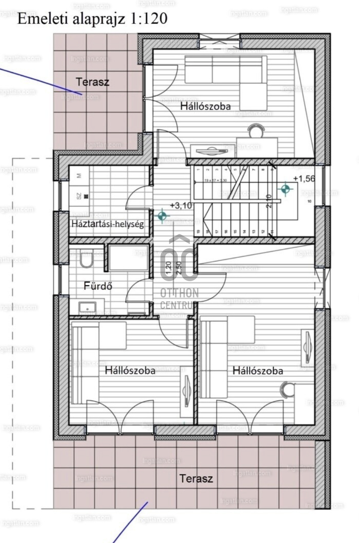
A nappali–konyha–étkező 50 m²-es, négy különnyíló hálószoba (16 m², 12 m², 18,7 m², 17 m²) és több terasz (25,4 m², 14 m², 16,2 m², 9 m²) tartozik hozzá, amelyek közvetlen kapcsolatot biztosítanak a kerttel.
A fűtésről és hűtésről Daikin hőszivattyús rendszer gondoskodik, mennyezeti fűtőszálakkal és padlófűtéssel kombinálva, geo áramról, kedvezményes tarifával.
A havi átlagos energiafogyasztás rendkívül kedvező (kb. 29 000 Ft/hó), a vízfogyasztás kéthavonta kb. 10 000 Ft.
A ház 15 cm-es szigetelést és ürömi mészkőburkolatot kapott.
A háromrétegű nyílászárók kívül antracit színű fém, belül fehér műanyag kivitelűek, motoros zsalúziákkal ellátva.
Riasztórendszer és távfelügyeleti bekötés is kiépítésre került.
A belső terek természetes tölgyfa svédparkettával, a vizes helyiségek nagy méretű hidegburkolatokkal készültek.
A konyhában magasfényű világos bútorok és beépített Bosch gépek találhatók.
A gondozott, nagy ősfás kertben kerti tároló kis ház is helyet kapott.
Adyliget kiválóan megközelíthető tömegközlekedéssel és autóval is: a 10-es út és a környék főbb közlekedési útvonalai gyors összeköttetést biztosítanak Budapest belső kerületeivel és az M0-ás körgyűrűvel.
A környéken bevásárlási lehetőségek, orvosi rendelő, gyógyszertár, iskolák és óvodák könnyen elérhetők.
A környezet csendes és rendezett, a levegő tiszta, a zajterhelés minimális.
Ez a környék ideális választás azoknak, akik városi kényelemre és természetközeli életre egyaránt vágynak.
További részletekért hívjon mielőbb!
Egyedi igényekre szabott lakáshitelekkel állunk rendelkezésére. Bankfüggetlen Hitel Centrumunk az országban elérhető összes bank és hitelintézet ajánlatát versenyezteti az Ön számára díjmentesen.
Munkatársaink nagy szakmai tapasztalattal várják Önt az előre egyeztetett időpontban akár a normál munkaidő után is.
A ház 3 méteres belmagasságával, tágas tereivel és minőségi anyaghasználatával kiváló otthont nyújt többgyermekes családok számára is.
A nappali–konyha–étkező 50 m²-es, négy különnyíló hálószoba (16 m², 12 m², 18,7 m², 17 m²) és több terasz (25,4 m², 14 m², 16,2 m², 9 m²) tartozik hozzá, amelyek közvetlen kapcsolatot biztosítanak a kerttel.
A fűtésről és hűtésről Daikin hőszivattyús rendszer gondoskodik, mennyezeti fűtőszálakkal és padlófűtéssel kombinálva, geo áramról, kedvezményes tarifával.
A havi átlagos energiafogyasztás rendkívül kedvező (kb. 29 000 Ft/hó), a vízfogyasztás kéthavonta kb. 10 000 Ft.
A ház 15 cm-es szigetelést és ürömi mészkőburkolatot kapott.
A háromrétegű nyílászárók kívül antracit színű fém, belül fehér műanyag kivitelűek, motoros zsalúziákkal ellátva.
Riasztórendszer és távfelügyeleti bekötés is kiépítésre került.
A belső terek természetes tölgyfa svédparkettával, a vizes helyiségek nagy méretű hidegburkolatokkal készültek.
A konyhában magasfényű világos bútorok és beépített Bosch gépek találhatók.
A gondozott, nagy ősfás kertben kerti tároló kis ház is helyet kapott.
Adyliget kiválóan megközelíthető tömegközlekedéssel és autóval is: a 10-es út és a környék főbb közlekedési útvonalai gyors összeköttetést biztosítanak Budapest belső kerületeivel és az M0-ás körgyűrűvel.
A környéken bevásárlási lehetőségek, orvosi rendelő, gyógyszertár, iskolák és óvodák könnyen elérhetők.
A környezet csendes és rendezett, a levegő tiszta, a zajterhelés minimális.
Ez a környék ideális választás azoknak, akik városi kényelemre és természetközeli életre egyaránt vágynak.
További részletekért hívjon mielőbb!
Egyedi igényekre szabott lakáshitelekkel állunk rendelkezésére. Bankfüggetlen Hitel Centrumunk az országban elérhető összes bank és hitelintézet ajánlatát versenyezteti az Ön számára díjmentesen.
Munkatársaink nagy szakmai tapasztalattal várják Önt az előre egyeztetett időpontban akár a normál munkaidő után is.
Regisztrációs szám
H508735
Az ingatlan adatai
Értékesités
eladó
Jogi státusz
használt
Jelleg
ház
Építési mód
tégla
Méret
200 m²
Bruttó méret
200 m²
Telek méret
729 m²
Terasz / erkély mérete
64,6 m²
Fűtés
hőszivattyú
Belmagasság
300 cm
Lakáson belüli szintszám
2
Tájolás
Dél-nyugat
Állapot
Kiváló
Homlokzat állapota
Kiváló
Építés éve
2019
Fürdőszobák száma
2
Víz
Van
Gáz
Utcán
Villany
Van
Csatorna
Van
Helyiségek
nappali-étkező
30 m²
konyha
10 m²
hálószoba
16 m²
hálószoba
12 m²
hálószoba
18.7 m²
hálószoba
17 m²
terasz
25.4 m²
terasz
14 m²
terasz
16.2 m²
terasz
9 m²
fürdőszoba
4.5 m²
fürdőszoba
6 m²
wc
2 m²
közlekedő
16 m²
lépcsőház
18 m²
háztartási helyiség
12 m²