263 000 000 Ft
674 000 €
- 280m²
- 9 szoba





















Fedezze fel álmai otthonát Budapest Rákospalotán – tágas, kényelmes, elérhető áron!
Befektetők (is) figyelem!
Sok lehetőséget magába foglaló, átalakítható, újra gondolható. Kis hostel, munkásszállás vagy 2 generáció részére elszeparáltan használható. Érdemes rápillantani mert ….
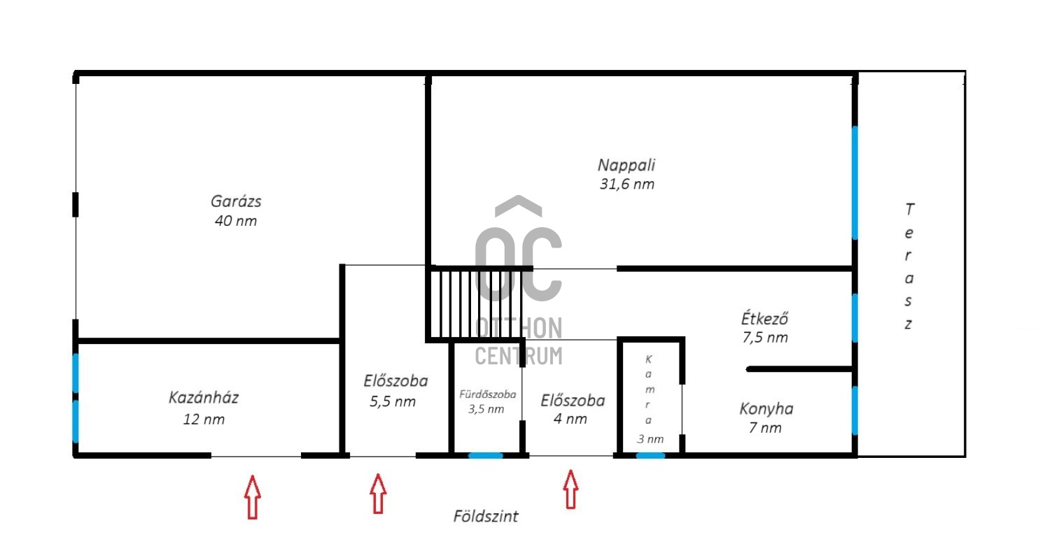
…. Budapest XV. kerületéből, Rákospalotáról hoztam Önöknek egy brtt. 326 nm-es, 8 szobás és 1 félszobás, 1986-ban, téglából épített, 2 generációs családi házat.
Az épület csendes, aszfaltozott utcában található, egy 15 méter frontszélességű, gondozott, 600 nm-es telken.
A szobákat 2 külön bejáratú lakásban osztották el, lakrészenként 2-2 fürdőszobával. A belső elválasztó falak bonthatóak, így a terek átrendezésének csak a fantázia szab határt.
A korábban beszerelt ablakokat és teraszajtókat, korszerű, műanyag keretes, hő- és hangszigetelő nyílászárókra cserélték.
A meleg vizet villanybojlerek szolgáltatják, a fűtésről a földszinti kazánházban elhelyezett gázkazán, illetve egy fa elgázosító kazán gondoskodik.
Az ingatlan értékét növeli egy 2 gépkocsi befogadására alkalmas garázs, amit az utca felől, távirányítható kapukon át lehet megközelíteni.
A kertben grillező, medence és külvárosi csend szolgálja az aktív és meditatív pihenést. A grillező körül kialakított tér alatt, 25 nm-es, 2,5 m mély, fagy mentes pincét találunk, ami zöldségek tárolására és a kerti növények teleltetésére is használhatunk.
Az ingatlan előnyeit és a benne rejlő lehetőségeket felsorolni is nehéz és még tartogat további meglepetéseket.
Amennyiben ez a ház az Ön számára is tartogat lehetőségeket, várom megtisztelő hívását, a hét minden napján.
Sok lehetőséget magába foglaló, átalakítható, újra gondolható. Kis hostel, munkásszállás vagy 2 generáció részére elszeparáltan használható. Érdemes rápillantani mert ….
…. Budapest XV. kerületéből, Rákospalotáról hoztam Önöknek egy brtt. 326 nm-es, 8 szobás és 1 félszobás, 1986-ban, téglából épített, 2 generációs családi házat.
Az épület csendes, aszfaltozott utcában található, egy 15 méter frontszélességű, gondozott, 600 nm-es telken.
A szobákat 2 külön bejáratú lakásban osztották el, lakrészenként 2-2 fürdőszobával. A belső elválasztó falak bonthatóak, így a terek átrendezésének csak a fantázia szab határt.
A korábban beszerelt ablakokat és teraszajtókat, korszerű, műanyag keretes, hő- és hangszigetelő nyílászárókra cserélték.
A meleg vizet villanybojlerek szolgáltatják, a fűtésről a földszinti kazánházban elhelyezett gázkazán, illetve egy fa elgázosító kazán gondoskodik.
Az ingatlan értékét növeli egy 2 gépkocsi befogadására alkalmas garázs, amit az utca felől, távirányítható kapukon át lehet megközelíteni.
A kertben grillező, medence és külvárosi csend szolgálja az aktív és meditatív pihenést. A grillező körül kialakított tér alatt, 25 nm-es, 2,5 m mély, fagy mentes pincét találunk, ami zöldségek tárolására és a kerti növények teleltetésére is használhatunk.
Az ingatlan előnyeit és a benne rejlő lehetőségeket felsorolni is nehéz és még tartogat további meglepetéseket.
Amennyiben ez a ház az Ön számára is tartogat lehetőségeket, várom megtisztelő hívását, a hét minden napján.
Regisztrációs szám
H508555
Az ingatlan adatai
Értékesités
eladó
Jogi státusz
használt
Jelleg
ház
Építési mód
tégla
Méret
280 m²
Bruttó méret
326 m²
Telek méret
753 m²
Terasz / erkély mérete
20 m²
Kert méret
606 m²
Fűtés
gáz kazán
Belmagasság
270 cm
Lakáson belüli szintszám
3
Tájolás
Dél-kelet
Állapot
Átlagos
Homlokzat állapota
Átlagos
Pince
Önálló
Környék
csendes, jó közlekedés, zöld
Építés éve
1986
Fürdőszobák száma
3
Társaház kert
igen
Garázs
Benne van az árban
Garázs férőhely
2
Víz
Van
Gáz
Van
Villany
Van
Csatorna
Van
Többgenerációs
igen
Tároló
Önálló
Helyiségek
nappali
31.6 m²
nappali
31.6 m²
szoba
31.6 m²
szoba
18 m²
szoba
18 m²
szoba
25 m²
szoba
25 m²
szoba
6.5 m²
fürdőszoba-wc
4 m²
fürdőszoba-wc
4 m²
konyha
6 m²
konyha
6 m²

Hazay Melinda
Hitelszakértő