121 900 000 Ft
313 000 €
- 292m²
- 8 szoba






















Gyenesdiáson, a Balatonhoz közel, több-generációs családiház eladó!
GYENESDIÁSON A LIDO ÉS - JÁTÉKSTRANDHOZ NAGYON KÖZEL ELADÁSRA KÍNÁLUNK EGY HANGULATOS CSALÁDI HÁZAT!
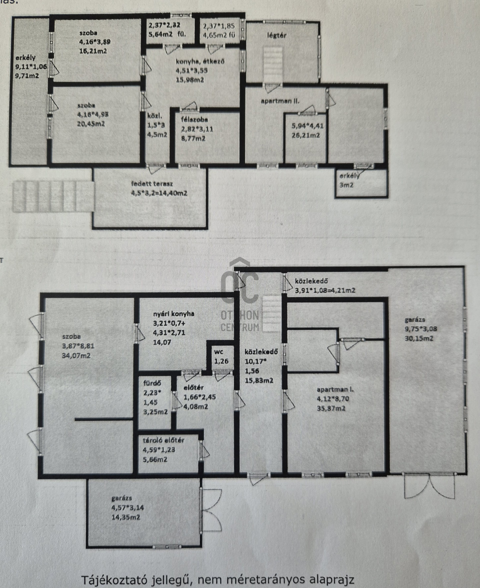
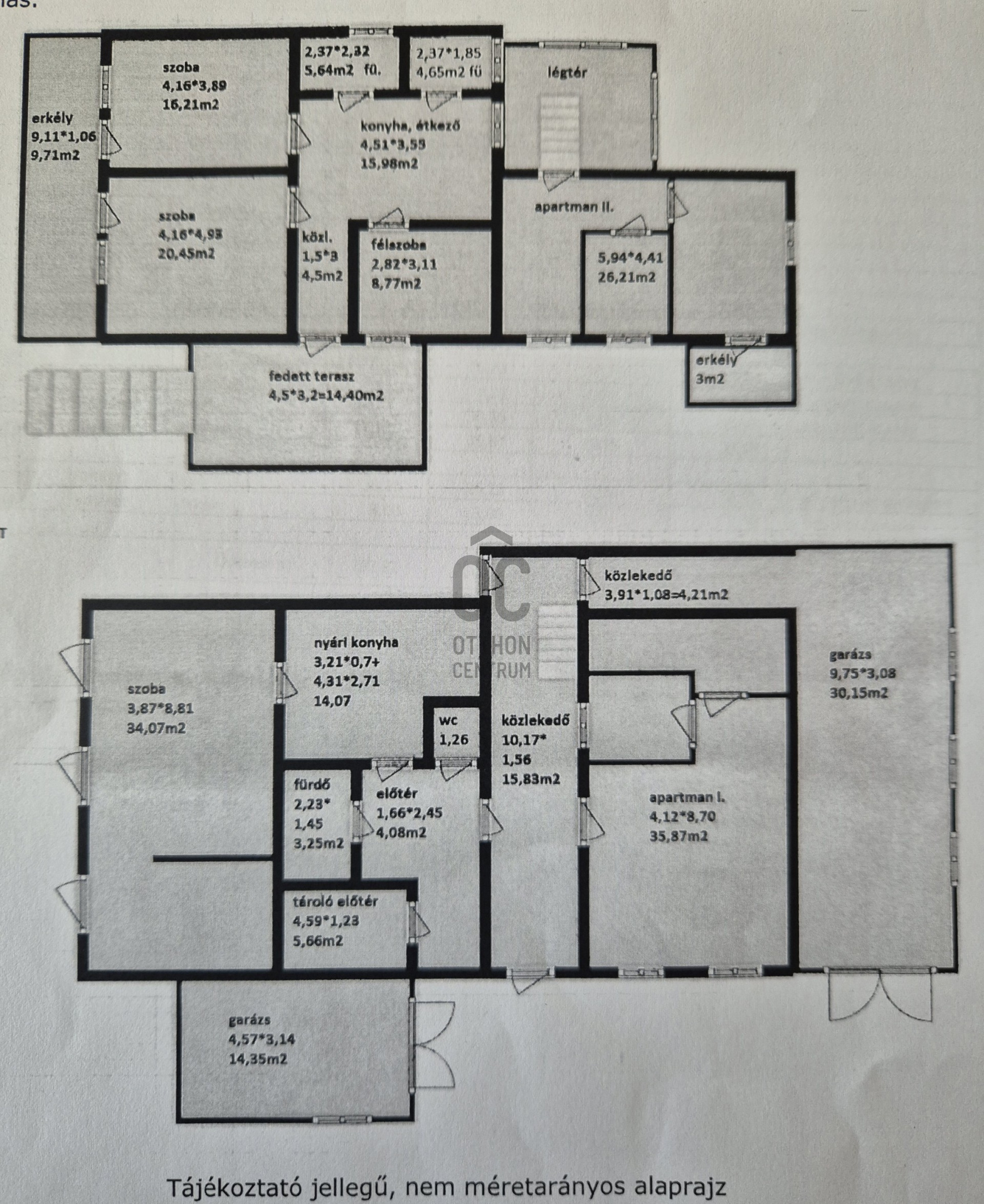
Az ingatlan több generáció nyugodt együttélésre, illetve apartmanoztatásra is kiváló lehetőség.
A telek 1197 nm, minimálisan lejtős, gondozott, gyümölcsfákkal telepített.
A ház hasznos területe 292 nm, három lakrészre osztott, két garázs is tartozik hozzá.
A három lakrész a következő, szuterén, emelet, és a kert felőli, hátsó lakrész.
Összesen 8 szoba, 5 fürdőszoba, 3 konyha, kazánház, tároló áll rendelkezésre.
Valamennyi közmű be van vezetve.
A fűtés az gáz-cirkóval megoldott.
A nyílászárók egy része már műanyag, hőszigetelt.
A ház csekély mértékű felújítás után lakható, fizető vendég fogadására viszont nagyobb beruházásra lesz szükség.
Amennyiben az ingatlan felkeltette érdeklődését, kérem hívjon bizalommal.
Az ingatlan több generáció nyugodt együttélésre, illetve apartmanoztatásra is kiváló lehetőség.
A telek 1197 nm, minimálisan lejtős, gondozott, gyümölcsfákkal telepített.
A ház hasznos területe 292 nm, három lakrészre osztott, két garázs is tartozik hozzá.
A három lakrész a következő, szuterén, emelet, és a kert felőli, hátsó lakrész.
Összesen 8 szoba, 5 fürdőszoba, 3 konyha, kazánház, tároló áll rendelkezésre.
Valamennyi közmű be van vezetve.
A fűtés az gáz-cirkóval megoldott.
A nyílászárók egy része már műanyag, hőszigetelt.
A ház csekély mértékű felújítás után lakható, fizető vendég fogadására viszont nagyobb beruházásra lesz szükség.
Amennyiben az ingatlan felkeltette érdeklődését, kérem hívjon bizalommal.
Regisztrációs szám
H508422
Az ingatlan adatai
Értékesités
eladó
Jogi státusz
használt
Jelleg
ház
Építési mód
tégla
Méret
292 m²
Bruttó méret
320 m²
Telek méret
1 197 m²
Terasz / erkély mérete
12 m²
Fűtés
Gáz cirkó
Belmagasság
260 cm
Lakáson belüli szintszám
2
Tájolás
Nyugat
Panoráma
Zöldre néző panoráma
Állapot
Átlagos
Homlokzat állapota
Átlagos
Környék
csendes, jó közlekedés, zöld
Építés éve
1980
Fürdőszobák száma
5
Garázs
Benne van az árban
Garázs férőhely
3
Víz
Van
Gáz
Van
Villany
Van
Csatorna
Van
Vízpart távolsága
500 méterre
Helyiségek
szoba
1 m²
dolgozószoba
1 m²
hálószoba
1 m²
szoba
1 m²
szoba
1 m²
hálószoba
1 m²
hálószoba
1 m²
szoba
1 m²
konyha
1 m²
konyha
1 m²
konyha
1 m²
fürdőszoba-wc
1 m²
fürdőszoba-wc
1 m²
fürdőszoba-wc
1 m²
fürdőszoba-wc
1 m²
fürdőszoba-wc
1 m²
garázs
1 m²
garázs
1 m²