Elérhető Otthon Start hitellel
Eladó családi ház,
H506504
Budapest XXIII. kerület, Soroksár
56 000 000 Ft
145 000 €
- 56m²
- 1 szoba















MEGFIZETHETŐ, ÖNÁLLÓ CSALÁDI HÁZ BUDAPEST 23 KERÜLETÉBEN, SOROKSÁRON
Fedezze fel ezt a kivételes lehetőséget! Vásárolja meg ezt az ingatlant Otthon Start fix 3%-os hitellel.
Remek lehetőség azoknak, akik saját önálló családi házra vágynak, vagy befektetési céllal keresnek ingatlant!
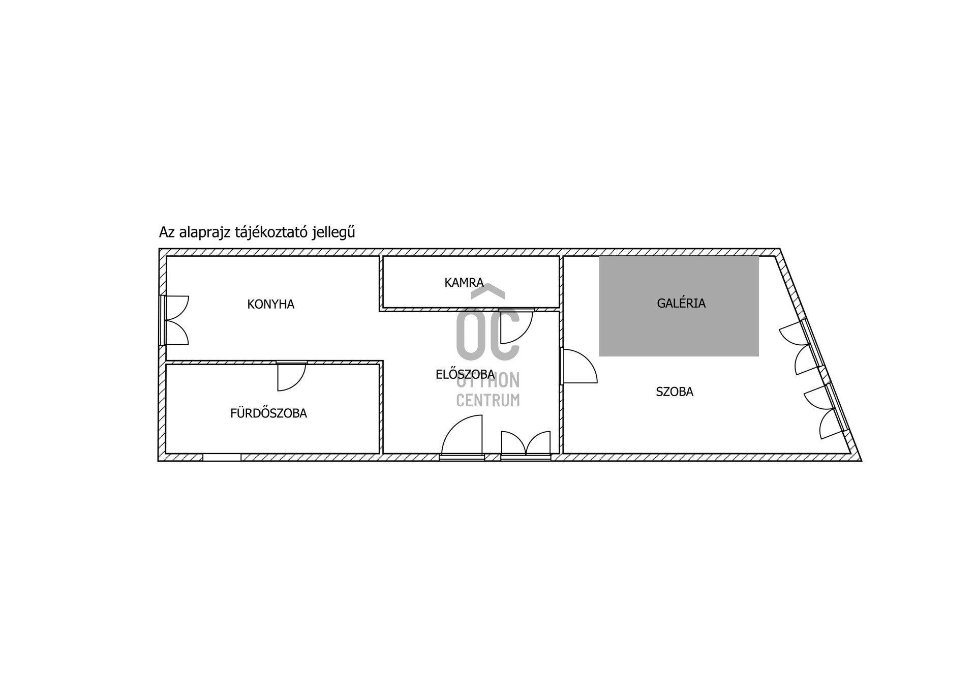
Eladásra kínálunk egy önálló kertes házat 17 nm-es terasszal Budapest 23. kerületében, Soroksáron. Az ingatlanon kívül-belül 2021-ben teljes felújítás történt. Ez a világos, galériás lakás egy csendes, barátságos környéken található, ahol a természet közelsége és a városi élet előnyei egyaránt elérhetőek. Az ingatlan egy 227 nm-es telken helyezkedik el, így a kert használata lehetőséget biztosít a pihenésre és a szabadban eltöltött időre. A lakás elrendezése praktikus, egy tágas szobával és egy fürdőszobával rendelkezik, amely ideális otthont biztosít egyedülállóknak vagy fiatal pároknak. A lakás fűtése gázkonvektorral megoldott, ami gazdaságos és hatékony fűtést biztosít a hideg téli hónapokban. A hűtésről klímaberendezés gondoskodik, így a nyári kánikulában is kellemes hőmérséklet várja Önt. A terasz, amely 17 nm-es, tökéletes helyszín a baráti összejövetelekhez vagy egy csésze kávé melletti pihenéshez, miközben élvezheti a panorámát.
Bővebben az ingatlanról:
- 48 nm lakóterület + 17 nm-es terasz
- szigetelt homlokzat
- tető felújítás (szigetelés, bádogozás, cserepek tisztítása)
- villanyvezetékek cseréje megtörtént
- műanyag hang-, és hőszigetelt nyílászárók lettek beszerelve
- fűtéséről új, modern gázkonvektorok gondoskodnak
- hűtését inverteres (hűtő-fűtő) klíma látja el
- meleg víz ellátásáért villanybojler felelős
- 227 nm-es intim kert tartozik hozzá
- alacsony rezsivel rendelkezik
Soroksár egy dinamikusan fejlődő kerület, ahol a közlekedési lehetőségek is kiválóak. A város tömegközlekedési hálózata könnyen elérhető, így a belváros gyorsan megközelíthető, míg az autóval közlekedők számára a környék jól kiépített úthálózata biztosítja a zökkenőmentes közlekedést. A közelben található boltok, éttermek és szolgáltatások pedig minden igényt kielégítenek, így a mindennapi élet kényelmesen és egyszerűen lebonyolítható. A környék biztonságos és csendes, ideális választás mindazok számára, akik egy nyugodt, zöldövezeti környezetben szeretnének élni, ugyanakkor közel a város nyújtotta lehetőségekhez. A helyi közösség barátságos, ami hozzájárul a kellemes lakókörnyezethez.
Amennyiben érdeklődik a lakás iránt, bizalommal kereshet kérdéseivel! Ne hagyja ki ezt a remek lehetőséget, hogy saját otthona legyen egy ilyen vonzó környéken!
Hívjon a hét bármely napján!
Fedezze fel ezt a kivételes lehetőséget! Vásárolja meg ezt az ingatlant Otthon Start fix 3%-os hitellel.
Remek lehetőség azoknak, akik saját önálló családi házra vágynak, vagy befektetési céllal keresnek ingatlant!
Eladásra kínálunk egy önálló kertes házat 17 nm-es terasszal Budapest 23. kerületében, Soroksáron. Az ingatlanon kívül-belül 2021-ben teljes felújítás történt. Ez a világos, galériás lakás egy csendes, barátságos környéken található, ahol a természet közelsége és a városi élet előnyei egyaránt elérhetőek. Az ingatlan egy 227 nm-es telken helyezkedik el, így a kert használata lehetőséget biztosít a pihenésre és a szabadban eltöltött időre. A lakás elrendezése praktikus, egy tágas szobával és egy fürdőszobával rendelkezik, amely ideális otthont biztosít egyedülállóknak vagy fiatal pároknak. A lakás fűtése gázkonvektorral megoldott, ami gazdaságos és hatékony fűtést biztosít a hideg téli hónapokban. A hűtésről klímaberendezés gondoskodik, így a nyári kánikulában is kellemes hőmérséklet várja Önt. A terasz, amely 17 nm-es, tökéletes helyszín a baráti összejövetelekhez vagy egy csésze kávé melletti pihenéshez, miközben élvezheti a panorámát.
Bővebben az ingatlanról:
- 48 nm lakóterület + 17 nm-es terasz
- szigetelt homlokzat
- tető felújítás (szigetelés, bádogozás, cserepek tisztítása)
- villanyvezetékek cseréje megtörtént
- műanyag hang-, és hőszigetelt nyílászárók lettek beszerelve
- fűtéséről új, modern gázkonvektorok gondoskodnak
- hűtését inverteres (hűtő-fűtő) klíma látja el
- meleg víz ellátásáért villanybojler felelős
- 227 nm-es intim kert tartozik hozzá
- alacsony rezsivel rendelkezik
Soroksár egy dinamikusan fejlődő kerület, ahol a közlekedési lehetőségek is kiválóak. A város tömegközlekedési hálózata könnyen elérhető, így a belváros gyorsan megközelíthető, míg az autóval közlekedők számára a környék jól kiépített úthálózata biztosítja a zökkenőmentes közlekedést. A közelben található boltok, éttermek és szolgáltatások pedig minden igényt kielégítenek, így a mindennapi élet kényelmesen és egyszerűen lebonyolítható. A környék biztonságos és csendes, ideális választás mindazok számára, akik egy nyugodt, zöldövezeti környezetben szeretnének élni, ugyanakkor közel a város nyújtotta lehetőségekhez. A helyi közösség barátságos, ami hozzájárul a kellemes lakókörnyezethez.
Amennyiben érdeklődik a lakás iránt, bizalommal kereshet kérdéseivel! Ne hagyja ki ezt a remek lehetőséget, hogy saját otthona legyen egy ilyen vonzó környéken!
Hívjon a hét bármely napján!
Regisztrációs szám
H506504
Az ingatlan adatai
Értékesités
eladó
Jogi státusz
használt
Jelleg
ház
Építési mód
tégla
Méret
56 m²
Bruttó méret
80 m²
Telek méret
227 m²
Terasz / erkély mérete
17 m²
Fűtés
gázkonvektor
Belmagasság
315 cm
Tájolás
Dél
Állapot
Jó
Homlokzat állapota
Jó
Építés éve
1960
Fürdőszobák száma
1
Víz
Van
Gáz
Van
Villany
Van
Csatorna
Van
Helyiségek
szoba
18 m²
előszoba
9 m²
fürdőszoba-wc
7 m²
konyha
10 m²
kamra
3 m²

Samu Györgyné
Hitelszakértő