Elérhető Otthon Start hitellel
Eladó családi ház,
H504507
Budapest XVII. kerület, Rákoskert
74 900 000 Ft
193 000 €
- 170m²
- 6 szoba





















Akár két-három generációnak is alkalmas családi ház Rákoskerten eladó
XVII. kerületben Rákoskerten aszfaltos utcában kínálunk megvásárlásra egy jelenleg két lakásból álló, két lakószintes önálló családi házat 577 nm-es összközműves telekkel. A ház a 70-es évek közepén épült, masszív téglaház. A földszinten egy nagy, szerelőaknás garázs, több tároló, kazánház kaptak helyet 71 nm-en. A magasföldszinti lakásban két nagy és egy kisebb szoba, egy konyha-étkező, kamra, fürdőszoba, közlekedő található (74 nm), ez a szint teljes felújítást igényel. Az emeleti lakásba egy világos lépcsőházból jutunk fel, ahol egy felújított 64 nm alapterületű lakás került kialakításra. Itt az egyik szoba jelenleg tároló, továbbá egy konyha-étkező-nappali (jelenleg konyhabútor már nincs), egy hálószoba, és egy fürdőszoba található. Ezen a szinten a fűtést hűtő-fűtő klíma biztosítja. Az emeleti lakás jelenleg üres, ki lettek pakolva a bútorok. A gáz telken belül van, a kazánházba beépítésre került egy vegyes tüzelésű kazán. Rendezett, családi házas környék, jó közlekedés.
Regisztrációs szám
H504507
Az ingatlan adatai
Értékesités
eladó
Jogi státusz
használt
Jelleg
ház
Építési mód
tégla
Méret
170 m²
Bruttó méret
190 m²
Telek méret
577 m²
Terasz / erkély mérete
10 m²
Fűtés
vegyestüzelésű kazán
Belmagasság
270 cm
Lakáson belüli szintszám
3
Tájolás
Dél
Állapot
Felújítandó
Homlokzat állapota
Átlagos
Pince
Önálló
Környék
jó közlekedés, zöld
Építés éve
1974
Fürdőszobák száma
2
Garázs
Benne van az árban
Garázs férőhely
2
Víz
Van
Villany
Van
Csatorna
Van
Többgenerációs
igen
Tároló
Önálló
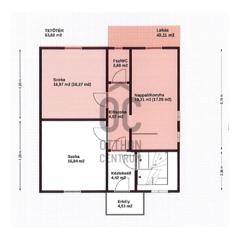
Helyiségek
nappali
23 m²
hálószoba
17.69 m²
konyha
8.27 m²
fürdőszoba
5.39 m²
wc
0.61 m²
hálószoba
5.74 m²
lépcsőház
4.83 m²
közlekedő
5.6 m²
erkély
5.6 m²
közlekedő
4.42 m²
hálószoba
16.97 m²
erkély
4.51 m²
fürdőszoba-wc
2.68 m²
hálószoba
17.84 m²
nappali-konyha
19.21 m²
előszoba
4.87 m²
garázs
40.86 m²
tároló
18.05 m²
tároló
9.15 m²
lépcsőház
5.52 m²
előszoba
3.14 m²

Torday Tibor
Hitelszakértő