159 800 000 Ft
419 000 €
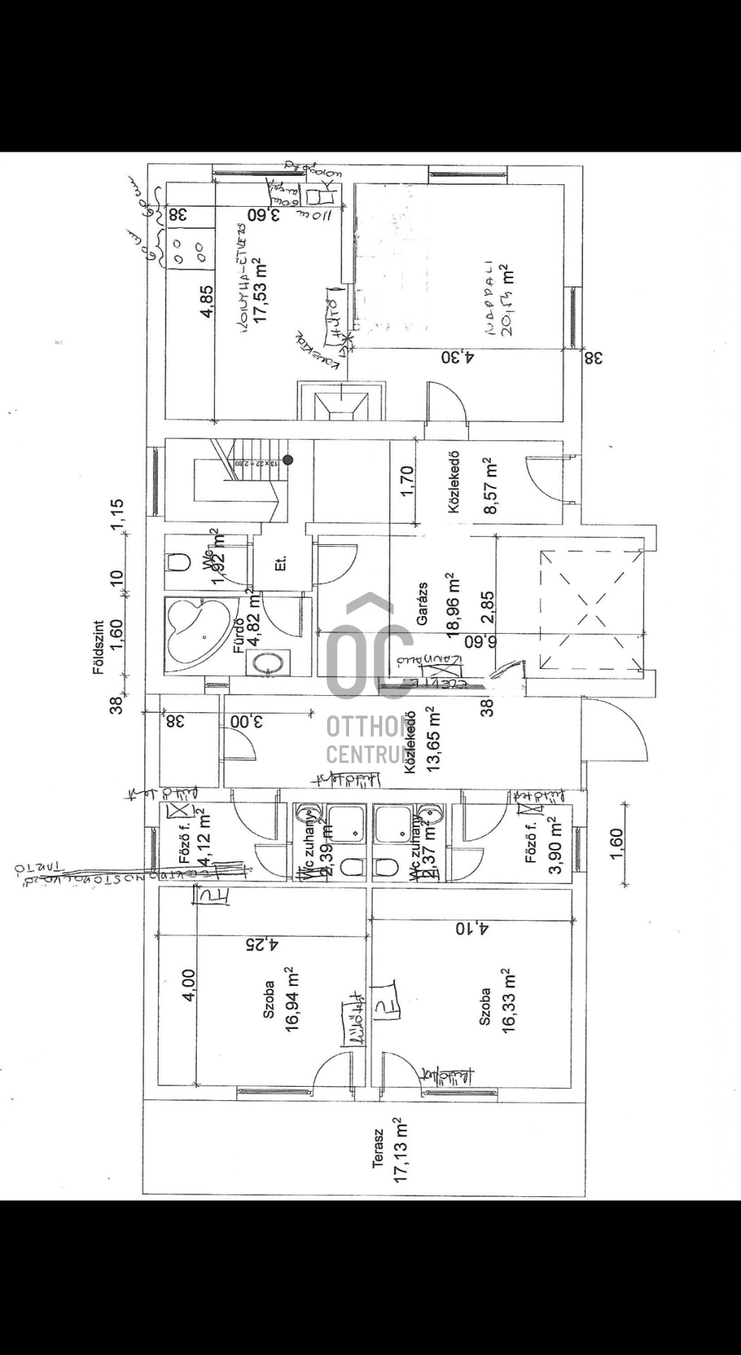
- 150m²
- 5 szoba
Fedezze fel Hévíz varázsát! Tágas, 5 szobás ház várja új tulajdonosát!
Hévíz szívében, a Zala vármegye gyönyörű környezetében kínálunk eladásra egy kivételes, prémium kivitelezésű családi házat, mely tökéletes választás lehet mindazok számára, akik a nyugodt, csendes környezetet keresik, de mégis közel szeretnének maradni a város nyújtotta lehetőségekhez.
Az ingatlan magját egy 150 négyzetméteres alapterülettel képzi, amely öt tágas szobát foglal magában, mindezek mellett 3 teljes ellátottságú apartmant, mely akár szobakiadásra is alkalmas lehet és bőséges teret biztosít a család minden tagja számára, akár több generációnak is.
A ház hat fürdőszobával büszkélkedhet, ami különösen praktikus, ha vendégeket fogadna, vagy egyszerűen csak a kényelmet szeretné élvezni. A ház állapota kiváló, a modern fűtési rendszer gáz (cirko), illetve egy cserépkályha biztosítja a kellemes hőmérsékletet télen, míg a 3 darab klíma a nyári melegben nyújt felfrissülést. A tágas nappali LED hangulatvilágítással és beépített bútorokkal, valamint szekrényekkel van felszerelve, ami nemcsak esztétikus, hanem praktikus megoldásokat is kínál.
Az ingatlanhoz tartozik egy 50 négyzetméteres panorámás terasz, amely ideális helyszín lehet a családi összejövetelekhez vagy a pihenéshez. A kertben egy 8 személyes jakuzzi is rendelkezésre áll a család, mind a vendégek számára.
A rendezett kert és a kerti tároló további előnyöket nyújt, lehetőséget teremtve a szabadidős tevékenységekre. Mindezek mellett található több kerti fedett kiülő, bográcsozó és kemence is. A környék kiemelkedő adottságai között szerepel a kitűnő közlekedési lehetőség, hiszen a város főbb közlekedési csomópontjai könnyen elérhetők. A csendes, felkapott környék biztonságos környezetet biztosít, ahol a család minden tagja nyugodtan élvezheti a mindennapokat. Hévíz híres gyógyfürdőjéről és termálvizes medencéjéről, így a helyi lakosok számára számos kikapcsolódási lehetőség áll rendelkezésre, legyen szó wellnessről, gyógyturizmusról vagy aktív pihenésről.
Ez a tehermentes ingatlan tökéletes választás lehet magánszemélyek és befektetők számára is, akik hosszú távú értékálló befektetést keresnek. Az ingatlan iránt érdeklődők bizalommal kereshetnek kérdéseikkel kapcsolatban, hiszen szívesen nyújtunk további információkat vagy akár személyes bemutatót is.
Ne hagyja ki ezt a páratlan lehetőséget!
Az ingatlan magját egy 150 négyzetméteres alapterülettel képzi, amely öt tágas szobát foglal magában, mindezek mellett 3 teljes ellátottságú apartmant, mely akár szobakiadásra is alkalmas lehet és bőséges teret biztosít a család minden tagja számára, akár több generációnak is.
A ház hat fürdőszobával büszkélkedhet, ami különösen praktikus, ha vendégeket fogadna, vagy egyszerűen csak a kényelmet szeretné élvezni. A ház állapota kiváló, a modern fűtési rendszer gáz (cirko), illetve egy cserépkályha biztosítja a kellemes hőmérsékletet télen, míg a 3 darab klíma a nyári melegben nyújt felfrissülést. A tágas nappali LED hangulatvilágítással és beépített bútorokkal, valamint szekrényekkel van felszerelve, ami nemcsak esztétikus, hanem praktikus megoldásokat is kínál.
Az ingatlanhoz tartozik egy 50 négyzetméteres panorámás terasz, amely ideális helyszín lehet a családi összejövetelekhez vagy a pihenéshez. A kertben egy 8 személyes jakuzzi is rendelkezésre áll a család, mind a vendégek számára.
A rendezett kert és a kerti tároló további előnyöket nyújt, lehetőséget teremtve a szabadidős tevékenységekre. Mindezek mellett található több kerti fedett kiülő, bográcsozó és kemence is. A környék kiemelkedő adottságai között szerepel a kitűnő közlekedési lehetőség, hiszen a város főbb közlekedési csomópontjai könnyen elérhetők. A csendes, felkapott környék biztonságos környezetet biztosít, ahol a család minden tagja nyugodtan élvezheti a mindennapokat. Hévíz híres gyógyfürdőjéről és termálvizes medencéjéről, így a helyi lakosok számára számos kikapcsolódási lehetőség áll rendelkezésre, legyen szó wellnessről, gyógyturizmusról vagy aktív pihenésről.
Ez a tehermentes ingatlan tökéletes választás lehet magánszemélyek és befektetők számára is, akik hosszú távú értékálló befektetést keresnek. Az ingatlan iránt érdeklődők bizalommal kereshetnek kérdéseikkel kapcsolatban, hiszen szívesen nyújtunk további információkat vagy akár személyes bemutatót is.
Ne hagyja ki ezt a páratlan lehetőséget!
Regisztrációs szám
H504492
Az ingatlan adatai
Értékesités
eladó
Jogi státusz
használt
Jelleg
ház
Építési mód
tégla
Méret
150 m²
Bruttó méret
175 m²
Telek méret
700 m²
Terasz / erkély mérete
50 m²
Kert méret
300 m²
Fűtés
Gáz cirkó
Belmagasság
270 cm
Lakáson belüli szintszám
2
Tájolás
Dél-nyugat
Panoráma
városi panoráma, Egyéb
Állapot
Kiváló
Homlokzat állapota
Kiváló
Pince
Önálló
Környék
csendes, jó közlekedés, központi
Építés éve
1995
Fürdőszobák száma
6
Társaház kert
igen
Víz
Van
Gáz
Van
Villany
Van
Csatorna
Van
Többgenerációs
igen
Helyiségek
nappali
1 m²
konyha-étkező
1 m²
szoba
1 m²
szoba
1 m²
szoba
1 m²
szoba
1 m²
szoba
1 m²
tároló
1 m²
gardrób
1 m²
terasz
1 m²
dolgozószoba
1 m²
fürdőszoba
1 m²
fürdőszoba
1 m²
fürdőszoba
1 m²
fürdőszoba
1 m²
wc
1 m²
wc
1 m²
wc
1 m²
wc
1 m²
Edve János
Hitelszakértő