159 000 000 Ft
420 000 €
- 195m²
- 5 szoba
MEDITERRÁN VARÁZS A BALATON PARTJÁN
Balatongyörök panorámás, csendes, forgalomtól elzárt, strandhoz közeli részén kínálunk egy 2017-ben épült mediterrán stílusú, nettó 150m2-es lakóházat, gyönyörűen parkosított, 1022nm-es telekkel, alacsony rezsivel.
KIEMELT MEGBÍZÁS AZ OTTHON CENTRUM KÍNÁLATÁBAN!
Az ingatlan fő jellemzői:
- aszfaltos, minimális forgalmú úton megközelíthető
- BALATONI részpanorámás telek és ház, kilátással a település felett húzódó csodaszép, ritkás, fenyvessel tarkított Keszthelyi-hegység csúcsára is
- az udvar előkertből, oldal és hátsókertből áll, rendezett, parkosított, körbekerített
- összközműves ingatlan saját 30m mély FÚRT KÚTTAL
- 2.5kW-os NAPELEMRENDSZER segíti csökkenteni a villanyszámlát 13 panellel
- 2 féle fűtési rendszer: gázcirkó és vízteres kandalló keringeti a meleg vizet, melynek hője a padlóban, illetve a radiátorokban kerül leadásra
- a nappaliban inverteres KLÍMA került beszerelésre
- a melegvizet 2 villanybojler adja
- a ház födéme SZIGETELT, mediterrán betoncseréppel héjazott
- a ház 38-as porotherm TÉGLÁBÓL épült, szigetelt
- az első lakószint alatt található az ablakos, gépészetnek is helyt adó pince
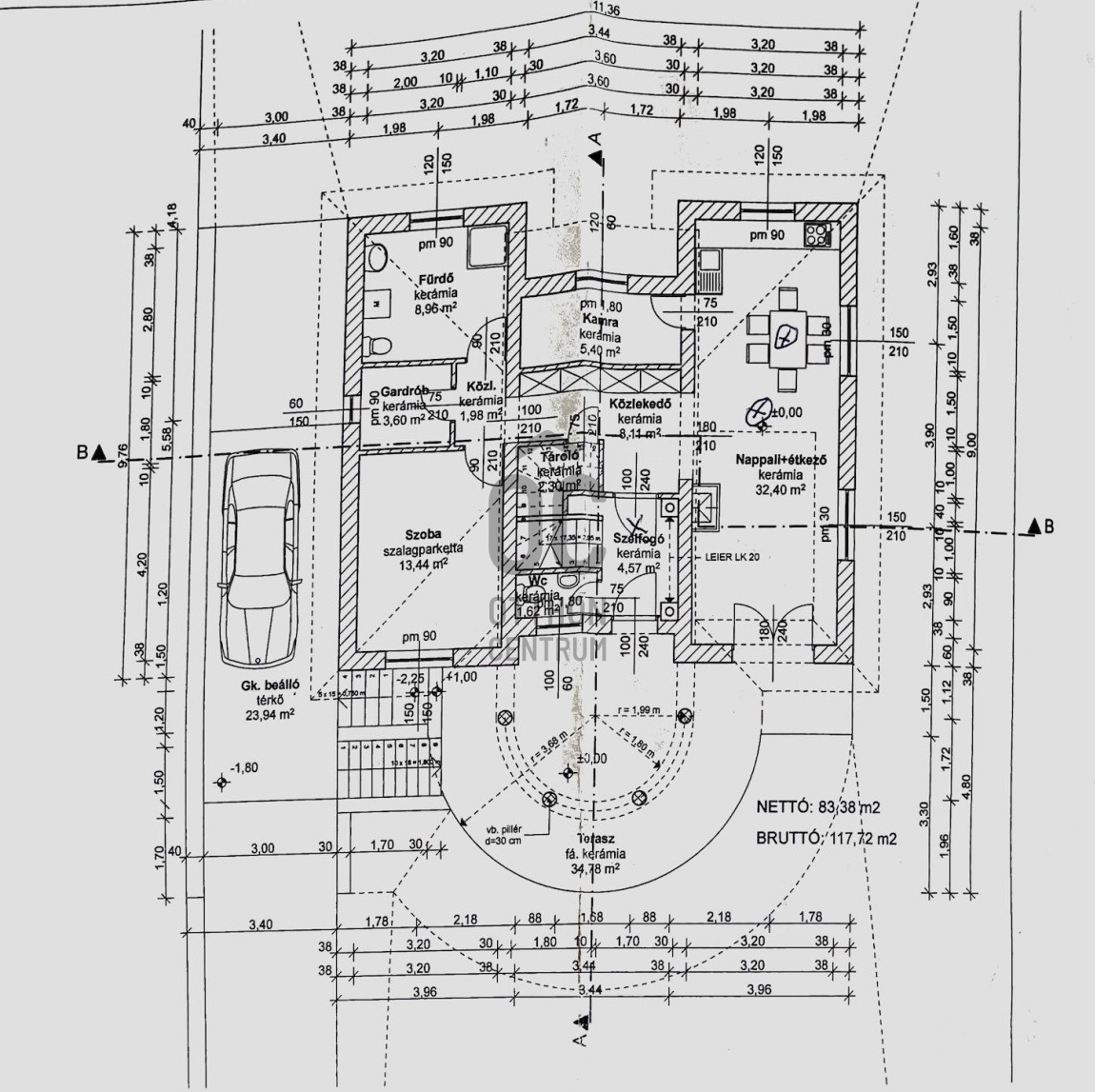
- a földszinti részen található egy üvegezett terasz, az előtérből nyílik a wc-kézmosó, a hálószoba, a gardrób, a zuhanyzós fürdőszoba, valamint a konyha-étkező-nappali
- az emeletre kényelmes lépcsőn jutuk fel, itt található egy panorámás, tágas szoba, teakonyha, zuhanyzós fürdőszoba és egy kisebb szoba, valamint egy nagy, fedett terasz teljes kilátással a Balaton Keszthelyi-öblére
- fedett és nyitott autóbeállási lehetőség is adott.
- a nyílászárók műanyagok, hőszigeteltek, redőnnyel és szúnyoghálóval ellátottak
- minden helyiség ablakos, világos
- az étkező-nappalit és az emeleti teraszt a déli nap éri, míg a szobákat és az üvegezett teraszt a délutáni
- 2 GENERÁCIÓNAK is kiváló
- a kertben 13 féle PÁLMA található, ezek mellett pedig termő gyümölcsfák és bokrok (alma, körte, őszibarack, nektarin, indián banán-pawpaw, szőlő, málna, fekete szeder)
- a kert igazi ritkaság, mely az évek során összegyűjtött különleges fajták és szeretettel gondozott munka eredménye
- a strand gyalogosan elérhető
„Sohasem felejtem azt a pillanatot, amikor én ezt a tündérországot először megláttam.” Szólnak Eötvös Károly – író, a település szülöttének szavai.
Balatongyörök egy község Zala vármegyében, a Keszthelyi járásban, a Balaton északi partján, a 71-es főút mellett. A település két vasúti megállóhellyel rendelkezik, valamint sűrű autóbuszjárat köti össze Keszthellyel és Tapolcával. Nyári időszakban rendszeres hajójárat indul Keszthelyre, valamint Balatonmáriafürdő, Szigliget és Badacsony érintésével Fonyódra.
Balatongyörök legismertebb pontjai a Szépkilátó és a györöki strand. A balatongyöröki strand vize kiváló minőségű és kristálytiszta, minden évben a legjobbaknak járó kékhullám zászló kitüntetéssel díjazott.
Ha felkeltettem érdeklődését ezzel a korszerűen megépített, nyaralónak vagy állandó lakhatásra is ideális ingatlannal, várom megtisztelő hívását.
Angol leírásFamily house with a panoramic view of the Balaton and low utilities
In the panoramic, quiet part of Balatongyörök, with no traffic, close to the beach, we offer a Mediterranean-style, net 150 sqm residential house built in 2017, with a beautifully landscaped, 1022 sqm yard, with low utility costs.
The main features of the property:
- Accessible by an asphalt road with minimal traffic
- Land and house with a panoramic view of Balaton, with a view to the peak of the beautiful, rare, pine-covered Keszthelyi Mountains stretching above the settlement
- The yard consists of a front garden, a side garden and a back garden, arranged, landscaped and fenced
- Full public utility supplied property with its own 30m deep drilled well
- A 2.5kW solar panel system helps reduce the electricity bill with 13 panels
- 2 types of heating systems: a gas based and a wooden burning stove circulate the hot water, the heat of which is released in the floor and in the radiators
- The living room is equipped with inverter air conditioning
- Hot water is provided by 2 electric boilers
- The roof of the house is insulated and covered with Mediterranean concrete tiles
- The house is built of 38 porotherm tiles, insulated
- Below the first living floor is the basement with windows, hosting the machines of the heating system and the well.
- On the ground floor there is a glazed terrace, from the hall we can enter to the guest toilet with sink, to the bedroom, a wardrobe, a bathroom with a shower, and to the kitchen-dining-living room
- We reach the first floor by a comfortable staircase, there is a panoramic, spacious room, kitchenette, bathroom with shower and a smaller room, as well as a large, covered terrace with a full view of the Keszthely bay of Balaton
- Covered and open parking is also available.
- The doors and windows are plastic, thermally insulated, equipped with shutters and mosquito nets
- All rooms have windows and are bright.
- The dining-living room and the upstairs terrace are exposed to the midday sun, while the rooms and the glazed terrace are exposed to the afternoon sun.
- Excellent for 2 generations
- There are 13 types of palm trees in the garden, as well as fruit trees and bushes (apples, pears, peaches, nectarines, Indian banana-pawpaws, grapes, raspberries, blackberries)
- The beach is within walking distance
"I will never forget the moment I saw this fairyland for the first time." The words of Károly Eötvös - writer, native of the settlement.
Balatongyörök is a village in the county of Zala, in the district of Keszthely, on the northern shore of Lake Balaton, next to highway 71. The settlement has two railway stops and a frequent bus route connects it with Keszthely and Tapolca. During the summer season, there is a regular boat service to Keszthely, as well as to Fonyód via Balatonmáriafürdő, Szigliget and Badacsony.
The best-known points of Balatongyörök are Szépkilátó lookout point and the beach. The water of the beach in Balatongyörök is of high quality and crystal clear, awarded every year.
If I have piqued your interest with this modernly built property that is ideal for vacation or permanent residence, I look forward to hearing from you.
KIEMELT MEGBÍZÁS AZ OTTHON CENTRUM KÍNÁLATÁBAN!
Az ingatlan fő jellemzői:
- aszfaltos, minimális forgalmú úton megközelíthető
- BALATONI részpanorámás telek és ház, kilátással a település felett húzódó csodaszép, ritkás, fenyvessel tarkított Keszthelyi-hegység csúcsára is
- az udvar előkertből, oldal és hátsókertből áll, rendezett, parkosított, körbekerített
- összközműves ingatlan saját 30m mély FÚRT KÚTTAL
- 2.5kW-os NAPELEMRENDSZER segíti csökkenteni a villanyszámlát 13 panellel
- 2 féle fűtési rendszer: gázcirkó és vízteres kandalló keringeti a meleg vizet, melynek hője a padlóban, illetve a radiátorokban kerül leadásra
- a nappaliban inverteres KLÍMA került beszerelésre
- a melegvizet 2 villanybojler adja
- a ház födéme SZIGETELT, mediterrán betoncseréppel héjazott
- a ház 38-as porotherm TÉGLÁBÓL épült, szigetelt
- az első lakószint alatt található az ablakos, gépészetnek is helyt adó pince
- a földszinti részen található egy üvegezett terasz, az előtérből nyílik a wc-kézmosó, a hálószoba, a gardrób, a zuhanyzós fürdőszoba, valamint a konyha-étkező-nappali
- az emeletre kényelmes lépcsőn jutuk fel, itt található egy panorámás, tágas szoba, teakonyha, zuhanyzós fürdőszoba és egy kisebb szoba, valamint egy nagy, fedett terasz teljes kilátással a Balaton Keszthelyi-öblére
- fedett és nyitott autóbeállási lehetőség is adott.
- a nyílászárók műanyagok, hőszigeteltek, redőnnyel és szúnyoghálóval ellátottak
- minden helyiség ablakos, világos
- az étkező-nappalit és az emeleti teraszt a déli nap éri, míg a szobákat és az üvegezett teraszt a délutáni
- 2 GENERÁCIÓNAK is kiváló
- a kertben 13 féle PÁLMA található, ezek mellett pedig termő gyümölcsfák és bokrok (alma, körte, őszibarack, nektarin, indián banán-pawpaw, szőlő, málna, fekete szeder)
- a kert igazi ritkaság, mely az évek során összegyűjtött különleges fajták és szeretettel gondozott munka eredménye
- a strand gyalogosan elérhető
„Sohasem felejtem azt a pillanatot, amikor én ezt a tündérországot először megláttam.” Szólnak Eötvös Károly – író, a település szülöttének szavai.
Balatongyörök egy község Zala vármegyében, a Keszthelyi járásban, a Balaton északi partján, a 71-es főút mellett. A település két vasúti megállóhellyel rendelkezik, valamint sűrű autóbuszjárat köti össze Keszthellyel és Tapolcával. Nyári időszakban rendszeres hajójárat indul Keszthelyre, valamint Balatonmáriafürdő, Szigliget és Badacsony érintésével Fonyódra.
Balatongyörök legismertebb pontjai a Szépkilátó és a györöki strand. A balatongyöröki strand vize kiváló minőségű és kristálytiszta, minden évben a legjobbaknak járó kékhullám zászló kitüntetéssel díjazott.
Ha felkeltettem érdeklődését ezzel a korszerűen megépített, nyaralónak vagy állandó lakhatásra is ideális ingatlannal, várom megtisztelő hívását.
Angol leírásFamily house with a panoramic view of the Balaton and low utilities
In the panoramic, quiet part of Balatongyörök, with no traffic, close to the beach, we offer a Mediterranean-style, net 150 sqm residential house built in 2017, with a beautifully landscaped, 1022 sqm yard, with low utility costs.
The main features of the property:
- Accessible by an asphalt road with minimal traffic
- Land and house with a panoramic view of Balaton, with a view to the peak of the beautiful, rare, pine-covered Keszthelyi Mountains stretching above the settlement
- The yard consists of a front garden, a side garden and a back garden, arranged, landscaped and fenced
- Full public utility supplied property with its own 30m deep drilled well
- A 2.5kW solar panel system helps reduce the electricity bill with 13 panels
- 2 types of heating systems: a gas based and a wooden burning stove circulate the hot water, the heat of which is released in the floor and in the radiators
- The living room is equipped with inverter air conditioning
- Hot water is provided by 2 electric boilers
- The roof of the house is insulated and covered with Mediterranean concrete tiles
- The house is built of 38 porotherm tiles, insulated
- Below the first living floor is the basement with windows, hosting the machines of the heating system and the well.
- On the ground floor there is a glazed terrace, from the hall we can enter to the guest toilet with sink, to the bedroom, a wardrobe, a bathroom with a shower, and to the kitchen-dining-living room
- We reach the first floor by a comfortable staircase, there is a panoramic, spacious room, kitchenette, bathroom with shower and a smaller room, as well as a large, covered terrace with a full view of the Keszthely bay of Balaton
- Covered and open parking is also available.
- The doors and windows are plastic, thermally insulated, equipped with shutters and mosquito nets
- All rooms have windows and are bright.
- The dining-living room and the upstairs terrace are exposed to the midday sun, while the rooms and the glazed terrace are exposed to the afternoon sun.
- Excellent for 2 generations
- There are 13 types of palm trees in the garden, as well as fruit trees and bushes (apples, pears, peaches, nectarines, Indian banana-pawpaws, grapes, raspberries, blackberries)
- The beach is within walking distance
"I will never forget the moment I saw this fairyland for the first time." The words of Károly Eötvös - writer, native of the settlement.
Balatongyörök is a village in the county of Zala, in the district of Keszthely, on the northern shore of Lake Balaton, next to highway 71. The settlement has two railway stops and a frequent bus route connects it with Keszthely and Tapolca. During the summer season, there is a regular boat service to Keszthely, as well as to Fonyód via Balatonmáriafürdő, Szigliget and Badacsony.
The best-known points of Balatongyörök are Szépkilátó lookout point and the beach. The water of the beach in Balatongyörök is of high quality and crystal clear, awarded every year.
If I have piqued your interest with this modernly built property that is ideal for vacation or permanent residence, I look forward to hearing from you.
Regisztrációs szám
H504243
Az ingatlan adatai
Értékesités
eladó
Jogi státusz
használt
Jelleg
ház
Építési mód
tégla
Méret
195 m²
Bruttó méret
220 m²
Telek méret
1 022 m²
Terasz / erkély mérete
35 m²
Fűtés
gáz kazán
Belmagasság
260 cm
Lakáson belüli szintszám
3
Tájolás
Dél-nyugat
Panoráma
folyóra tóra néző panoráma, Zöldre néző panoráma
Állapot
Jó
Homlokzat állapota
Jó
Pince
Önálló
Környék
csendes, jó közlekedés, zöld, központi
Építés éve
2017
Fürdőszobák száma
2
Fedett beállók száma
1
Víz
Van
Gáz
Van
Villany
Van
Csatorna
Van
Tároló
Önálló
Helyiségek
pince
30 m²
terasz
35 m²
előszoba
4.5 m²
wc-kézmosó
1.6 m²
tároló
2.3 m²
konyha-étkező
13.4 m²
kamra
5.4 m²
nappali
19 m²
hálószoba
13.44 m²
fürdőszoba-wc
9 m²
gardrób
3.6 m²
szoba
16 m²
szoba
8.3 m²
konyha
7.12 m²
fürdőszoba-wc
4.25 m²
terasz
10.35 m²
kocsibeálló
24 m²
Edve János
Hitelszakértő