Elérhető Otthon Start hitellel
Eladó lakás,
H504242
Hévíz
89 900 000 Ft
232 000 €
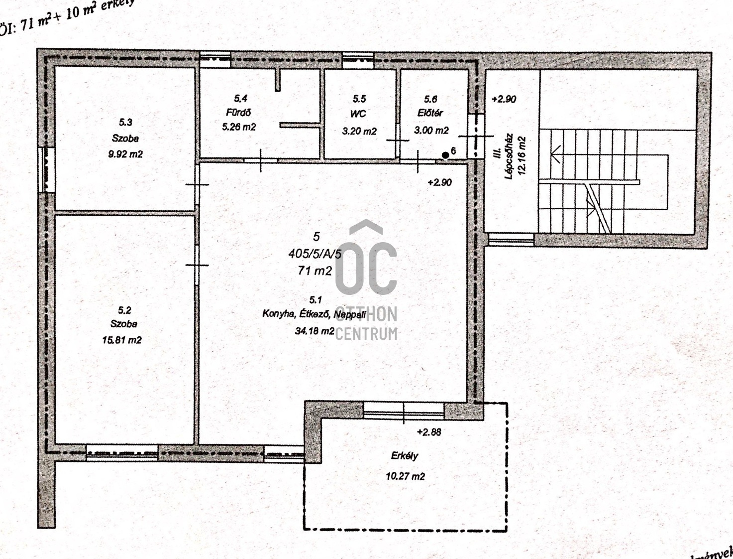
- 76m²
- 3 szoba
- 1. emelet













KIEMELT MEGBÍZÁS AZ OTTHON CENTRUM KÍNÁLATÁBAN!
HÉVÍZ KEDVELT UTCÁJÁBAN, ÚJSZERŰ LAKÁS ELADÓ!
Az ingatlan főbb jellemzői:
-lakófelület 71nm, terasz 10nm
-a társasház 2021ben épült
-fűtés elektromos fűtőszőnyeggel megoldott
-a lakás az első emeleten található
-a teraszról panoráma tárul elénk
-kiváló belső elosztás
-különleges födém kialakítás növeli a teret
-a lakáshoz egy parkoló tartozik
-a ház egy zsák utcában található, kellemes környezetben
Amennyiben felkeltette érdeklődését és további kérdés merül fel, hívjon vagy írjon bizalommal!
HÉVÍZ KEDVELT UTCÁJÁBAN, ÚJSZERŰ LAKÁS ELADÓ!
Az ingatlan főbb jellemzői:
-lakófelület 71nm, terasz 10nm
-a társasház 2021ben épült
-fűtés elektromos fűtőszőnyeggel megoldott
-a lakás az első emeleten található
-a teraszról panoráma tárul elénk
-kiváló belső elosztás
-különleges födém kialakítás növeli a teret
-a lakáshoz egy parkoló tartozik
-a ház egy zsák utcában található, kellemes környezetben
Amennyiben felkeltette érdeklődését és további kérdés merül fel, hívjon vagy írjon bizalommal!
Regisztrációs szám
H504242
Az ingatlan adatai
Értékesités
eladó
Jogi státusz
használt
Jelleg
lakás
Építési mód
tégla
Méret
76 m²
Bruttó méret
81 m²
Terasz / erkély mérete
10 m²
Fűtés
egyéb
Belmagasság
260 cm
Lakáson belüli szintszám
1
Tájolás
Dél-nyugat
Lépcsőház típusa
zárt lépcsőház
Állapot
Kiváló
Homlokzat állapota
Kiváló
Lépcsőház állapota
Kiváló
Építés éve
2021
Fürdőszobák száma
1
Fekvés
udvari
Víz
Van
Gáz
Utcán
Villany
Van
Csatorna
Van
Helyiségek
nappali-konyha
1 m²
szoba
1 m²
szoba
1 m²
fürdőszoba
1 m²
wc
1 m²