800 000 000 Ft
2 053 000 €
- 1 721m²
Nagy telek, nagy lehetőség – egyedi helyszín Budán!
Eladásra kínálok egy különleges adottságokkal rendelkező, 1721 m2-es, 5 lakásos társasház építésére alkalmas, összközműves telket Budapest II. kerületének egyik legkeresettebb részén, Törökvészen!
A telek csendes, zöldövezeti környezetben helyezkedik el, mégis könnyen megközelíthető, aszfaltozott utcában található, kiváló infrastruktúrával a közelben. A környék kimondottan családbarát, ugyanakkor azok számára is ideális, akik nyugodt, zöldövezeti lakókörnyezetre vágynak a város közelségében.
A telek jelenleg Lke-2/SZ-9 övezeti besorolás alá esik, ami lehetőséget biztosít 15%-os beépíthetőségre, 0,4-es színterületi mutató mellett, és legfeljebb 7,5 méter építménymagasság engedélyezett. Ez azt jelenti, hogy a telek mérete és szabályozása akár egy nagyméretű, 5 lakásos társasház megépítését is lehetővé teszi, miközben a zöldfelület aránya el kell hogy érje a 75%-ot.
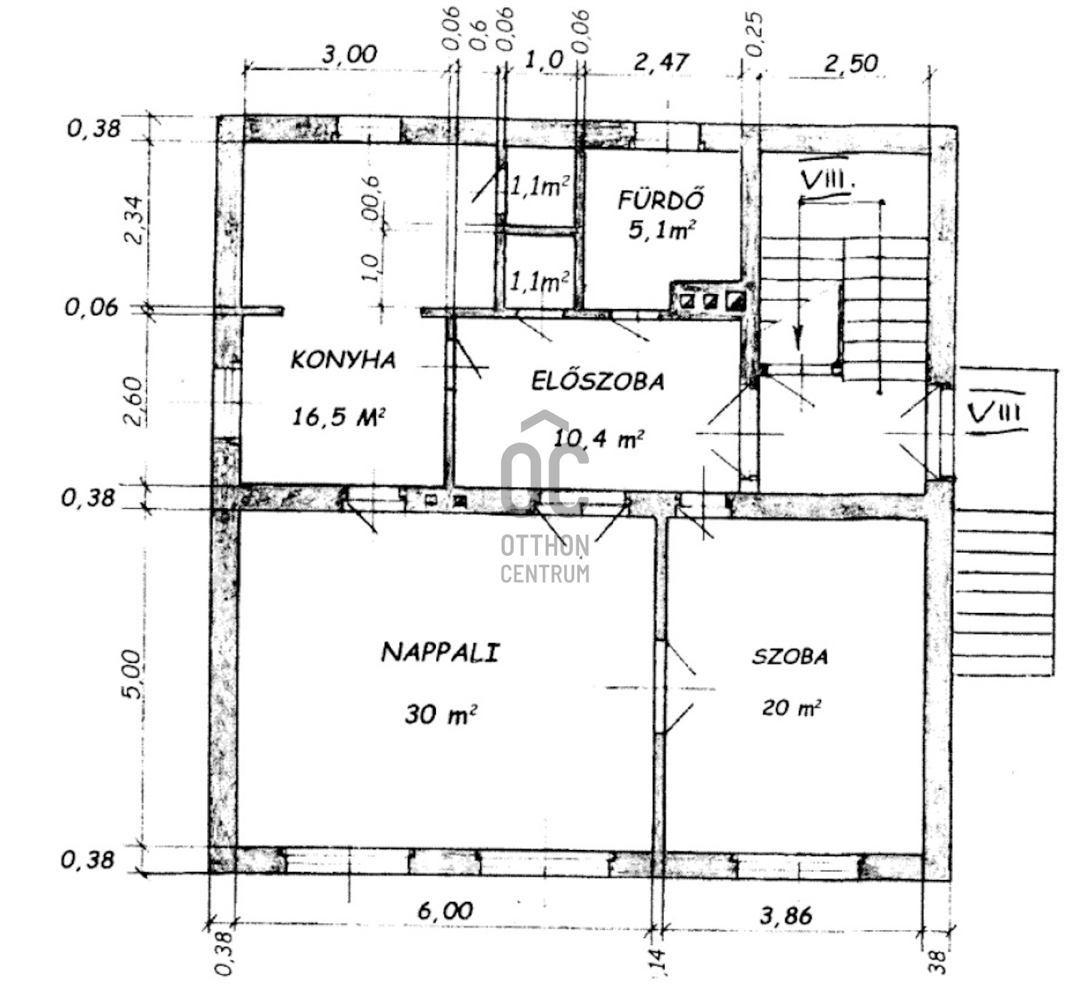
A telken jelenleg egy 1972-ben épült, 247 négyzetméteres lakóépület áll. Az épület állapota miatt elsősorban bontásra ajánlott, de természetesen felújítás is lehetséges azok számára, akik értéket látnak a meglévő struktúrában. Az ingatlan délkeleti tájolású, így a benapozottsága kiváló, ami különösen alkalmassá teszi egy modern, napfényes otthon kialakítására.
A környék egyedi hangulatát a nyugodt, természetközeli környezet, valamint a város közelsége adja. Ez a telek nemcsak otthonteremtésre, hanem befektetésnek is kiváló választás lehet, hiszen a II. kerület ezen része évről évre stabil értéknövekedést mutat.
Amennyiben egy kivételes méretű, jól szabályozott, zöldövezeti telket keres Budán, amely mind a nyugalmat, mind a központi elérhetőséget kínálja, ez az ingatlan remek lehetőség lehet az Ön számára is.
További információért és megtekintésért kérem, keressen bizalommal.
A telek csendes, zöldövezeti környezetben helyezkedik el, mégis könnyen megközelíthető, aszfaltozott utcában található, kiváló infrastruktúrával a közelben. A környék kimondottan családbarát, ugyanakkor azok számára is ideális, akik nyugodt, zöldövezeti lakókörnyezetre vágynak a város közelségében.
A telek jelenleg Lke-2/SZ-9 övezeti besorolás alá esik, ami lehetőséget biztosít 15%-os beépíthetőségre, 0,4-es színterületi mutató mellett, és legfeljebb 7,5 méter építménymagasság engedélyezett. Ez azt jelenti, hogy a telek mérete és szabályozása akár egy nagyméretű, 5 lakásos társasház megépítését is lehetővé teszi, miközben a zöldfelület aránya el kell hogy érje a 75%-ot.
A telken jelenleg egy 1972-ben épült, 247 négyzetméteres lakóépület áll. Az épület állapota miatt elsősorban bontásra ajánlott, de természetesen felújítás is lehetséges azok számára, akik értéket látnak a meglévő struktúrában. Az ingatlan délkeleti tájolású, így a benapozottsága kiváló, ami különösen alkalmassá teszi egy modern, napfényes otthon kialakítására.
A környék egyedi hangulatát a nyugodt, természetközeli környezet, valamint a város közelsége adja. Ez a telek nemcsak otthonteremtésre, hanem befektetésnek is kiváló választás lehet, hiszen a II. kerület ezen része évről évre stabil értéknövekedést mutat.
Amennyiben egy kivételes méretű, jól szabályozott, zöldövezeti telket keres Budán, amely mind a nyugalmat, mind a központi elérhetőséget kínálja, ez az ingatlan remek lehetőség lehet az Ön számára is.
További információért és megtekintésért kérem, keressen bizalommal.
Regisztrációs szám
H504178
Az ingatlan adatai
Értékesités
eladó
Jelleg
telek
Típus
Építési telek
Övezet
lakóövezet
Telek méret
1 721 m²
Tájolás
Dél-kelet
Panoráma
Egyéb
Környék
csendes, zöld, központi
Garázs
Benne van az árban
Víz
Van
Gáz
Van
Villany
Van
Csatorna
Van
Beépíthetőség
15%
Homlokzat magassága
750
Építhető ingatlan típusa
Családi ház, Ikerház, Társasház 4 lakásig