245 000 000 Ft
632 000 €
- 80m²
- 3 szoba
- 2. emelet
5.kerület Lipótvárosban, a Hild tér szomszédságában 3 szobás, ERKÉLYES LUXUSLAKÁS eladó!
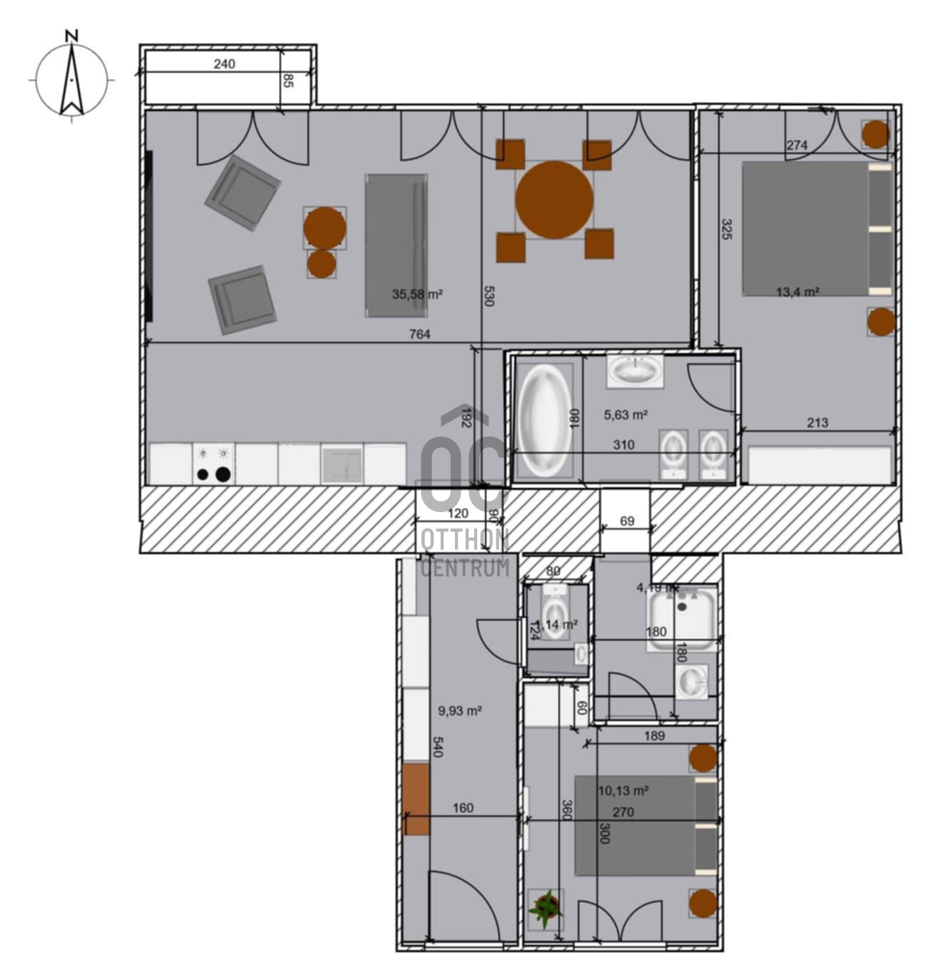
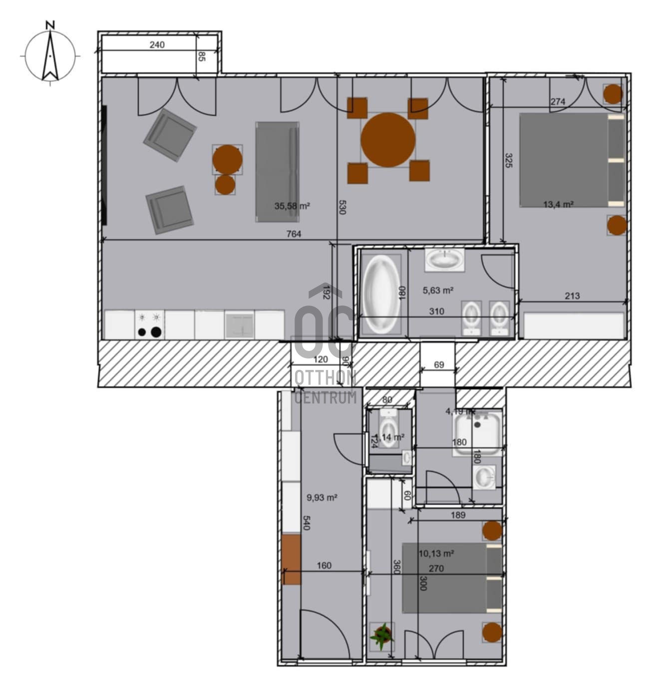
Megvételre kínálok az V. kerület Lipótvárosban, a Hild tér szomszédságában, pár perc sétára a Lánchídtól, 80 m2-es nappali + 2 hálószobás, duplakomfortos, 2. emeleti, erkélyes luxuslakás eladó. Az ingatlan prémium minőségű felújításon esett át, melynek során a legkiválóbb minőségű anyagokat használták fel, a lakás minden részletében az eleganciát tükrözi.
Az ingatlan amerikai konyhás nappalival rendelkezik, az erkély illetve a fő hálószoba a csendes Mérleg utcára néz, míg a második hálószoba a nyugodt belső udvarra nyílik. Mindkét hálószobához külön fürdőszoba tartozik, a fő hálószobához egy elegáns káddal, WC-vel és bidével felszerelt fürdő kapcsolódik, míg a második hálószobához egy modern zuhanyzós. A lakásban külön vendég WC is található. Az ingatlan prémium minőségű bútorokkal és gépekkel együtt eladó, így az új tulajdonos azonnal beköltözhet egy teljesen felszerelt, exkluzív otthonba. A teljes körű felújítás során új fa nyílászárók lettek beépítve, valamint minden víz- és villanyvezetékek cserélve lett. Designer csillárok, beépített szekrények, minőségi szaniterek és prémium burkolatok kerültek beépítésre. A 4 méteres belmagasság és a chevron mintás tölgyfa parketta különleges, elegáns hangulatot kölcsönöz az otthonnak. A konyha teljesen gépesített, AEG márkájú készülékekkel felszerelt: mosogatógép, hűtő fagyasztóval, sütő, főzőlap, páraelszívó és mosógép is rendelkezésre áll. Az ingatlan kényelmét három légkondicionáló és automata sötétítők biztosítják. A fűtés házközponti, a közös költség víz nélküli díja 33.104 Ft havonta.
A társasház Hild József híres magyar építész egyik remekműve. Az épület az 1800-as években épült, és azóta számos felújításon esett át, megőrizve eredeti szépségét és eleganciáját. A ház sarokház, két bejárata is van, két lépcsőházból is megközelíthető!
Ez a lakás nem csak otthonként, hanem befektetésként is tökéletes választás azok számára, akik a belvárosi luxust és kényelmet keresik. Az ingatlan minden részlete a legmagasabb színvonalat képviseli, így garantáltan megfelel a legigényesebb vásárlók elvárásainak is.
Az ingatlan amerikai konyhás nappalival rendelkezik, az erkély illetve a fő hálószoba a csendes Mérleg utcára néz, míg a második hálószoba a nyugodt belső udvarra nyílik. Mindkét hálószobához külön fürdőszoba tartozik, a fő hálószobához egy elegáns káddal, WC-vel és bidével felszerelt fürdő kapcsolódik, míg a második hálószobához egy modern zuhanyzós. A lakásban külön vendég WC is található. Az ingatlan prémium minőségű bútorokkal és gépekkel együtt eladó, így az új tulajdonos azonnal beköltözhet egy teljesen felszerelt, exkluzív otthonba. A teljes körű felújítás során új fa nyílászárók lettek beépítve, valamint minden víz- és villanyvezetékek cserélve lett. Designer csillárok, beépített szekrények, minőségi szaniterek és prémium burkolatok kerültek beépítésre. A 4 méteres belmagasság és a chevron mintás tölgyfa parketta különleges, elegáns hangulatot kölcsönöz az otthonnak. A konyha teljesen gépesített, AEG márkájú készülékekkel felszerelt: mosogatógép, hűtő fagyasztóval, sütő, főzőlap, páraelszívó és mosógép is rendelkezésre áll. Az ingatlan kényelmét három légkondicionáló és automata sötétítők biztosítják. A fűtés házközponti, a közös költség víz nélküli díja 33.104 Ft havonta.
A társasház Hild József híres magyar építész egyik remekműve. Az épület az 1800-as években épült, és azóta számos felújításon esett át, megőrizve eredeti szépségét és eleganciáját. A ház sarokház, két bejárata is van, két lépcsőházból is megközelíthető!
Ez a lakás nem csak otthonként, hanem befektetésként is tökéletes választás azok számára, akik a belvárosi luxust és kényelmet keresik. Az ingatlan minden részlete a legmagasabb színvonalat képviseli, így garantáltan megfelel a legigényesebb vásárlók elvárásainak is.
Regisztrációs szám
H504072
Az ingatlan adatai
Értékesités
eladó
Jogi státusz
használt
Jelleg
lakás
Építési mód
tégla
Méret
80 m²
Bruttó méret
80 m²
Terasz / erkély mérete
3 m²
Fűtés
mérés nélküli, központi fűtés
Belmagasság
400 cm
Lakáson belüli szintszám
1
Tájolás
Észak-nyugat
Lépcsőház típusa
függőfolyosó
Állapot
Kiváló
Homlokzat állapota
Jó
Lépcsőház állapota
Jó
Környék
csendes, jó közlekedés, központi
Építés éve
1890
Fürdőszobák száma
2
Fekvés
utcai
Közös költség
33104
Víz
Van
Villany
Van
Csatorna
Van
Lift
van
Helyiségek
előszoba
9.93 m²
hálószoba
10.13 m²
fürdőszoba-wc
4.19 m²
hálószoba
13.4 m²
fürdőszoba-wc
5.63 m²
nappali-konyha
35.58 m²
erkély
3 m²
Ruczek Krisztina
Hitelszakértő