Elérhető Otthon Start hitellel
Eladó családi ház, H504066
Újszász

19 900 000 Ft

53 000 €

  • 80m²
  • 3 szoba
Kiemelt megbízás

Újszász ,kertvárosi részén családi ház eladó!!!

Újszászon, vasútállomás közelében eladó családi ház
Újszász egyik csendes utcájában eladó egy tégla építésű családi ház :
- 3 szoba,
- központi fűtés,
- cserép fedésű tető,
- 1230nm telek,
- pince és egyéb tárolók.
- Az ingagtan belső állapota erősen felújítandó
Közelben található a vasútállomás, buszmegálló, iskola, boltok.

A ház egy kis felújítással, átalakítással, kedves, családi házzá varázsolható.

Irodánkban bankfüggetlen hitelközvetítéssel állunk ügyfeleink rendelkezésére.

Amennyiben felkeltettem érdeklődését hívjon!

Regisztrációs szám

H504066

Az ingatlan adatai

Értékesités
eladó
Jogi státusz
használt
Jelleg
ház
Építési mód
vegyesfalazatú
Méret
80 m²
Bruttó méret
85 m²
Telek méret
1 230 m²
Fűtés
Gáz cirkó
Belmagasság
260 cm
Tájolás
Nyugat
Állapot
Felújítandó
Homlokzat állapota
Átlagos
Építés éve
1974
Fürdőszobák száma
1
Víz
Van
Gáz
Van
Villany
Van
Csatorna
Van

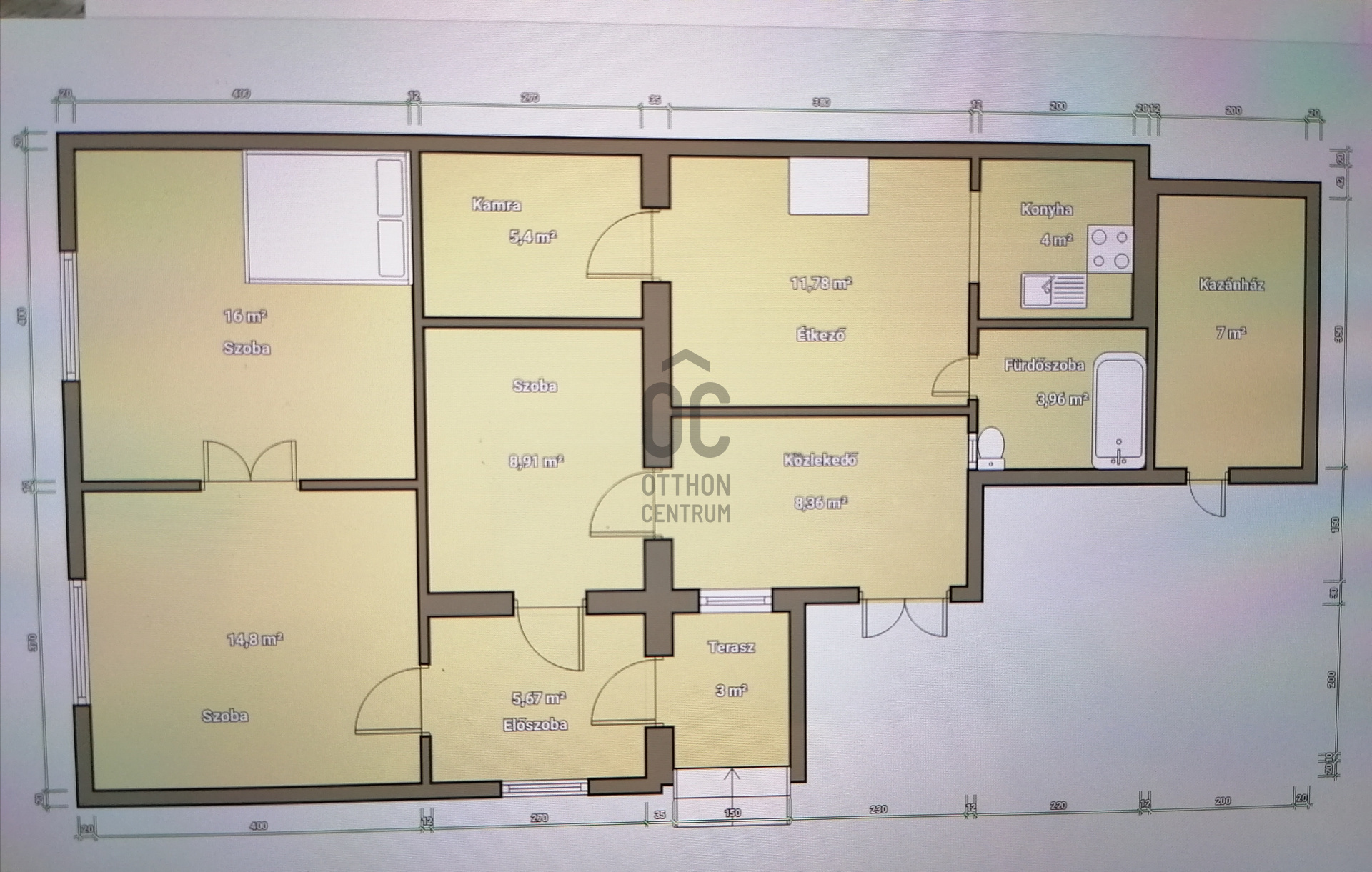
Helyiségek

szoba
16 m²
szoba
14.8 m²
előszoba
5.67 m²
szoba
8.91 m²
közlekedő
8.36 m²
ebédlő
11.78 m²
kamra
5.4 m²
fürdőszoba-wc
3.96 m²
konyha
4 m²
kazánház
7 m²
Szuda Zsolt
Szuda Zsolt

Hitelszakértő

Irodánk kínálatából - Abony

for sale farmhouse

Index image
data_sheet.details.realestate.section.main.otthonstart_flag.label
14

for sale plot

Index image
4

for sale family house

Index image
data_sheet.details.realestate.section.main.otthonstart_flag.label
16

for sale family house

Index image
data_sheet.details.realestate.section.main.otthonstart_flag.label
21

for sale family house

Index image
data_sheet.details.realestate.section.main.otthonstart_flag.label
14

for sale family house

Index image
data_sheet.details.realestate.section.main.otthonstart_flag.label
26