Elérhető Otthon Start hitellel
Eladó családi ház,
H502545
Alsózsolca
56 500 000 Ft
146 000 €
- 240m²
- 8 szoba
























Egy házban, két teljesen önálló lakás, testvéreknek, barátoknak, két generációnak
Alsózsolcán a Tanács úton eladó egy kivételes adottságokkal rendelkező családi ház, melyben két család együtt, de mégis teljesen külön élésére van lehetőség.
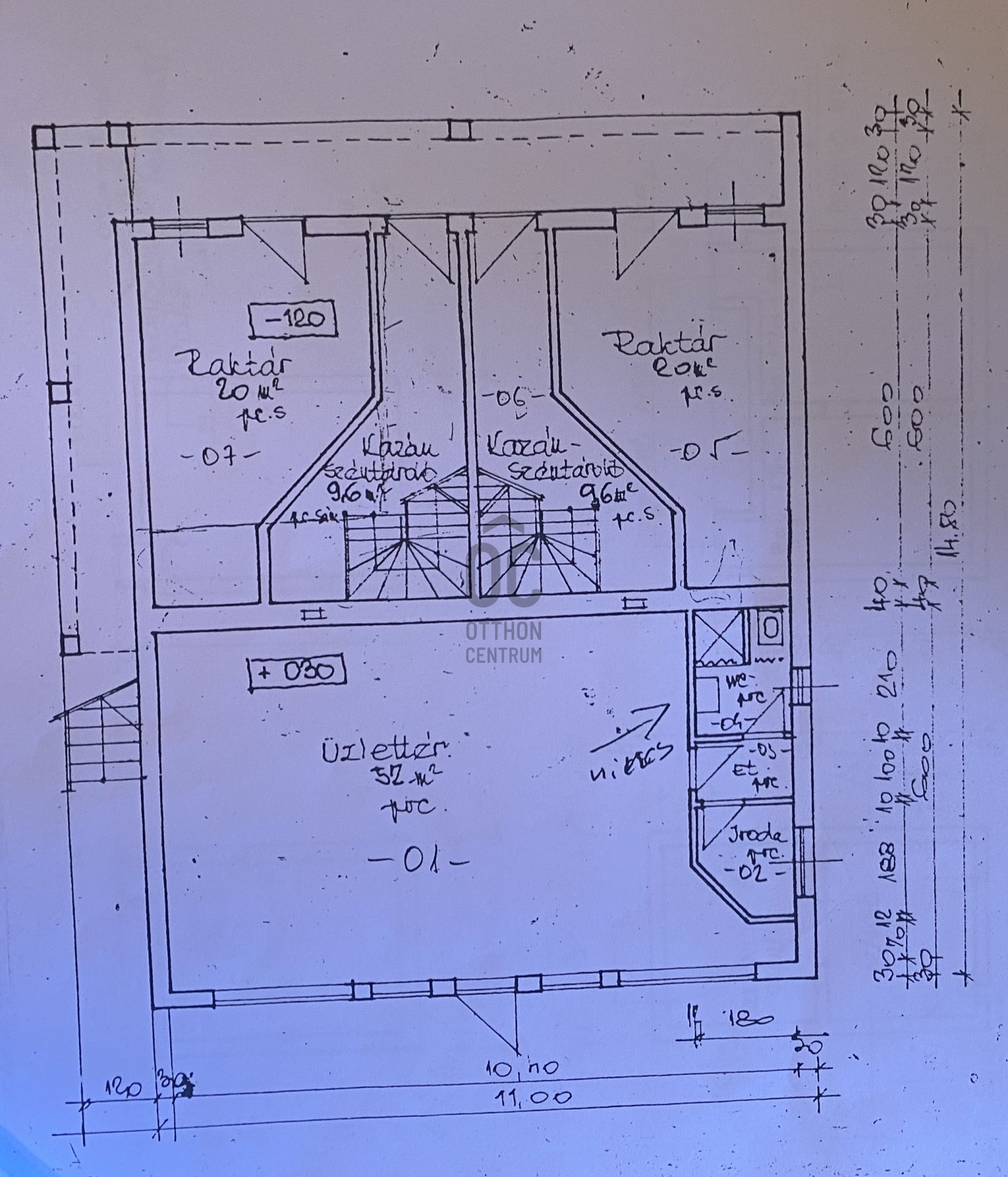
Ráadásként, a ház alsó szintjén egy vállalkozás kialakítására kiválóan alkalmas, önálló bejárattal rendelkező közel 50 m2-es helyiséget alakítottak ki, mely sokáig egy bisztrónak adott helyet.
További jellemzői:
- tégla falazat, kétszer 105 m2 lakás és egyéb helyiségek
- 727 m2 telek, két garázzsal, pincével
- lakásonként 4 szoba, konyha, kamra, fürdőszoba, 2 mellékhelyiség kézmosóval, erkéllyel, fedett előtérrel
- külön gázóra, villanyóra, vízóra
- műanyag (2013) és fa nyílászárók, biztonsági bejárati ajtók
- gázcirkó, vegyestüzelésű kazán
- eredeti villamos- és vízhálózat
- bitumenes zsindelyre került a lemezcserép
- eltolt szintek
Érdemes megnéznie, ha csendes, kertvárosias környezetben képzeli el új otthonát és vállalkozását is lakóhelyén szeretné működtetni.
Ráadásként, a ház alsó szintjén egy vállalkozás kialakítására kiválóan alkalmas, önálló bejárattal rendelkező közel 50 m2-es helyiséget alakítottak ki, mely sokáig egy bisztrónak adott helyet.
További jellemzői:
- tégla falazat, kétszer 105 m2 lakás és egyéb helyiségek
- 727 m2 telek, két garázzsal, pincével
- lakásonként 4 szoba, konyha, kamra, fürdőszoba, 2 mellékhelyiség kézmosóval, erkéllyel, fedett előtérrel
- külön gázóra, villanyóra, vízóra
- műanyag (2013) és fa nyílászárók, biztonsági bejárati ajtók
- gázcirkó, vegyestüzelésű kazán
- eredeti villamos- és vízhálózat
- bitumenes zsindelyre került a lemezcserép
- eltolt szintek
Érdemes megnéznie, ha csendes, kertvárosias környezetben képzeli el új otthonát és vállalkozását is lakóhelyén szeretné működtetni.
Regisztrációs szám
H502545
Az ingatlan adatai
Értékesités
eladó
Jogi státusz
használt
Jelleg
ház
Építési mód
tégla
Méret
240 m²
Bruttó méret
291 m²
Telek méret
727 m²
Fűtés
Gáz cirkó
Belmagasság
270 cm
Lakáson belüli szintszám
3
Tájolás
Kelet
Állapot
Átlagos
Homlokzat állapota
Jó
Pince
Önálló
Környék
jó közlekedés, központi
Építés éve
1984
Fürdőszobák száma
4
Garázs
Benne van az árban
Garázs férőhely
2
Víz
Van
Gáz
Van
Villany
Van
Csatorna
Van
Helyiségek
hall
14.4 m²
wc-kézmosó
1.5 m²
kamra
2 m²
konyha
6.9 m²
üzlet
52 m²
kazánház
9.6 m²
raktár
20 m²
előszoba
5.4 m²
fürdőszoba-wc
5.1 m²
szoba
16.8 m²
loggia
4.5 m²
előszoba
3 m²
szoba
30.9 m²
előszoba
2 m²
wc
3 m²
szoba
15.8 m²
hall
14.4 m²
fürdőszoba-wc
1.5 m²
kamra
2 m²
konyha
6.9 m²
előszoba
5.4 m²
fürdőszoba-wc
5.1 m²
szoba
16.8 m²
loggia
4.5 m²
előszoba
3 m²
szoba
30.9 m²
előszoba
2 m²
wc
3 m²
szoba
15.8 m²
kazánház
9.6 m²
raktár
20 m²

Varkolyné Viktória
Hitelszakértő