Elérhető Otthon Start hitellel
Eladó családi ház,
H499655
Marcali
44 990 000 Ft
119 000 €
- 160m²
- 6 szoba
Eladó Marcaliban, egy FELÚJÍTANDÓ,– 6 szobás családi ház!
Regisztrációs szám: H499655
Fiatalok és kisgyermekes családok figyelmébe ajánlva!
Somogy vármegye szívében, Marcali városában található, ez a 2 szintes, felújítandó ház, amely ideális választás lehet mindazok számára, akik szeretnék saját elképzeléseik szerint formálni otthonukat.
Az ingatlan alapterülete 160 nm, és egy tágas nappalival, valamint 5 szobával rendelkezik, amelyek lehetőséget biztosítanak a családi életre, baráti összejövetelekre, vagy akár munkatér kialakítására is. Némi korszerűsítés és modernizálás után, egy remek otthona lehet egy több gyermekes családnak, de akár még a nagyszülők is elférnek ebben a tágas fészekben!
A házhoz tartozik egy 1439 nm-es telek, amely nemcsak a pihenésre, hanem a kreatív ötletek megvalósítására is lehetőséget ad.
A kertkapcsolatos ingatlan előnye, hogy a szabadban eltöltött időt a saját udvarán élvezheti, legyen szó grillezésről, kertészkedésről vagy csak a természet közelségéről.
Az ingatlanhoz tartozik egy 11 nm-es fedett emeleti terasz is, ahol elfogyaszthatja a reggeli kávéját vagy megcsodálhatja a naplementét.
A házhoz épült egy garázs, amely egy autó számára biztosít kényelmes tárolási lehetőséget, de az udvaron több autó is parkolhat.
Az ásott kút, az udvaron található nővények vízellátását szolgálja.
A környék ellátottsága kiváló, a közeli boltok, éttermek és szolgáltatások mindössze pár perc sétára találhatóak, így a mindennapi élet kényelmesen és gyorsan intézhető.
A kert végénél lévő épületben, a rend őrei vigyáznak Marcali közbiztonságára!
Ez a Kertvárosias, családi házas része Marcalinak, igen közkedvelt az itt élők körében. A Balaton déli partja, mindössze 15 perc alatt elérhető, de a városközpont sincs messzebb 10 percnél.
Hévíz 1 óra, az autópálya pedig, mindössze 20 perc alatt érhető el.
A Multik rövid idő alatt elérhetőek, biztosítva a mindennapi élethez szükséges portékákat.
A városban, iskola, óvoda, bölcsőde, Mester cukrászda, hentes üzlet, pékség, zöldséges és több különböző étterem is a rendelkezésre áll.
A településen gyógyvizes fürdő működik, mely nagyon közkedvelt bármely életkorban lévő ember számára.
A közlekedés szempontjából is kedvező helyen van az ingatlan, hiszen a város tömegközlekedési lehetőségei könnyen elérhetőek,
így a közeli települések és városok is gyorsan megközelíthetőek.
A környék csendes, nyugodt, ideális a pihenésre és a feltöltődésre, miközben a város vibráló élete is könnyen elérhető.
A szomszédok közvetlenek, barátságosak és összetartóak!
Ez a tehermentes ingatlan remek lehetőséget kínál azok számára, akik szeretnének egyedi otthont kialakítani maguknak.
A nagy belmagasság és a tetőterasz lehetőséget ad arra, hogy kreatív megoldásokkal még tágasabbá tegyék a teret.
Az ingatlan, akár kisállattal is költözhető, így a házikedvencek is otthonra lelhetnek.
Néhány fontos infó:
- Az emeletet, egy fa elgázosító kazánnal lehet felfűteni, a meleg radiátoros hőleadókon keresztül érkezik, + a fsz-i kis szobát és az étkezőt is ez a készülék látja el meleggel,
míg az utcafronti szobákban gázkonvektorok és egy cserépkályha fűt a hideg hónapokban.
- A helyiségek többsége, műanyag ablakokkal vannak ellátva, melyeken redőny és szúnyogháló is megtalálható.
- Az alsó szint tégla, míg a ráépített emelet, könnyűszerkezetes
- A teljes épületben, rézkábelen keresztül érkezik az elektromos áram, az épületben 3 villanyóra teszi a dolgát, biztosítva a szintenkénti és a melléképület fogyasztás mérésének lehetőségét
Ne gondolkodjon sokáig, mert egy ilyen lehetőség ritkán adódik kétszer az ember életében.!
Amennyiben kérdései lennének az ingatlannal, a környékkel vagy a vásárlással kapcsolatban, bizalommal forduljon hozzám.
Segítek Önnek megtalálni álmai otthonát vagy befektetési lehetőségét, és minden szükséges információt átadok a gördülékeny ügyintézés érdekében.
A helyi adottságok ismerete mellett elkötelezettek vagyunk abban, hogy Ön a legjobb döntést hozhassa meg.
Hívjon, állok szíves rendelkezésére, akár most is!
Köszönöm, hogy elolvasta a hirdetésemet!
Teljes körű pénzügyi megoldások ügyintézése díjmentesen:
* Bankfüggetlen hitelcenterünk díjmentesen versenyezteti minden bank és hitelintézet ajánlatát.
* Önnek nincs más dolga, mint beszélgetni munkatársunkkal, majd a megversenyeztetett ajánlatokból kiválasztani a hosszútávon is a legmegfelelőbb konstrukciót.
* Szakértőnk több mint 20 éves szakmai tapasztalattal és egyedi igényekre szabott, fogyasztóbarát lakáshitelekkel, babaváró hitellel, teljes körű CSOK ügyintézéssel várja Önt.
* Előre egyeztetett időpontban.
Fiatalok és kisgyermekes családok figyelmébe ajánlva!
Somogy vármegye szívében, Marcali városában található, ez a 2 szintes, felújítandó ház, amely ideális választás lehet mindazok számára, akik szeretnék saját elképzeléseik szerint formálni otthonukat.
Az ingatlan alapterülete 160 nm, és egy tágas nappalival, valamint 5 szobával rendelkezik, amelyek lehetőséget biztosítanak a családi életre, baráti összejövetelekre, vagy akár munkatér kialakítására is. Némi korszerűsítés és modernizálás után, egy remek otthona lehet egy több gyermekes családnak, de akár még a nagyszülők is elférnek ebben a tágas fészekben!
A házhoz tartozik egy 1439 nm-es telek, amely nemcsak a pihenésre, hanem a kreatív ötletek megvalósítására is lehetőséget ad.
A kertkapcsolatos ingatlan előnye, hogy a szabadban eltöltött időt a saját udvarán élvezheti, legyen szó grillezésről, kertészkedésről vagy csak a természet közelségéről.
Az ingatlanhoz tartozik egy 11 nm-es fedett emeleti terasz is, ahol elfogyaszthatja a reggeli kávéját vagy megcsodálhatja a naplementét.
A házhoz épült egy garázs, amely egy autó számára biztosít kényelmes tárolási lehetőséget, de az udvaron több autó is parkolhat.
Az ásott kút, az udvaron található nővények vízellátását szolgálja.
A környék ellátottsága kiváló, a közeli boltok, éttermek és szolgáltatások mindössze pár perc sétára találhatóak, így a mindennapi élet kényelmesen és gyorsan intézhető.
A kert végénél lévő épületben, a rend őrei vigyáznak Marcali közbiztonságára!
Ez a Kertvárosias, családi házas része Marcalinak, igen közkedvelt az itt élők körében. A Balaton déli partja, mindössze 15 perc alatt elérhető, de a városközpont sincs messzebb 10 percnél.
Hévíz 1 óra, az autópálya pedig, mindössze 20 perc alatt érhető el.
A Multik rövid idő alatt elérhetőek, biztosítva a mindennapi élethez szükséges portékákat.
A városban, iskola, óvoda, bölcsőde, Mester cukrászda, hentes üzlet, pékség, zöldséges és több különböző étterem is a rendelkezésre áll.
A településen gyógyvizes fürdő működik, mely nagyon közkedvelt bármely életkorban lévő ember számára.
A közlekedés szempontjából is kedvező helyen van az ingatlan, hiszen a város tömegközlekedési lehetőségei könnyen elérhetőek,
így a közeli települések és városok is gyorsan megközelíthetőek.
A környék csendes, nyugodt, ideális a pihenésre és a feltöltődésre, miközben a város vibráló élete is könnyen elérhető.
A szomszédok közvetlenek, barátságosak és összetartóak!
Ez a tehermentes ingatlan remek lehetőséget kínál azok számára, akik szeretnének egyedi otthont kialakítani maguknak.
A nagy belmagasság és a tetőterasz lehetőséget ad arra, hogy kreatív megoldásokkal még tágasabbá tegyék a teret.
Az ingatlan, akár kisállattal is költözhető, így a házikedvencek is otthonra lelhetnek.
Néhány fontos infó:
- Az emeletet, egy fa elgázosító kazánnal lehet felfűteni, a meleg radiátoros hőleadókon keresztül érkezik, + a fsz-i kis szobát és az étkezőt is ez a készülék látja el meleggel,
míg az utcafronti szobákban gázkonvektorok és egy cserépkályha fűt a hideg hónapokban.
- A helyiségek többsége, műanyag ablakokkal vannak ellátva, melyeken redőny és szúnyogháló is megtalálható.
- Az alsó szint tégla, míg a ráépített emelet, könnyűszerkezetes
- A teljes épületben, rézkábelen keresztül érkezik az elektromos áram, az épületben 3 villanyóra teszi a dolgát, biztosítva a szintenkénti és a melléképület fogyasztás mérésének lehetőségét
Ne gondolkodjon sokáig, mert egy ilyen lehetőség ritkán adódik kétszer az ember életében.!
Amennyiben kérdései lennének az ingatlannal, a környékkel vagy a vásárlással kapcsolatban, bizalommal forduljon hozzám.
Segítek Önnek megtalálni álmai otthonát vagy befektetési lehetőségét, és minden szükséges információt átadok a gördülékeny ügyintézés érdekében.
A helyi adottságok ismerete mellett elkötelezettek vagyunk abban, hogy Ön a legjobb döntést hozhassa meg.
Hívjon, állok szíves rendelkezésére, akár most is!
Köszönöm, hogy elolvasta a hirdetésemet!
Teljes körű pénzügyi megoldások ügyintézése díjmentesen:
* Bankfüggetlen hitelcenterünk díjmentesen versenyezteti minden bank és hitelintézet ajánlatát.
* Önnek nincs más dolga, mint beszélgetni munkatársunkkal, majd a megversenyeztetett ajánlatokból kiválasztani a hosszútávon is a legmegfelelőbb konstrukciót.
* Szakértőnk több mint 20 éves szakmai tapasztalattal és egyedi igényekre szabott, fogyasztóbarát lakáshitelekkel, babaváró hitellel, teljes körű CSOK ügyintézéssel várja Önt.
* Előre egyeztetett időpontban.
Regisztrációs szám
H499655
Az ingatlan adatai
Értékesités
eladó
Jogi státusz
használt
Jelleg
ház
Építési mód
tégla
Méret
160 m²
Bruttó méret
160 m²
Telek méret
1 439 m²
Terasz / erkély mérete
11 m²
Fűtés
gázkonvektor
Belmagasság
260 cm
Lakáson belüli szintszám
2
Tájolás
Észak
Állapot
Felújítandó
Homlokzat állapota
Átlagos
Pince
Önálló
Környék
csendes, jó közlekedés, zöld
Építés éve
1960
Fürdőszobák száma
2
Garázs
Benne van az árban
Garázs férőhely
1
Víz
Van
Gáz
Van
Villany
Van
Csatorna
Van
Tároló
Önálló
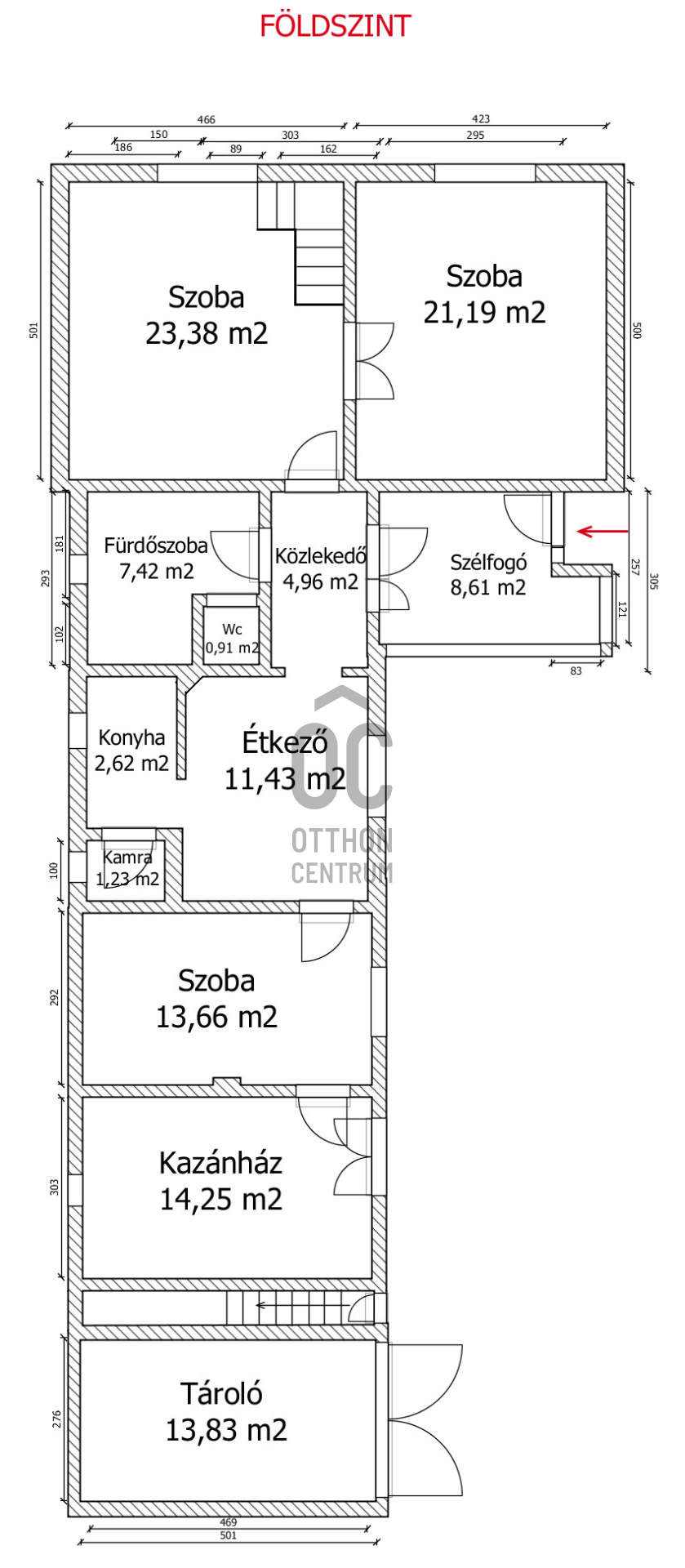
Helyiségek
előszoba
8.61 m²
fürdőszoba-wc
7.42 m²
közlekedő
4.96 m²
konyha-étkező
14.05 m²
szoba
13.66 m²
szoba
23.38 m²
szoba
21.19 m²
kazánház
14.25 m²
tároló
13.83 m²
terasz
9.63 m²
szoba
14.52 m²
szoba
22.54 m²
nappali
23.76 m²
lépcsőház
4.69 m²
gardrób
2.9 m²
fürdőszoba
3.88 m²
wc
2.47 m²
Mecseki Lászlóné - Éva
Hitelszakértő