Elérhető Otthon Start hitellel
Eladó családi ház,
H497026
Hévíz
120 000 000 Ft
309 000 €
- 250m²
- 6 szoba




























6 szobás otthon, ahol a kényelem és a lehetőségek találkoznak!
Csak az Otthon Centrum kínálatában, ne keresse máshol !
Kivételes lehetőség vendéglátó vállalkozások számára! Hévíz szívében, Zala vármegyében eladó egy 250 nm alapterületű ingatlan, amely ideális választás lehet étterem, kávézó vagy akár panzió üzemeltetésére.
- Az ingatlan elhelyezkedése páratlan, hiszen a város központi részén található, mindössze néhány lépésnyire a híres gyógyfürdőtől, amely évente több ezer látogatót vonz.
- A környék nyugodt, mégis pezsgő atmoszférája tökéletes környezetet biztosít a vendégek számára.
- A házban összesen 6 tágas szoba található, melyek közül több is könnyedén átalakítható a vendégek kényelmét szolgáló helyiségekké. A három fürdőszoba gondoskodik arról, hogy a vendégek kényelmesen és gyorsan hozzáférjenek a szükséges szolgáltatásokhoz.
- A 20 nm-es terasz és 5 nm-es erkély pedig lehetőséget ad arra, hogy a vendégek a szabadban élvezhessék a Hévíz csodálatos panorámáját, ami különösen vonzó lehet a nyári hónapokban. Az ingatlan állapota átlagos, de a benne lévő gáz cirkófűtés és klíma biztosítja a kellemes hőmérsékletet az év minden szakában. A kandalló pedig nemcsak a fűtést szolgálja, hanem egyedi hangulatot is teremt a belső térben. A garázs egy autó számára kínál helyet, de a környék kitűnő közlekedési lehetőségeket biztosít, hiszen a közelben található közlekedési csomópont könnyen elérhető, így a vendégek egyszerűen megközelíthetik az ingatlant. Hévíz nemcsak a gyógyvízéről híres, hanem a környék gazdag kulturális és szabadidős programkínálatáról is.
- A belváros közelsége lehetővé teszi, hogy a vendégek könnyedén felfedezzék a helyi éttermeket, üzleteket és látnivalókat. A környék biztonságos és csendes, így a vendégek nyugodt környezetben pihenhetnek, miközben felfedezik a város szépségeit.
- Ez az ingatlan egyedülálló lehetőséget kínál a vendéglátóipari vállalkozások számára, hogy saját álmaik helyét valósítsák meg Hévíz vibráló központjában. Amennyiben bármilyen kérdése merülne fel az ingatlannal kapcsolatban, kérem, bátran keressen meg!
Bizalommal állok rendelkezésére, hogy segítsek Önnek a legjobb döntés meghozatalában.
Kivételes lehetőség vendéglátó vállalkozások számára! Hévíz szívében, Zala vármegyében eladó egy 250 nm alapterületű ingatlan, amely ideális választás lehet étterem, kávézó vagy akár panzió üzemeltetésére.
- Az ingatlan elhelyezkedése páratlan, hiszen a város központi részén található, mindössze néhány lépésnyire a híres gyógyfürdőtől, amely évente több ezer látogatót vonz.
- A környék nyugodt, mégis pezsgő atmoszférája tökéletes környezetet biztosít a vendégek számára.
- A házban összesen 6 tágas szoba található, melyek közül több is könnyedén átalakítható a vendégek kényelmét szolgáló helyiségekké. A három fürdőszoba gondoskodik arról, hogy a vendégek kényelmesen és gyorsan hozzáférjenek a szükséges szolgáltatásokhoz.
- A 20 nm-es terasz és 5 nm-es erkély pedig lehetőséget ad arra, hogy a vendégek a szabadban élvezhessék a Hévíz csodálatos panorámáját, ami különösen vonzó lehet a nyári hónapokban. Az ingatlan állapota átlagos, de a benne lévő gáz cirkófűtés és klíma biztosítja a kellemes hőmérsékletet az év minden szakában. A kandalló pedig nemcsak a fűtést szolgálja, hanem egyedi hangulatot is teremt a belső térben. A garázs egy autó számára kínál helyet, de a környék kitűnő közlekedési lehetőségeket biztosít, hiszen a közelben található közlekedési csomópont könnyen elérhető, így a vendégek egyszerűen megközelíthetik az ingatlant. Hévíz nemcsak a gyógyvízéről híres, hanem a környék gazdag kulturális és szabadidős programkínálatáról is.
- A belváros közelsége lehetővé teszi, hogy a vendégek könnyedén felfedezzék a helyi éttermeket, üzleteket és látnivalókat. A környék biztonságos és csendes, így a vendégek nyugodt környezetben pihenhetnek, miközben felfedezik a város szépségeit.
- Ez az ingatlan egyedülálló lehetőséget kínál a vendéglátóipari vállalkozások számára, hogy saját álmaik helyét valósítsák meg Hévíz vibráló központjában. Amennyiben bármilyen kérdése merülne fel az ingatlannal kapcsolatban, kérem, bátran keressen meg!
Bizalommal állok rendelkezésére, hogy segítsek Önnek a legjobb döntés meghozatalában.
Regisztrációs szám
H497026
Az ingatlan adatai
Értékesités
eladó
Jogi státusz
használt
Jelleg
ház
Építési mód
tégla
Méret
250 m²
Bruttó méret
271 m²
Telek méret
462 m²
Terasz / erkély mérete
25 m²
Fűtés
Gáz cirkó
Belmagasság
300 cm
Lakáson belüli szintszám
3
Tájolás
Dél-kelet
Panoráma
városi panoráma
Állapot
Átlagos
Homlokzat állapota
Átlagos
Környék
központi
Építés éve
1975
Fürdőszobák száma
3
Garázs
Benne van az árban
Garázs férőhely
1
Víz
Van
Gáz
Van
Villany
Van
Csatorna
Van
Többgenerációs
igen
Tároló
Önálló
Vízpart távolsága
500 méterre
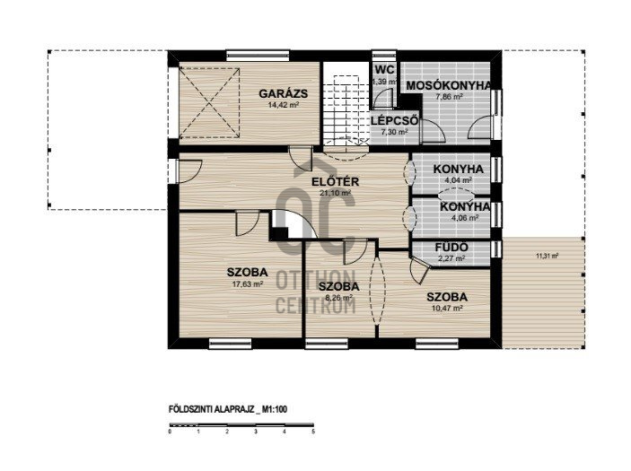
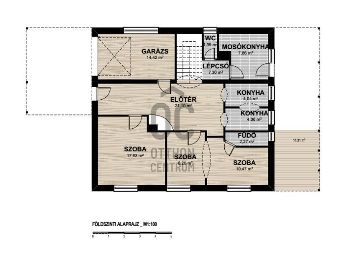
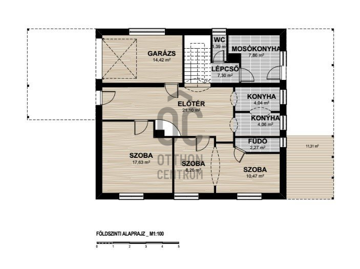
Helyiségek
garázs
22 m²
kazánház
6 m²
nappali-étkező
18 m²
előszoba
4 m²
hálószoba
18 m²
konyha
12 m²
lépcsőház
10 m²
nappali
45 m²
fürdőszoba-wc
10 m²
gardrób
4 m²
hálószoba
12 m²
konyha
5 m²
gardrób
8 m²
hálószoba
7 m²
hálószoba
12 m²