249 000 000 Ft
636 000 €
- 298m²
- 6 szoba



































Fedezze fel álmai otthonát Pilisborosjenő szívében – luxusszínvonalon felújított parasztházban
Fedezze fel ezt az exkluzív, prémium kivitelezésű ingatlant, amely ideális választás, ha egy tágas, világos otthont keresnek a csend és a nyugalom szívében.
Ideális választás azok számára, akik szeretnék élvezni a természet közelségét, miközben a főváros nyújtotta lehetőségeket is könnyen elérhetik.
Pilisborosjenő gyönyörű és felkapott környéken, Üröm és Budapest szomszédságában található.
A város zajától távol, de a főváros mégis könnyen elérhető, legyen szó akár a napi munkába járásról vagy ha Budapest számos kulturális és szórakoztató központjaiba látogatna el.
A maga 298 m²-es alapterületével, 6 szobájával, 4 fürdőszobájával garantáltan elegendő hely áll rendelkezésére a kényelmes élethez.
Pilisborosjenő nemcsak a természet közelségét, hanem a városi élet előnyeit is kínálja.
A dr. Lázár Antal Ybl-, Kossuth-, és Európa díjas építész (A & D Studió) tervei alapján készített átépítést szemet gyönyörködtető egyedi építészeti megoldásaival méltán nevezhetjük egyedülállónak!
A különleges stílusú, 2002 -re teljes felújításon és átépítésen átesett házban - amint belép - érezheti, hogy megtalálta otthonát!
A tervezés során különös gondot fordított a tulajdonos az építésszel karöltve A MÚLT ÉS JELEN TÖKÉLETES KOMBINÁCIÓJÁNAK kialakítására.
Az alsó szint tisztán ÜRÖMI KŐBŐL épült, a felújítás során 28 cm monolit vasbeton födém került rá.
Erre épült egy nagy belmagasságú tetőtéri beépítés, TÉGLA építésű falakkal, nagy szobákkal, kényelmes, tágas terekkel.
A villany-, víz-, gáz-, valamint csatornavezetéket teljes egészében kicserélték a felújítás alkalmával.
A tetőcserepeket ALFÖLDI KASTÉLY BONTÁSÁBÓL rendelték meg, hogy korabeli és a stílushoz illeszkedő legyen.
INGATLAN:
- 841 m² összközműves telek
- 298 m² ház
- Nappali + 5 hálószoba
- 4 nagyméretű fürdőszoba
- tágas mosókonyha a földszinten, mely wellness részleg kialakítására alkalmas
- 33,4m² KÉT BEÁLLÁSOS GARÁZS (fűtött, és vízzel ellátott)
- 100 m² tágas BOROSPINCE tökéletes szellőzéssel
- 8 m mély ásott kút
MŰSZAKI:
- gázcirkó kazán radiátoros fűtéssel
- az emeleti nappaliban padlóba süllyesztett fűtés
- a földszinten két csodálatos épített cserépkályhával is kiegészítve az épület otthonos hangulatához hozzájárul
- Prémium minőségű TRYBA fémszerkezetű ablakok műanyag borítással, két rétegű üvegezéssel, melyeket a gyártó cég évente karbantart.
(A francia TRYBA cégtől rendelik kastélyok számára is a prémium minőségű ablakokat)
REZSI:
A ház kialakításának köszönhetően akár 3 külön lakrész kialakítható. Ezáltal - mint jelenleg is - 3 lakásnak megfelelő rezsivédett árú gázfogyasztás igényelhető.
Amennyiben felkeltette az érdeklődését ez a kivételes ingatlan, ne habozzon kapcsolatba lépni velem!
Ideális választás azok számára, akik szeretnék élvezni a természet közelségét, miközben a főváros nyújtotta lehetőségeket is könnyen elérhetik.
Pilisborosjenő gyönyörű és felkapott környéken, Üröm és Budapest szomszédságában található.
A város zajától távol, de a főváros mégis könnyen elérhető, legyen szó akár a napi munkába járásról vagy ha Budapest számos kulturális és szórakoztató központjaiba látogatna el.
A maga 298 m²-es alapterületével, 6 szobájával, 4 fürdőszobájával garantáltan elegendő hely áll rendelkezésére a kényelmes élethez.
Pilisborosjenő nemcsak a természet közelségét, hanem a városi élet előnyeit is kínálja.
A dr. Lázár Antal Ybl-, Kossuth-, és Európa díjas építész (A & D Studió) tervei alapján készített átépítést szemet gyönyörködtető egyedi építészeti megoldásaival méltán nevezhetjük egyedülállónak!
A különleges stílusú, 2002 -re teljes felújításon és átépítésen átesett házban - amint belép - érezheti, hogy megtalálta otthonát!
A tervezés során különös gondot fordított a tulajdonos az építésszel karöltve A MÚLT ÉS JELEN TÖKÉLETES KOMBINÁCIÓJÁNAK kialakítására.
Az alsó szint tisztán ÜRÖMI KŐBŐL épült, a felújítás során 28 cm monolit vasbeton födém került rá.
Erre épült egy nagy belmagasságú tetőtéri beépítés, TÉGLA építésű falakkal, nagy szobákkal, kényelmes, tágas terekkel.
A villany-, víz-, gáz-, valamint csatornavezetéket teljes egészében kicserélték a felújítás alkalmával.
A tetőcserepeket ALFÖLDI KASTÉLY BONTÁSÁBÓL rendelték meg, hogy korabeli és a stílushoz illeszkedő legyen.
INGATLAN:
- 841 m² összközműves telek
- 298 m² ház
- Nappali + 5 hálószoba
- 4 nagyméretű fürdőszoba
- tágas mosókonyha a földszinten, mely wellness részleg kialakítására alkalmas
- 33,4m² KÉT BEÁLLÁSOS GARÁZS (fűtött, és vízzel ellátott)
- 100 m² tágas BOROSPINCE tökéletes szellőzéssel
- 8 m mély ásott kút
MŰSZAKI:
- gázcirkó kazán radiátoros fűtéssel
- az emeleti nappaliban padlóba süllyesztett fűtés
- a földszinten két csodálatos épített cserépkályhával is kiegészítve az épület otthonos hangulatához hozzájárul
- Prémium minőségű TRYBA fémszerkezetű ablakok műanyag borítással, két rétegű üvegezéssel, melyeket a gyártó cég évente karbantart.
(A francia TRYBA cégtől rendelik kastélyok számára is a prémium minőségű ablakokat)
REZSI:
A ház kialakításának köszönhetően akár 3 külön lakrész kialakítható. Ezáltal - mint jelenleg is - 3 lakásnak megfelelő rezsivédett árú gázfogyasztás igényelhető.
Amennyiben felkeltette az érdeklődését ez a kivételes ingatlan, ne habozzon kapcsolatba lépni velem!
Regisztrációs szám
H492877
Az ingatlan adatai
Értékesités
eladó
Jogi státusz
használt
Jelleg
ház
Építési mód
tégla
Méret
298 m²
Bruttó méret
298 m²
Telek méret
841 m²
Fűtés
Gáz cirkó
Belmagasság
275 cm
Lakáson belüli szintszám
2
Tájolás
Dél-kelet
Panoráma
városi panoráma
Állapot
Jó
Homlokzat állapota
Átlagos
Pince
Önálló
Környék
csendes, jó közlekedés, központi
Építés éve
1798
Fürdőszobák száma
4
Garázs
Benne van az árban
Garázs férőhely
2
Víz
Van
Gáz
Van
Villany
Van
Csatorna
Van
Tároló
Önálló
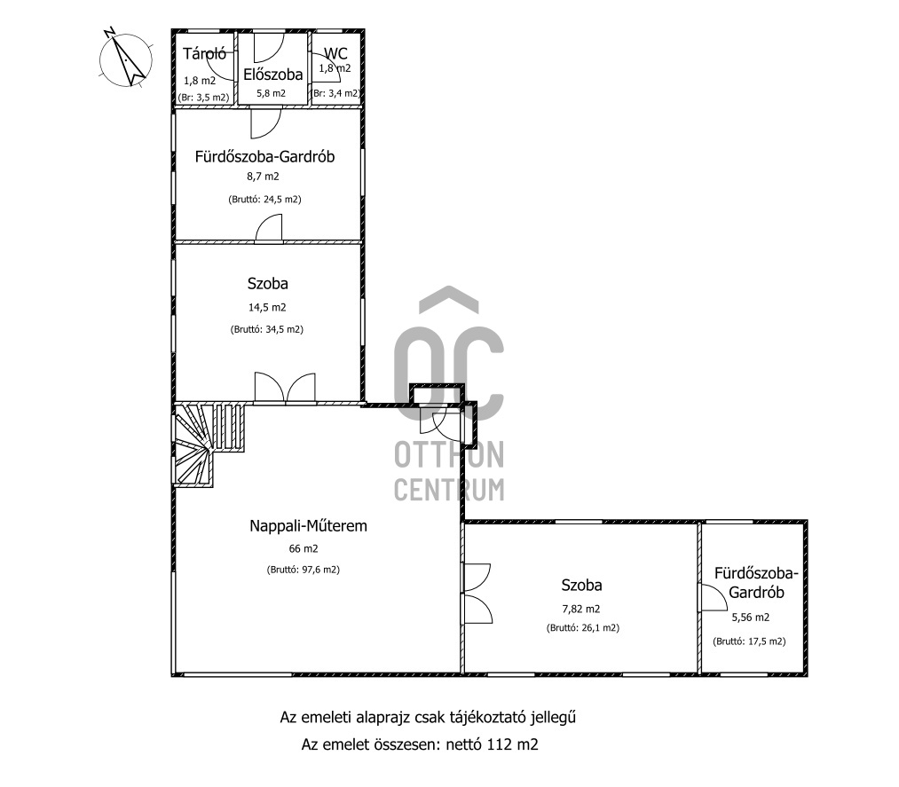
Helyiségek
konyha-étkező
35 m²
hall
38 m²
szoba
25 m²
szoba
20.8 m²
szoba
14 m²
közlekedő
4.8 m²
félszoba
10.8 m²
fürdőszoba-wc
3.7 m²
fürdőszoba-wc
17.7 m²
garázs
33.4 m²
nappali
66 m²
szoba
34.5 m²
fürdőszoba-wc
24.5 m²
szoba
26 m²
fürdőszoba-wc
17.5 m²
borospince
100 m²

Korcsog Melinda
Hitelszakértő