159 000 000 Ft
413 000 €
- 55m²
- 3 szoba
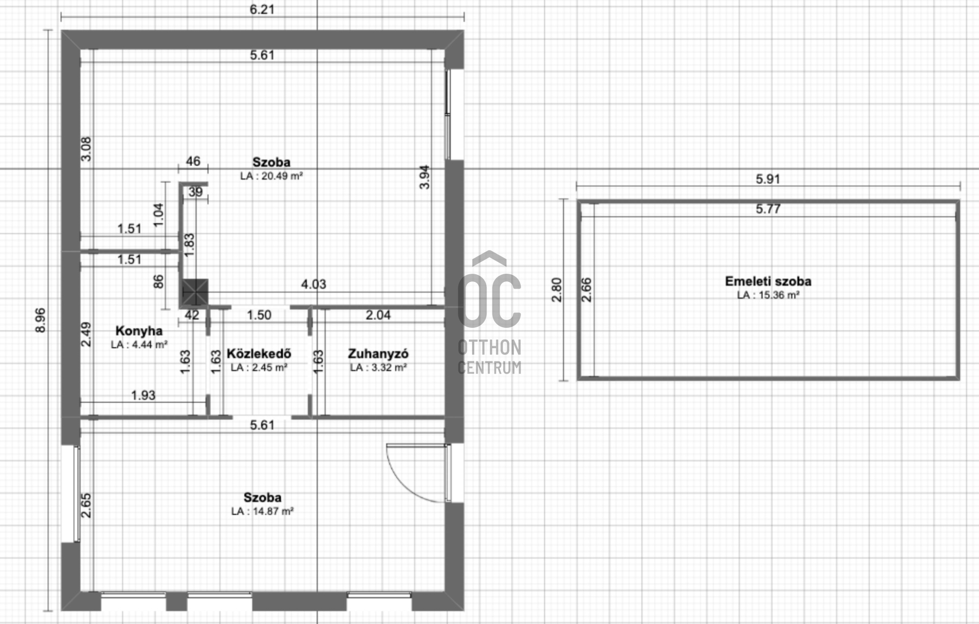
II/A. kerület Széphalom városrészében eladó 894nm -es telek kis 55nm alapterületű ház. A telken jelenleg bontás alatt van egy nagyobb épület de a képen látható 8,9x6,2m alapterületű épület marad, nem kerül elbontásra.
KÖRNYÉK és közlekedés:
- II. kerület, Széphalom városrész, Kőrózsa utca.
- Budapest egyik legzöldebb területe körbevéve természetvédelmi területekkel.
- Jó infrastruktúrával rendelkező elegáns, kertvárosias környezet.
- Több buszjárat, éjszakai busz és a belváros irányába az 56, 56/A, 59 és 61-es villamosok segítik a közlekedést.
- Közelben a Széphalom bevásárlóközpont, ahol beszerezhető minden a hétköznapokhoz.
- Több óvoda, általános iskola és művészeti iskola is várja az ott lakó gyermekeket.
Amit a kis HÁZRÓL érdemes tudni:
- 2000 körül épült, 2 szintes.
- A kertben található külön egy 1 autó számára garázs + műhely
- A kert kialakítását és parkosítását már az új tulajdonos végezheti el saját elképzelése szerint.
FINANSZÍROZÁSBAN ONLINE ÜGYINTÉZÉSSEL IS SEGÍTÜNK:
- Bank-független hitelcenterünk díjmentesen versenyezteti minden bank és hitelintézet ajánlatát.
- Nincs más dolga, mint beszélgetni munkatársunkkal, majd a megversenyeztetett ajánlatokból kiválasztani a hosszútávon is a legmegfelelőbb konstrukciót.
- Szakértőink 20 éves szakmai tapasztalattal és egyedi igényekre szabott, fogyasztóbarát lakáshitelekkel, babaváró hitellel, teljes körű CSOK PLUSZ ügyintézéssel várják.
- Előre egyeztetve akár a normál munkaidő után is.
KÖRNYÉK és közlekedés:
- II. kerület, Széphalom városrész, Kőrózsa utca.
- Budapest egyik legzöldebb területe körbevéve természetvédelmi területekkel.
- Jó infrastruktúrával rendelkező elegáns, kertvárosias környezet.
- Több buszjárat, éjszakai busz és a belváros irányába az 56, 56/A, 59 és 61-es villamosok segítik a közlekedést.
- Közelben a Széphalom bevásárlóközpont, ahol beszerezhető minden a hétköznapokhoz.
- Több óvoda, általános iskola és művészeti iskola is várja az ott lakó gyermekeket.
Amit a kis HÁZRÓL érdemes tudni:
- 2000 körül épült, 2 szintes.
- A kertben található külön egy 1 autó számára garázs + műhely
- A kert kialakítását és parkosítását már az új tulajdonos végezheti el saját elképzelése szerint.
FINANSZÍROZÁSBAN ONLINE ÜGYINTÉZÉSSEL IS SEGÍTÜNK:
- Bank-független hitelcenterünk díjmentesen versenyezteti minden bank és hitelintézet ajánlatát.
- Nincs más dolga, mint beszélgetni munkatársunkkal, majd a megversenyeztetett ajánlatokból kiválasztani a hosszútávon is a legmegfelelőbb konstrukciót.
- Szakértőink 20 éves szakmai tapasztalattal és egyedi igényekre szabott, fogyasztóbarát lakáshitelekkel, babaváró hitellel, teljes körű CSOK PLUSZ ügyintézéssel várják.
- Előre egyeztetve akár a normál munkaidő után is.
Regisztrációs szám
H491126
Az ingatlan adatai
Értékesités
eladó
Jogi státusz
használt
Jelleg
ház
Építési mód
tégla
Méret
55 m²
Bruttó méret
60 m²
Telek méret
894 m²
Fűtés
Gáz cirkó
Belmagasság
258 cm
Lakáson belüli szintszám
2
Tájolás
Dél
Állapot
Átlagos
Homlokzat állapota
Átlagos
Építés éve
2000
Fürdőszobák száma
1
Garázs
Benne van az árban
Víz
Van
Gáz
Van
Villany
Van
Csatorna
Van
Helyiségek
nappali-étkező
20.49 m²
szoba
14.87 m²
konyha
4.44 m²
zuhanyzó
3.32 m²
közlekedő
2.45 m²
szoba
15.36 m²
Gerber Dorottya
Hitelszakértő