Elérhető Otthon Start hitellel
Eladó családi ház,
H470219
Orosháza
8 500 000 Ft
22 000 €
- 99m²
- 3 szoba














Orosházi vegyes falazatú családi ház eladó
Orosháza csendes utcájában található vegyes falazatú családi ház 1062 nm-es telken fekszik. Az 1/1-es banki tulajdonban lévő ingatlan közművesített (víz, gáz, villany, csatorna). Az épület huzamosabb ideje nem lakott, belső falain vizesedés nyomai láthatóak.
További információért keressen bizalommal!
Amennyiben nem tudom a telefont felvenni, kérem megtisztelő türelmét, vissza fogom hívni.
Orosháza csendes utcájában található vegyes falazatú családi ház 1062 nm-es telken fekszik. Az 1/1-es banki tulajdonban lévő ingatlan közművesített (víz, gáz, villany, csatorna). Az épület huzamosabb ideje nem lakott, belső falain vizesedés nyomai láthatóak.
További információért keressen bizalommal!
Amennyiben nem tudom a telefont felvenni, kérem megtisztelő türelmét, vissza fogom hívni.
Regisztrációs szám
H470219
Az ingatlan adatai
Értékesités
eladó
Jogi státusz
használt
Jelleg
ház
Építési mód
vegyesfalazatú
Méret
99 m²
Bruttó méret
113 m²
Telek méret
1 062 m²
Fűtés
gázkonvektor
Belmagasság
250 cm
Tájolás
Dél
Állapot
Felújítandó
Homlokzat állapota
Átlagos
Környék
csendes, zöld
Építés éve
1960
Fürdőszobák száma
1
Víz
Van
Gáz
Van
Villany
Van
Csatorna
Van
Tároló
Önálló
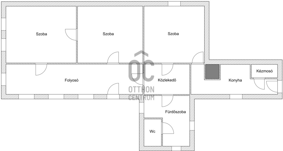
Helyiségek
hálószoba
21.1 m²
hálószoba
16.1 m²
hálószoba
15.6 m²
konyha
10.1 m²
közlekedő
13.2 m²
közlekedő
6.2 m²
fürdőszoba
7.2 m²
wc
1.9 m²
tároló
3.2 m²
mosdó
2.7 m²
kazánház
13.7 m²