Elérhető Otthon Start hitellel
Eladó lakás,
GDH356110
Kistarcsa
76 000 000 Ft
198 000 €
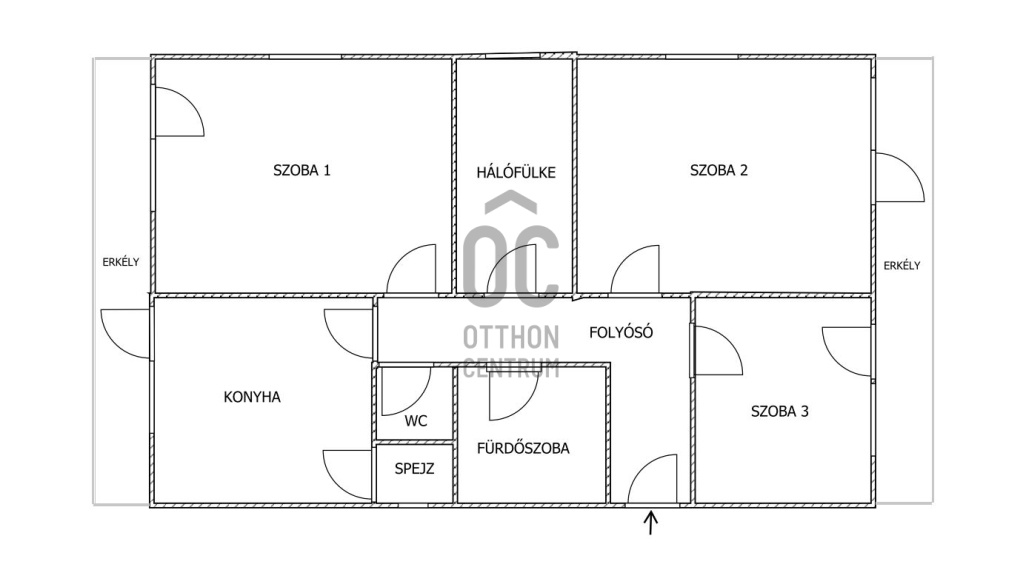
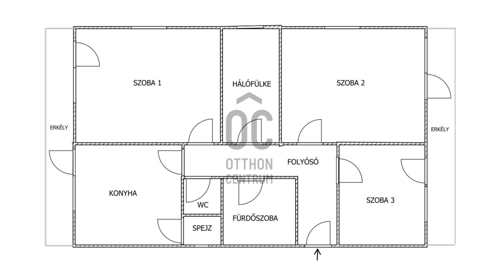
- 76m²
- 4 szoba
- 1. emelet
Kistarcsán, ELADÓ egy 76nm-es emeleti tégla lakás hozzá tartozó 300nm-es kerttel, garázzsal, 26nm-es tárolóval + egy 35nm-es szuterénnel/üzlethelyiséggel!
CSOK+-ra alkalmas és HITELEZHETŐ
Az ingatlan,központi forgalmas helyen található. Kiadásra alkalmas mind a lakás mind a szuterén/üzlethelyiség része, mely korábban kisállat kereskedésként és bababoltként is üzemelt.
-Telek mérete: 350nm
-4 szoba
-konyha
-spejz
-folyosó
- 2 erkély
-fürdő
-külön WC
--------------------------------------------
Fűtés: gázkazán és kombi cirkó
Áram: IPARI áram !! (3x16A és 3x25A) az üzlethelyiségben és a gazdasági épületben is!
Alacsony rezsi: kb. 30.000-Ft /hó
Az ingatlan per-és tehermentes. A vételár részét képezi a konyha, a fürdőszoba, a hálófülke beépített valamint a nappali teljes bútorzata. Ügyvédi megosztás van.
Közlekedés kiváló: HÉV, 92-es busz, távolsági buszjáratok
Irányár: 76.000.000- Ft
Várom hívását!
CSOK+-ra alkalmas és HITELEZHETŐ
Az ingatlan,központi forgalmas helyen található. Kiadásra alkalmas mind a lakás mind a szuterén/üzlethelyiség része, mely korábban kisállat kereskedésként és bababoltként is üzemelt.
-Telek mérete: 350nm
-4 szoba
-konyha
-spejz
-folyosó
- 2 erkély
-fürdő
-külön WC
--------------------------------------------
Fűtés: gázkazán és kombi cirkó
Áram: IPARI áram !! (3x16A és 3x25A) az üzlethelyiségben és a gazdasági épületben is!
Alacsony rezsi: kb. 30.000-Ft /hó
Az ingatlan per-és tehermentes. A vételár részét képezi a konyha, a fürdőszoba, a hálófülke beépített valamint a nappali teljes bútorzata. Ügyvédi megosztás van.
Közlekedés kiváló: HÉV, 92-es busz, távolsági buszjáratok
Irányár: 76.000.000- Ft
Várom hívását!
Regisztrációs szám
GDH356110
Az ingatlan adatai
Értékesités
eladó
Jogi státusz
használt
Jelleg
lakás
Építési mód
tégla
Méret
76 m²
Bruttó méret
76 m²
Telek méret
350 m²
Terasz / erkély mérete
16 m²
Fűtés
Gáz cirkó
Belmagasság
2 700 cm
Lakáson belüli szintszám
1
Tájolás
Dél-kelet
Állapot
Jó
Homlokzat állapota
Átlagos
Pince
values.realestate.pince.1
Építés éve
1982
Fekvés
utcai
Garázs férőhely
1
Víz
Van
Gáz
Van
Villany
Van
Csatorna
Van
Kertkapcsolatos
igen
Tároló
Önálló