99 900 000 Ft
264 000 €
- 49m²
- 1 szoba
- 3. emelet
49 m²-es, másfél szobás designlakás Újlipótváros ikonikus részén
Újlipótváros egyik legkedveltebb utcájában, a Vígszínház és a Margit híd között, kínálok megvételre egy 49 m²-es, másfél szobás, teljes körűen megújított lakást, amelyet lakberendezői koncepció és modern elegancia tesz igazán különlegessé.
A lakás minden részlete új:
- új nyílászárók és bejárati ajtó
- új gépészet és elektromos hálózat
- modern burkolatok
- stílusos, egységes enteriőr
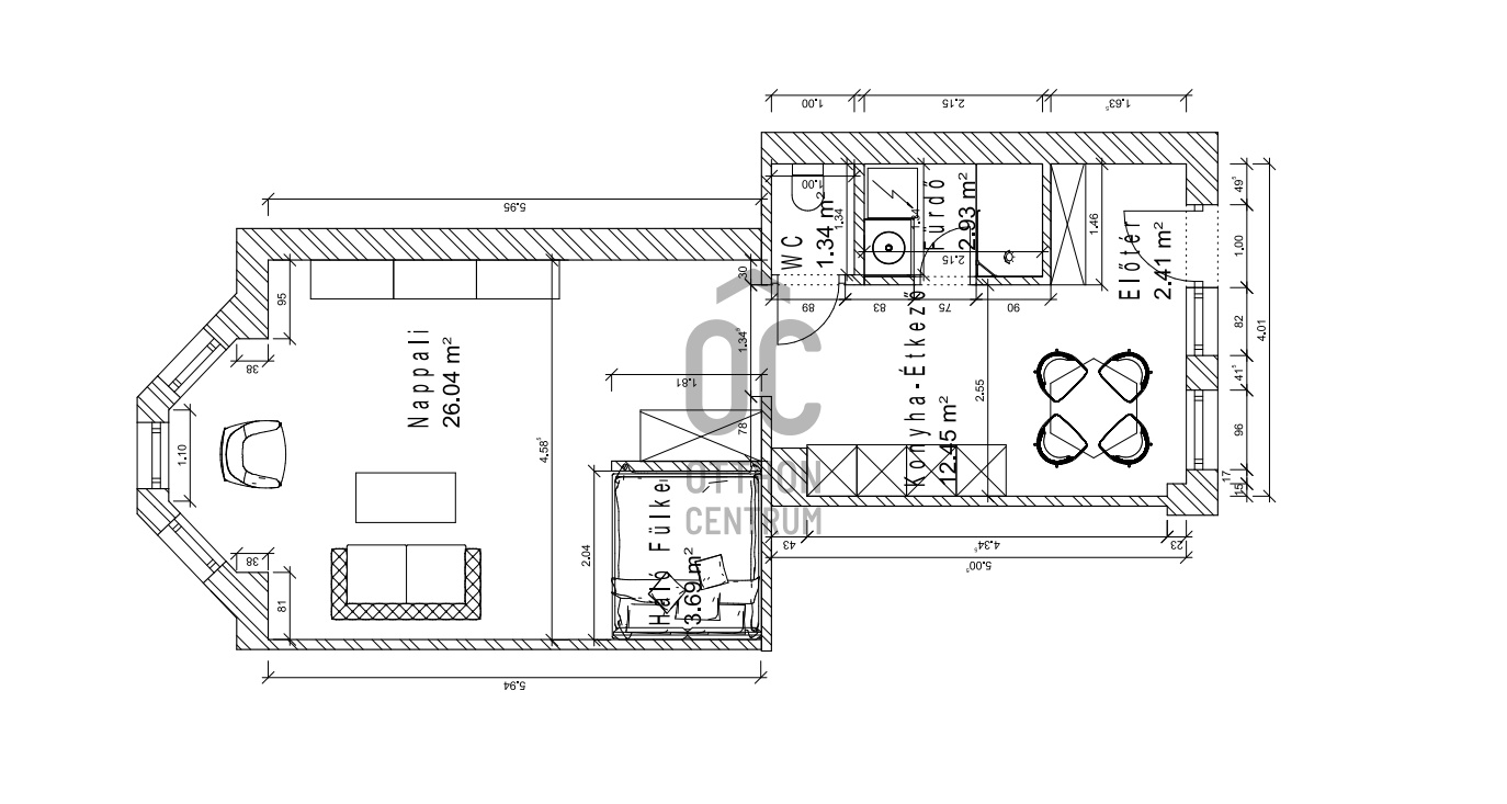
A tágas, 26 m²-es nappali világos, karakteres tér, amely azonnal otthonosságot sugároz. A finom tónusok, a kiválasztott dekorációk és a nagyvonalú térérzet olyan minőségérzetet ad, amely ritkaság ebben a méretkategóriában.
A lakás külön hálófülkével rendelkezik így ez az ingatlan is teljes értékű másfél szobás, külön alvótérrel, nem egy légterű megoldással.
A konyhaétkező külön helyiségben kapott helyet, élhető, jól használható kialakítással. Külön fürdőszoba és külön WC növeli a kényelmet ez a 49 m²-es lakás egyik komoly előnye.
Lokáció Újlipótváros legértékesebb része
A lakás elhelyezkedése kimondottan prémium:
- 1 perc séta a Vígszínház
- Néhány perc a Margit híd gyors átjutás Budára
- Szent István körút és a 4-6 villamos lépésekre
- Duna-part könnyű sétatávolság
- Kávézók, éttermek, kulturális helyszínek egész sora a közelben
Ez a városrész stabilan tartja az értékét, és a legkeresettebb lokációk között van mind befektetési, mind saját célra.
A lakás ideális választás igényes vevőknek, akik kulcsrakész, azonnal költözhető, esztétikailag és műszakilag is magas színvonalú ingatlant keresnek.
Amennyiben szeretné személyesen is megtekinteni ezt a friss, stílusos és ritka adottságokkal rendelkező lakást, kérem, keressen bizalommal. Szívesen bemutatom.
Újlipótváros egyik legkedveltebb utcájában, a Vígszínház és a Margit híd között, kínálok megvételre egy 49 m²-es, másfél szobás, teljes körűen megújított lakást, amelyet lakberendezői koncepció és modern elegancia tesz igazán különlegessé.
A lakás minden részlete új:
- új nyílászárók és bejárati ajtó
- új gépészet és elektromos hálózat
- modern burkolatok
- stílusos, egységes enteriőr
A tágas, 26 m²-es nappali világos, karakteres tér, amely azonnal otthonosságot sugároz. A finom tónusok, a kiválasztott dekorációk és a nagyvonalú térérzet olyan minőségérzetet ad, amely ritkaság ebben a méretkategóriában.
A lakás külön hálófülkével rendelkezik így ez az ingatlan is teljes értékű másfél szobás, külön alvótérrel, nem egy légterű megoldással.
A konyhaétkező külön helyiségben kapott helyet, élhető, jól használható kialakítással. Külön fürdőszoba és külön WC növeli a kényelmet ez a 49 m²-es lakás egyik komoly előnye.
Lokáció Újlipótváros legértékesebb része
A lakás elhelyezkedése kimondottan prémium:
- 1 perc séta a Vígszínház
- Néhány perc a Margit híd gyors átjutás Budára
- Szent István körút és a 4-6 villamos lépésekre
- Duna-part könnyű sétatávolság
- Kávézók, éttermek, kulturális helyszínek egész sora a közelben
Ez a városrész stabilan tartja az értékét, és a legkeresettebb lokációk között van mind befektetési, mind saját célra.
A lakás ideális választás igényes vevőknek, akik kulcsrakész, azonnal költözhető, esztétikailag és műszakilag is magas színvonalú ingatlant keresnek.
Amennyiben szeretné személyesen is megtekinteni ezt a friss, stílusos és ritka adottságokkal rendelkező lakást, kérem, keressen bizalommal. Szívesen bemutatom.
Regisztrációs szám
DLK072833
Az ingatlan adatai
Értékesités
eladó
Jogi státusz
használt
Jelleg
lakás
Építési mód
tégla
Méret
49 m²
Bruttó méret
49 m²
Fűtés
központi fűtés
Belmagasság
320 cm
Lakáson belüli szintszám
1
Tájolás
Dél-kelet
Lépcsőház típusa
zárt lépcsőház
Állapot
Kiváló
Homlokzat állapota
Jó
Építés éve
1930
Fürdőszobák száma
1
Fekvés
utcai
Közös költség
27000
Lift
van
Helyiségek
nappali
26.04 m²
wc
1.34 m²
konyha-étkező
12.45 m²
Joó Krisztina
Hitelszakértő