Elérhető Otthon Start hitellel
Eladó lakás,
DLK054755
Halásztelek
94 900 000 Ft
243 000 €
- 96m²
- 5 szoba













2021-ben épült, modern földszinti lakás saját kerttel várja új tulajdonosát!
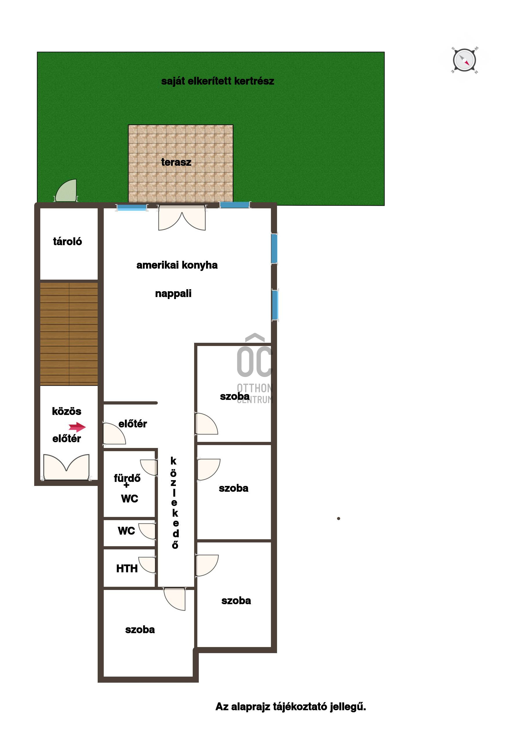
Halásztelek csendes, családias részén eladó egy hibátlan állapotú földszinti lakás, amely 96 m²-es alapterületével és nappali + 4 hálószobás kialakításával ideális választás családok számára.
Az ingatlan különlegessége, hogy saját, elkerített kertrésszel rendelkezik, amely az alapító okiratban is rögzítve van, így valóban kizárólagos használatot biztosít.A csodálatos amerikai konyha kiemelt része a nappalinak! A lakáshoz 1 db saját autóbeálló is tartozik.
A lakás főbb jellemzői:
- 30-as téglából épült, 15 cm hőszigeteléssel
- Padlófűtés minden helyiségben, gázcirkó rendszerrel
- Gardróbszoba
- Mosókonyha
- Hőszivattyú
- Klíma
- fúrt kút
- automata öntözőrendszer
- Redőny és szúnyogháló minden ablakokon
- Tágas, világos terek, igényes belső kialakítással
Ez a modern és energiatakarékos otthon tökéletes választás azoknak, akik szeretnének egy igényesen kialakított lakásba költözni, saját kerttel és kiváló műszaki felszereltséggel.
Halásztelekről Budapest belváros tömegközlekedéssel 1 óra alatt, autóval 50 perc alatt elérhető.
Amennyiben ajánlatom megfelelne az elvárásainak, de nem rendelkezik a kiválasztott ingatlan vételárával, a Credipass hitelügyintéző munkatársai díjmentesen biztosítják a legkedvezőbb, személyre szabott hitelkonstrukciót a kedves vevők számára.
Keressen bizalommal a hét bármely napján hétvégén és ünnepnapokon is, jöjjön nézzük meg együtt és szeressen bele!
A hirdetésben szereplő FIX 3%-os lakáshitel részét képező támogatásokat Magyarország Kormánya nyújtja.
Halásztelek csendes, családias részén eladó egy hibátlan állapotú földszinti lakás, amely 96 m²-es alapterületével és nappali + 4 hálószobás kialakításával ideális választás családok számára.
Az ingatlan különlegessége, hogy saját, elkerített kertrésszel rendelkezik, amely az alapító okiratban is rögzítve van, így valóban kizárólagos használatot biztosít.A csodálatos amerikai konyha kiemelt része a nappalinak! A lakáshoz 1 db saját autóbeálló is tartozik.
A lakás főbb jellemzői:
- 30-as téglából épült, 15 cm hőszigeteléssel
- Padlófűtés minden helyiségben, gázcirkó rendszerrel
- Gardróbszoba
- Mosókonyha
- Hőszivattyú
- Klíma
- fúrt kút
- automata öntözőrendszer
- Redőny és szúnyogháló minden ablakokon
- Tágas, világos terek, igényes belső kialakítással
Ez a modern és energiatakarékos otthon tökéletes választás azoknak, akik szeretnének egy igényesen kialakított lakásba költözni, saját kerttel és kiváló műszaki felszereltséggel.
Halásztelekről Budapest belváros tömegközlekedéssel 1 óra alatt, autóval 50 perc alatt elérhető.
Amennyiben ajánlatom megfelelne az elvárásainak, de nem rendelkezik a kiválasztott ingatlan vételárával, a Credipass hitelügyintéző munkatársai díjmentesen biztosítják a legkedvezőbb, személyre szabott hitelkonstrukciót a kedves vevők számára.
Keressen bizalommal a hét bármely napján hétvégén és ünnepnapokon is, jöjjön nézzük meg együtt és szeressen bele!
A hirdetésben szereplő FIX 3%-os lakáshitel részét képező támogatásokat Magyarország Kormánya nyújtja.
Regisztrációs szám
DLK054755
Az ingatlan adatai
Értékesités
eladó
Jogi státusz
használt
Jelleg
lakás
Építési mód
tégla
Méret
96 m²
Bruttó méret
96 m²
Fűtés
Gáz cirkó
Belmagasság
270 cm
Lakáson belüli szintszám
1
Tájolás
Dél-nyugat
Lépcsőház típusa
zárt lépcsőház
Állapot
Kiváló
Homlokzat állapota
Kiváló
Építés éve
2021
Fürdőszobák száma
1
Fekvés
udvari
Közös költség
14000
Helyiségek
nappali-konyha
32.6 m²
szoba
9.2 m²
szoba
9.2 m²
szoba
10.3 m²
szoba
12.2 m²
közlekedő
5.1 m²
háztartási helyiség
2.9 m²
wc
2.1 m²
fürdőszoba-wc
5 m²
terasz
10 m²

Joó Krisztina
Hitelszakértő