149 900 000 Ft
390 000 €
- 84m²
- 3 szoba
Martonvásár, csendes, egyirányú utcájában kínálunk, ikerház belső felén, 452 nm-es saját telekrésszel + 87 nm-es közös használatú telekrésszel, egy nettó 94, bruttó 134 nm-es, korszerűen megépített, visszatáplálós /engedélyezett/ napelemes házat.
Az ingatlan jogilag, tásasházi minősítése már megtörtént.Megépült továbbá egy 44 nm-es melléképület amelyben található egy kétállásos garázs 3 fázisú áramellátással, elektromos ajtóval, hőszigetelve. Valamint egy 16 nm-es szoba konyha fürdőszoba, jelenleg körmös szalonnak kialakítva, bérbe adva , megfelelő műszaki kiépítéssel, külön mérőórával, dekorvilágítással és riasztórendszerrel ellátva.
Elkészült az utcafronti és a teljes kerítésrendszer, kukatárolóval és bejárati rendszer elektromos kapunyitókkal és világítással. A teljes elektromos hálózat vezetékrendszere földkábelen keresztül lett megoldva. A kert nagy részének a parkosítása is elkészült.
A napelem telepítése 2026-ban kezdődik, a műszaki előkészítés már megtörtént.
Az ingatlan irányára a napelemek árát nem tartalmazza, mivel a vevő igényeinek megfelelő mennyiségű napelemek ára eltérhet.
A házat elektromosan vezérelt kapun keresztül, egy szolgalmi úton lehet megközelíteni.
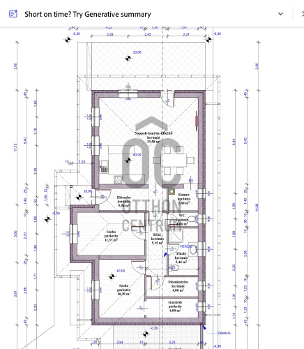
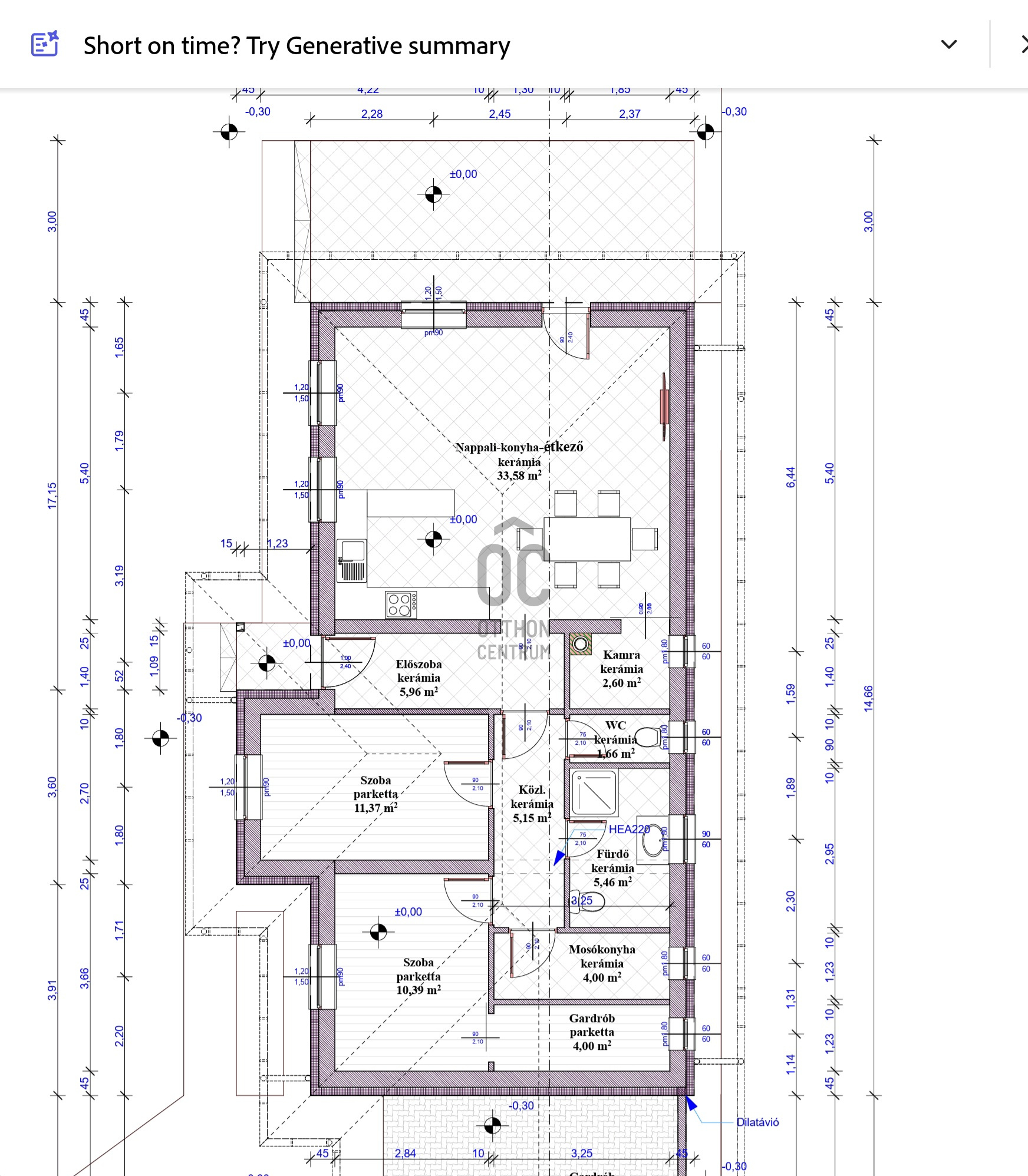
A családi házban amerikai konyhás nappali, két hálószoba, gardrób, tágas fürdőszoba wc-vel, külön mosdó, kamra és kényelmes közlekedők lettek kialakítva. A nappaliból nyíló, a belső kertre néző, közel 30 nm-es terasz lett építve. Az esővíz elvezetésről egy 10 köbméteres szikkasztó gondoskodik. Kiépítésre került egy medencekiállás és kerti csap is.
A fűtésről minden helyiségben külön állítható, elektromos padlófűtés gondoskodik, plusz 3 db 3.5 Kw-os hűtő -fűtő klímát is beszereltek.
A berendezések árát az irányár nem tartalmazza, kivéve a beépített konyha, gépek nélkül a beépített gardrób szekrény, zuhanykabin.
A külső nyílászárók automata, programozható, (egyszerre és külön-külön működtethető) redőnyökkel és szúnyoghálóval felszereltek.
A biztonságról biztonsági ajtó, biztonsági szolgálathoz bekötött riasztó és kamerarendszer gondoskodik. A külső világítás alkonykapcsolós, mozgás érzékelő, kétirányban világító, LED-es armatúrákkal ellátott. Kaputelefon rendszer. a bejárat távirányítós elektromos kapukkal ellátva.
Bővebb műszaki információkért, hívjon bizalommal.Martonvásár nemcsak a kényelmes és csendes lakókörnyezet miatt vonzó, hanem történelmi és kulturális értékei miatt is. Egy kis település, ami mégis minden szükséges infrastruktúrával rendelkezik: iskolák, óvodák, vásárlási lehetőségek és közparkok egyaránt megtalálhatóak. A közelben lévő Brunszvik-kastély és annak gyönyörű angolparkja kulturális programok széles skáláját kínálja, így nem csak egy házat, hanem egy valódi otthont vásárolhat az itt élők közösségében. Az M7-es autópálya könnyű elérhetősége pedig biztosítja, hogy Budapest is csupán egy rövid autóútra van, így Martonvásár ideális választás lehet azok számára, akik a nyugodt környezetet és a város közelségét is fontosnak tartják.
Az otthon nem csak megjelenésében, hanem funkcionalitásában is kiemelkedik. A tágas, világos terek és a kifinomult belső kialakítás a kényelem és stílus tökéletes kombinációját nyújtja. A kertre néző ablakok nyugodt, zöld látványt biztosítanak, lehetővé téve, hogy a természet közelségét élvezze az otthona melegéből.
Eladó egy vadonatúj, 2023-ban épült, tégla szerkezetű családi ház Martonvásár csendes, egyirányú utcájában. Az ingatlan egy különálló, kétállásos garázzsal rendelkezik, ami tökéletesen kielégíti az autótulajdonosok igényeit. Az épület mellett található egy 16 négyzetméteres, jól kihasználható kis lakás, amely konyhával, fürdőszobával és egy kis szobával rendelkezik, ideális lehet például vendégszobának vagy akár irodának is. A biztonságról egy modern, távfelügyeletre bekötött riasztórendszer gondoskodik, amely a nyugalom és biztonságérzetet növeli.
Az ingatlan jogilag, tásasházi minősítése már megtörtént.Megépült továbbá egy 44 nm-es melléképület amelyben található egy kétállásos garázs 3 fázisú áramellátással, elektromos ajtóval, hőszigetelve. Valamint egy 16 nm-es szoba konyha fürdőszoba, jelenleg körmös szalonnak kialakítva, bérbe adva , megfelelő műszaki kiépítéssel, külön mérőórával, dekorvilágítással és riasztórendszerrel ellátva.
Elkészült az utcafronti és a teljes kerítésrendszer, kukatárolóval és bejárati rendszer elektromos kapunyitókkal és világítással. A teljes elektromos hálózat vezetékrendszere földkábelen keresztül lett megoldva. A kert nagy részének a parkosítása is elkészült.
A napelem telepítése 2026-ban kezdődik, a műszaki előkészítés már megtörtént.
Az ingatlan irányára a napelemek árát nem tartalmazza, mivel a vevő igényeinek megfelelő mennyiségű napelemek ára eltérhet.
A házat elektromosan vezérelt kapun keresztül, egy szolgalmi úton lehet megközelíteni.
A családi házban amerikai konyhás nappali, két hálószoba, gardrób, tágas fürdőszoba wc-vel, külön mosdó, kamra és kényelmes közlekedők lettek kialakítva. A nappaliból nyíló, a belső kertre néző, közel 30 nm-es terasz lett építve. Az esővíz elvezetésről egy 10 köbméteres szikkasztó gondoskodik. Kiépítésre került egy medencekiállás és kerti csap is.
A fűtésről minden helyiségben külön állítható, elektromos padlófűtés gondoskodik, plusz 3 db 3.5 Kw-os hűtő -fűtő klímát is beszereltek.
A berendezések árát az irányár nem tartalmazza, kivéve a beépített konyha, gépek nélkül a beépített gardrób szekrény, zuhanykabin.
A külső nyílászárók automata, programozható, (egyszerre és külön-külön működtethető) redőnyökkel és szúnyoghálóval felszereltek.
A biztonságról biztonsági ajtó, biztonsági szolgálathoz bekötött riasztó és kamerarendszer gondoskodik. A külső világítás alkonykapcsolós, mozgás érzékelő, kétirányban világító, LED-es armatúrákkal ellátott. Kaputelefon rendszer. a bejárat távirányítós elektromos kapukkal ellátva.
Bővebb műszaki információkért, hívjon bizalommal.Martonvásár nemcsak a kényelmes és csendes lakókörnyezet miatt vonzó, hanem történelmi és kulturális értékei miatt is. Egy kis település, ami mégis minden szükséges infrastruktúrával rendelkezik: iskolák, óvodák, vásárlási lehetőségek és közparkok egyaránt megtalálhatóak. A közelben lévő Brunszvik-kastély és annak gyönyörű angolparkja kulturális programok széles skáláját kínálja, így nem csak egy házat, hanem egy valódi otthont vásárolhat az itt élők közösségében. Az M7-es autópálya könnyű elérhetősége pedig biztosítja, hogy Budapest is csupán egy rövid autóútra van, így Martonvásár ideális választás lehet azok számára, akik a nyugodt környezetet és a város közelségét is fontosnak tartják.
Az otthon nem csak megjelenésében, hanem funkcionalitásában is kiemelkedik. A tágas, világos terek és a kifinomult belső kialakítás a kényelem és stílus tökéletes kombinációját nyújtja. A kertre néző ablakok nyugodt, zöld látványt biztosítanak, lehetővé téve, hogy a természet közelségét élvezze az otthona melegéből.
Eladó egy vadonatúj, 2023-ban épült, tégla szerkezetű családi ház Martonvásár csendes, egyirányú utcájában. Az ingatlan egy különálló, kétállásos garázzsal rendelkezik, ami tökéletesen kielégíti az autótulajdonosok igényeit. Az épület mellett található egy 16 négyzetméteres, jól kihasználható kis lakás, amely konyhával, fürdőszobával és egy kis szobával rendelkezik, ideális lehet például vendégszobának vagy akár irodának is. A biztonságról egy modern, távfelügyeletre bekötött riasztórendszer gondoskodik, amely a nyugalom és biztonságérzetet növeli.
Regisztrációs szám
DHZ074543
Az ingatlan adatai
Értékesités
eladó
Jogi státusz
használt
Jelleg
ház
Építési mód
tégla
Méret
84 m²
Bruttó méret
84 m²
Telek méret
764 m²
Terasz / erkély mérete
22 m²
Fűtés
Gáz cirkó
Belmagasság
270 cm
Lakáson belüli szintszám
1
Tájolás
Észak-nyugat
Állapot
Kiváló
Homlokzat állapota
Kiváló
Építés éve
2023
Fürdőszobák száma
1
Fekvés
udvari
Víz
Van
Gáz
Van
Villany
Van
Csatorna
Van
Helyiségek
nappali-konyha
30.08 m²
szoba
10.4 m²
szoba
9.5 m²
közlekedő
7.21 m²
wc
1.85 m²
kamra
2.59 m²
fürdőszoba-wc
6.99 m²
előszoba
3.65 m²
veranda
22 m²
Horváth Eleonóra
Hitelszakértő