26,900,000 Ft
69,000 €
- 515m²






„A hely megvan. A terv is. Most már csak Ön hiányzik.”
Tahitótfalu egyik csendes, zöldövezeti mellékutcájában kínálunk megvételre egy szabályos téglalap alakú építési telket, amely ideális választás lehet állandó otthon vagy nyaraló építésére.
A környék rendezett, a szomszédok barátságosak, a környezet nyugodt és természetközeli.
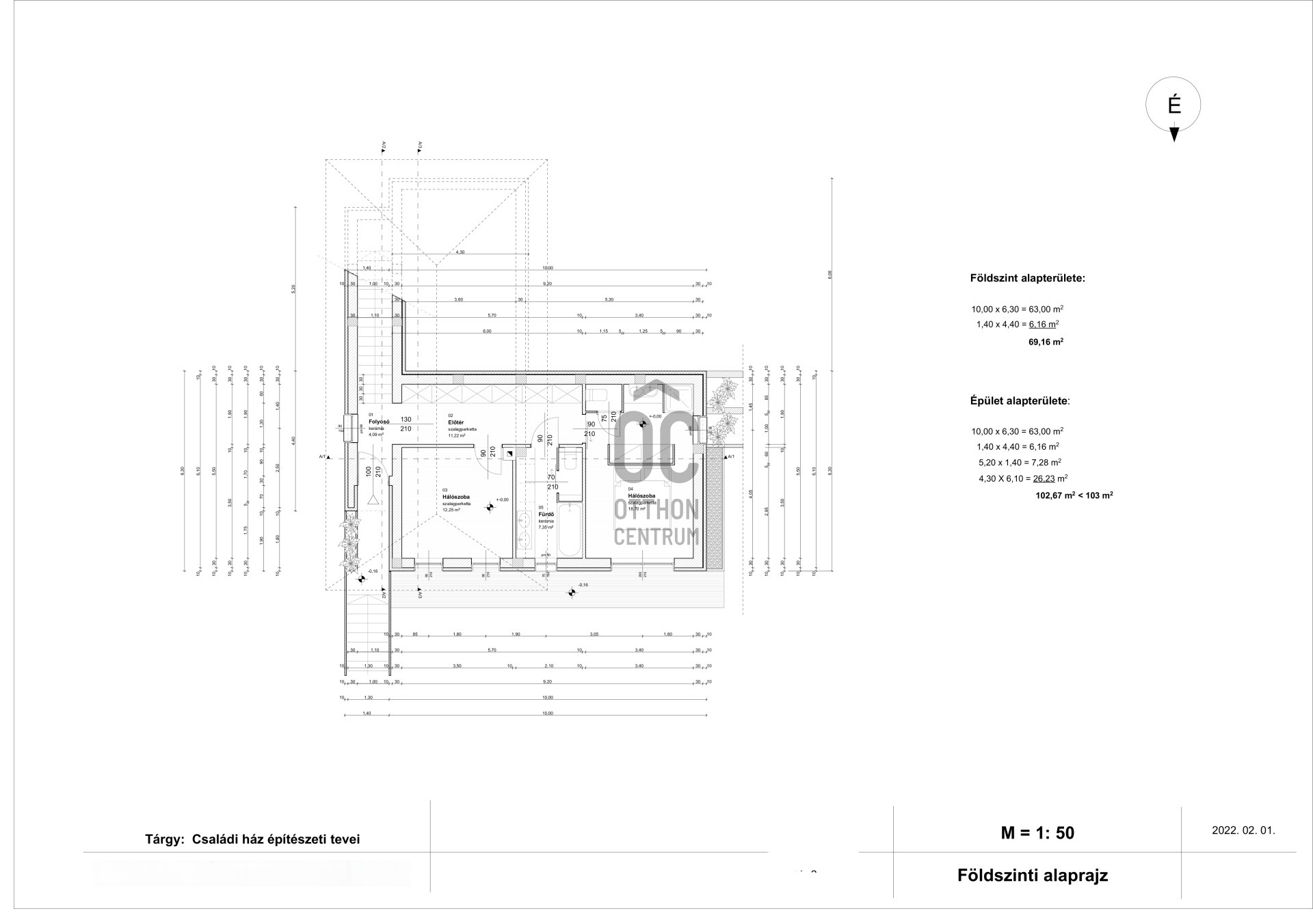
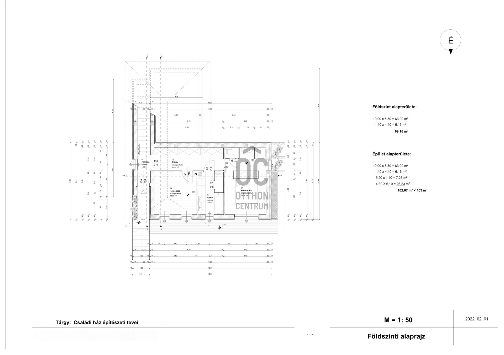
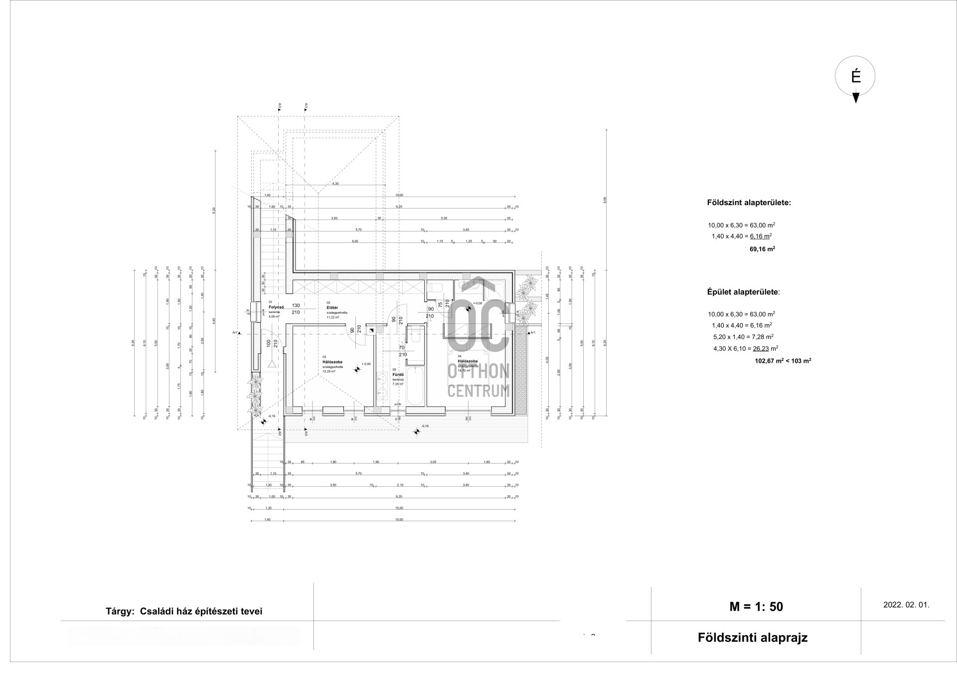
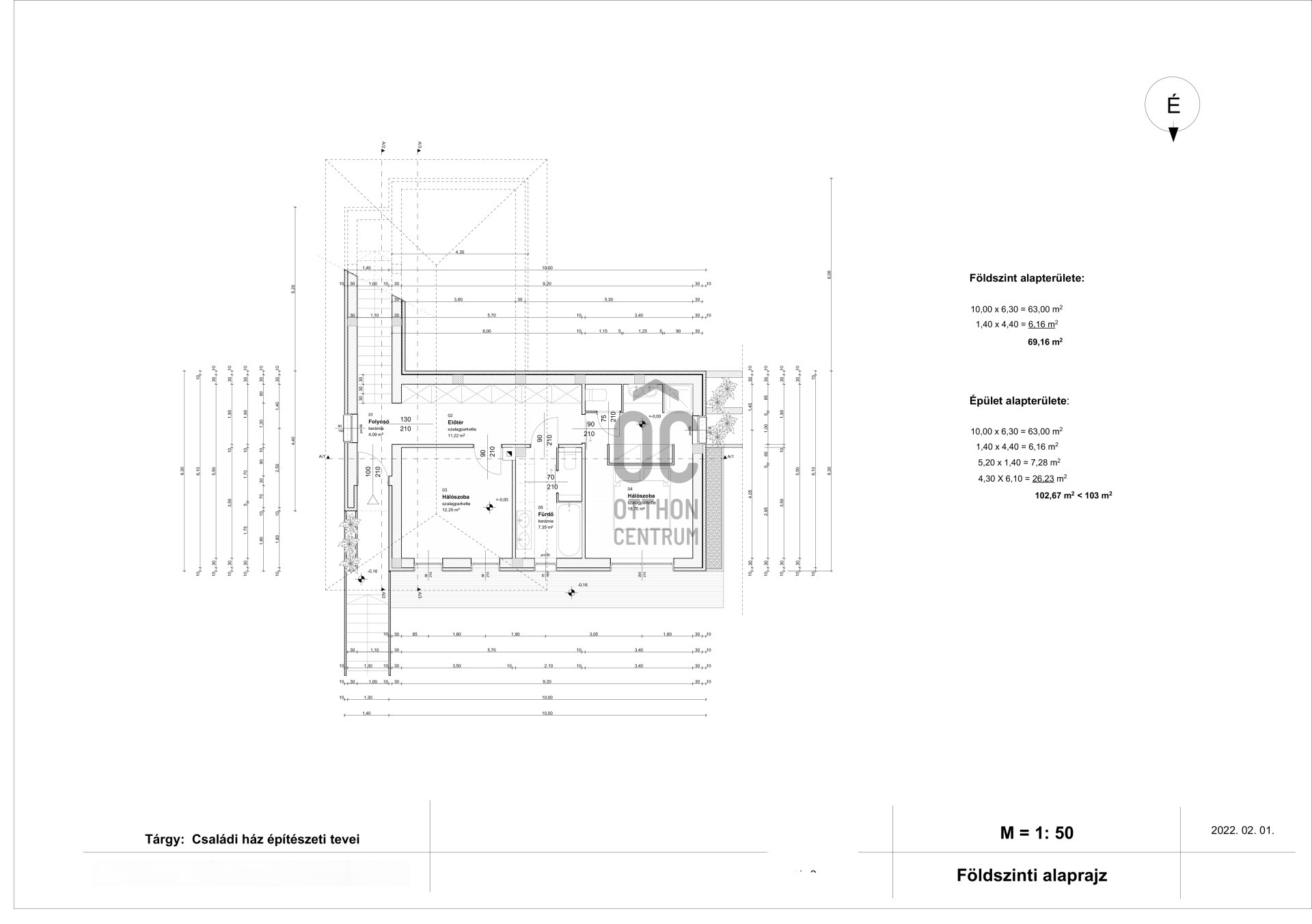
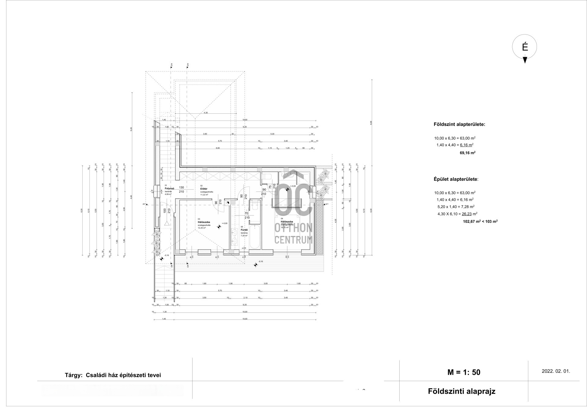
A telekhez egy engedélyezett házterv is rendelkezésre áll, így az építkezés akár azonnal elkezdhető. A ház alapjához illetve a födémhez szükséges vasanyag 90 %-át a tulajdonos már megvette, így az a vételár részét képezi, mintegy 3,5 millió forint értékben.
Megtörtént a statikai felmérés, a talajmechanikai vizsgálat, a telektisztítás és a közművek – víz és villany – bevezetése is.
Ideális lehetőség azok számára, akik időt és energiát spórolva, előkészített projektet keresnek egy nyugodt, zöldövezeti környezetben.
További részletekért, tervrajz megtekintéséhez vagy időpont-egyeztetéshez várom hívását!
Övezet : LKE8
Beépíthetőség : 20 %
Építmény magasság : 4,5 m
A környék rendezett, a szomszédok barátságosak, a környezet nyugodt és természetközeli.
A telekhez egy engedélyezett házterv is rendelkezésre áll, így az építkezés akár azonnal elkezdhető. A ház alapjához illetve a födémhez szükséges vasanyag 90 %-át a tulajdonos már megvette, így az a vételár részét képezi, mintegy 3,5 millió forint értékben.
Megtörtént a statikai felmérés, a talajmechanikai vizsgálat, a telektisztítás és a közművek – víz és villany – bevezetése is.
Ideális lehetőség azok számára, akik időt és energiát spórolva, előkészített projektet keresnek egy nyugodt, zöldövezeti környezetben.
További részletekért, tervrajz megtekintéséhez vagy időpont-egyeztetéshez várom hívását!
Övezet : LKE8
Beépíthetőség : 20 %
Építmény magasság : 4,5 m
Registration Number
T040083
Property Details
Sales
for sale
Character
plot
Type of Land
Building plot
Zone
residential zone
Plot Size
515 m²
Orientation
North-East
View
river or lake view, Green view
Neighborhood
quiet, green
Water
Available
Electricity
Available
Buildability
20%
Facade Height
4
Type of Buildable Property
Family house

Korcsog Melinda
Credit Expert