65,990,000 Ft
175,000 €
- 154m²
- 4 Rooms
- ground floor
Kivételes befektetési lehetőség Balatonbogláron
Kivételes befektetési lehetőség Balatonbogláron – kétszintes ingatlan a Balatontól mindössze 900 méterre!
Eladó Balatonbogláron egy két szintes, kiváló állapotban lévő ingatlan, amely ideális választás lehet akár saját nyaralónak, családi otthonnak, akár jövedelmező turisztikai célú hasznosításra!
Az ingatlan egy csendes, nyugodt utcában található, mégis alig 900 méterre a Balaton-parttól, így gyalogosan is könnyedén megközelíthető a strand, a sétány és a helyi vendéglátóegységek. Balatonboglár a déli part egyik kedvelt üdülővárosa, ahol a nyári szezonban pezseg az élet – a környék kedvelt célpontja családoknak, fiataloknak és idősebbeknek egyaránt.
Az épület teljes közművel ellátott (víz, villany, gáz, csatorna), kívülről szigetelt és frissen felújított. A két szint külön bejárattal is kialakítható, így szintenként 1-2 különálló lakás is létrehozható – ideális apartmanok vagy vendégház kialakítására.
Az ingatlanhoz földszinti rész nem tartozik, tehát az első és második emelet ( beépíthető padlás tér) képezi magát az ingatlant.
Az ingatlanhoz egy saját körbe kerített 210 m2-es udvar is tartozik, autó beállási lehetőséggel.
Ez a lehetőség különösen vonzó befektetők számára, hiszen a balatoni turizmus folyamatosan növekvő keresletet mutat a minőségi szálláshelyek iránt. Az ingatlan adottságai és elhelyezkedése miatt kiválóan alkalmas szezonális kiadásra, de akár egész éves hasznosítás is lehetséges.
Az ingatlan külön bejáratú amit a hátsó bejáraton lehet megközelíteni.
Főbb jellemzők:
Két szint, több lakás kialakításának lehetőségével
Teljes közműves ellátottság
Külső szigetelés, jó állapotú, felújított épület
Balaton mindössze 900 méterre
Csendes utca, mégis központi elhelyezkedés
Ideális nyaralónak, otthonnak vagy befektetésnek
Ne maradjon le erről a páratlan lehetőségről – a Balaton közelsége és az ingatlan sokoldalú hasznosíthatósága garantáltan értékálló befektetést jelent!
Eladó Balatonbogláron egy két szintes, kiváló állapotban lévő ingatlan, amely ideális választás lehet akár saját nyaralónak, családi otthonnak, akár jövedelmező turisztikai célú hasznosításra!
Az ingatlan egy csendes, nyugodt utcában található, mégis alig 900 méterre a Balaton-parttól, így gyalogosan is könnyedén megközelíthető a strand, a sétány és a helyi vendéglátóegységek. Balatonboglár a déli part egyik kedvelt üdülővárosa, ahol a nyári szezonban pezseg az élet – a környék kedvelt célpontja családoknak, fiataloknak és idősebbeknek egyaránt.
Az épület teljes közművel ellátott (víz, villany, gáz, csatorna), kívülről szigetelt és frissen felújított. A két szint külön bejárattal is kialakítható, így szintenként 1-2 különálló lakás is létrehozható – ideális apartmanok vagy vendégház kialakítására.
Az ingatlanhoz földszinti rész nem tartozik, tehát az első és második emelet ( beépíthető padlás tér) képezi magát az ingatlant.
Az ingatlanhoz egy saját körbe kerített 210 m2-es udvar is tartozik, autó beállási lehetőséggel.
Ez a lehetőség különösen vonzó befektetők számára, hiszen a balatoni turizmus folyamatosan növekvő keresletet mutat a minőségi szálláshelyek iránt. Az ingatlan adottságai és elhelyezkedése miatt kiválóan alkalmas szezonális kiadásra, de akár egész éves hasznosítás is lehetséges.
Az ingatlan külön bejáratú amit a hátsó bejáraton lehet megközelíteni.
Főbb jellemzők:
Két szint, több lakás kialakításának lehetőségével
Teljes közműves ellátottság
Külső szigetelés, jó állapotú, felújított épület
Balaton mindössze 900 méterre
Csendes utca, mégis központi elhelyezkedés
Ideális nyaralónak, otthonnak vagy befektetésnek
Ne maradjon le erről a páratlan lehetőségről – a Balaton közelsége és az ingatlan sokoldalú hasznosíthatósága garantáltan értékálló befektetést jelent!
Registration Number
H501802
Property Details
Sales
for sale
Legal Status
used
Character
vacation home
Type of Vacation Home
house
Construction Method
ytong
Net Size
154 m²
Gross Size
210 m²
Plot Size
420 m²
Size of Terrace / Balcony
22 m²
Garden Size
210 m²
Heating
Gas circulator
Ceiling Height
300 cm
Number of Levels Within the Property
2
Orientation
North
Staircase Type
circular corridor
Condition
Good
Condition of Facade
Good
Condition of Staircase
Average
Neighborhood
quiet, green
Year of Construction
1996
Number of Bathrooms
2
Position
garden-facing
Condominium Garden
yes
Garage
Included in the price
Water
Available
Gas
Available
Electricity
Available
Sewer
Available
Storage
Independent
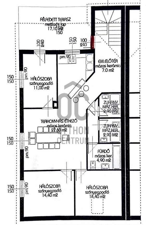
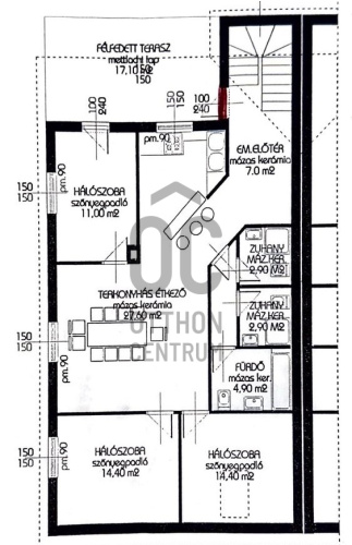
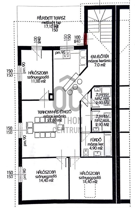
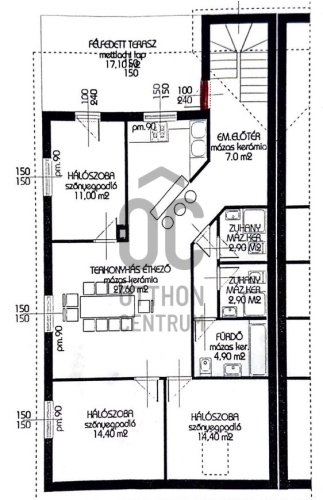
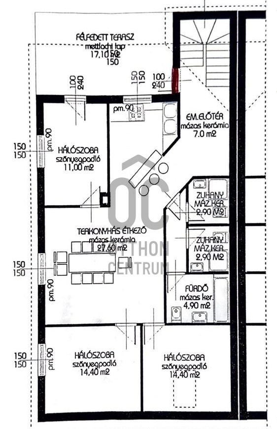
Rooms
terrace
5 m²
staircase
4 m²
open-plan kitchen and living room
30 m²
bathroom-toilet
5 m²
bathroom
3 m²
laundry room
3 m²
bedroom
15 m²
bedroom
15 m²
bedroom
11 m²
balcony
17 m²
attic
60 m²