For sale family house, H444582
Százhalombatta, Dunafüred

280,000,000 Ft

739,000 €

  • 280m²
  • 6 Rooms

DUNAFÜREDI - IMPOZÁNS - PARKOS

SZÁZHALOMBATTA, DUNAFÜREDI RÉSZÉN, közel a gáthoz, Dunához, természethez ELADÓ ÚJSZERŰ STÍLUSOS HÁZ !!!

- EXKLUZÍV, MODERN KÍVÜL-BELÜL
- IMPOZÁNS , GALÉRIÁS , NAPPALI ÉLETTÉR 100 NM
- PARKOSÍTOTT, 40 NM-ES TERASZ KERTI SÜTÖGETŐVEL
- VINTAGE HANGULAT
- ELEGÁNS MILIŐ

A közel 800 nm-es telken elhelyezkedő ház, 43 nm-es nappalival, 50 nm-es étkező-konyhával rendelkezik.
Elszeparáltan helyezkedik el a nappali élettértől az intim szféra hálószoba,fürdőszoba, gardrób.
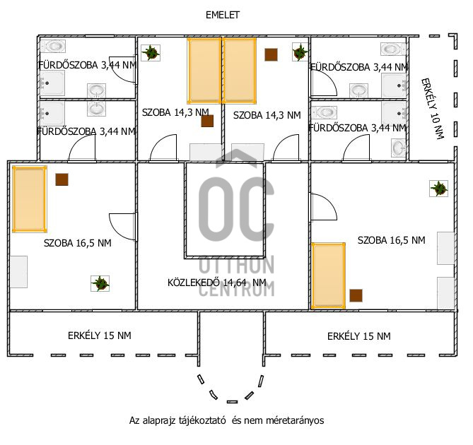
A házba belépve elénk tárul a tágas hall, amely emeleti , körfolyosós galériás. Az emeleten elhelyezkedő szobák ( 4 )
önálló fürdőszobákkal, erkélyekkel rendelkeznek.
NYUGALOM SZIGETE, PAZAR KÖRNYEZET!!

Dunafüred csendes, zöldes részén helyezkedik el az ingatlan, közel a GÁTHOZ, DUNÁHOZ!

Registration Number

H444582

Property Details

Sales
for sale
Legal Status
used
Character
house
Construction Method
brick
Net Size
280 m²
Gross Size
350 m²
Plot Size
789 m²
Size of Terrace / Balcony
80 m²
Heating
Gas circulator
Ceiling Height
265 cm
Number of Levels Within the Property
2
Orientation
South
View
Green view
Condition
Excellent
Condition of Facade
Excellent
Neighborhood
quiet, green
Year of Construction
2017
Number of Bathrooms
5
Garage
Included in the price
Garage Spaces
2
Water
Available
Gas
Available
Electricity
Available
Sewer
Available
Multi-Generational
yes
Storage
Independent

Rooms

open-plan kitchen and dining room
50 m²
living room
43 m²
wardrobe
4 m²
bathroom-toilet
12 m²
bedroom
20 m²
bathroom-toilet
8 m²
room
16.5 m²
room
14.3 m²
room
14.3 m²
room
16.5 m²
bathroom-toilet
3.44 m²
bathroom-toilet
3.44 m²
bathroom-toilet
3.44 m²
bathroom-toilet
3.44 m²
corridor
12 m²
corridor
14.64 m²
terrace
40 m²
balcony
40 m²
pantry
4 m²
staircase
8 m²
garage
30 m²
Horváth Eleonóra
Horváth Eleonóra

Credit Expert

From Our Office Listings - Százhalombatta

for sale apartment

Index image
33

for sale family house

Index image
data_sheet.details.realestate.section.main.otthonstart_flag.label
42

for sale plot

Index image
10

for sale family house

Index image
data_sheet.details.realestate.section.main.otthonstart_flag.label
24

for sale family house

Index image
data_sheet.details.realestate.section.main.otthonstart_flag.label
17

for sale semi-detached house

Index image
data_sheet.details.realestate.section.main.otthonstart_flag.label
25

for sale panel apartment

Index image
data_sheet.details.realestate.section.main.otthonstart_flag.label
14

for sale family house

Index image
data_sheet.details.realestate.section.main.otthonstart_flag.label
11

for sale family house

Index image
14