For sale apartment, DLK037172
Vác, Lajos telep

150,000,000 Ft

420,000 €

  • 200m²
  • 4 Rooms
  • 1st floor
Exclusive Contract


**Eladó egy 200 m²-es, saját kertrésszel, felszíni beállóval, garázzsal, pincével rendelkező, téglaépítésű kétlakásos társasházrész Vácon. **

A felső szint 2006-ban épült. A kétszintes, napfényes lakás 160.000.000 forintért kerül értékesítésre. Az ingatlan kiváló ár-érték arányt képvisel. Ideális választás lehet azok számára, akik egy csendes, kertvárosi környezetben szeretnének élni.
 Az ingatlan alkalmas 2 generáció összeköltözésére. A két külön bejáratú lakás mégis saját életteret biztosít. A lakások külön-külön is megvásárolhatók. 
A ház tágas, napfényes terekkel rendelkezik, amelyek otthonossá teszik minden pillanatát. A fűtést gázcirkó biztosítja, így a téli hónapokban is melegebb és kedvezőbb a fenntartása. A házhoz egy nagy, fedett terasz is tartozik.

A kertre nyíló panoráma különleges hangulatot kölcsönöz az ingatlannak, a béke és nyugalom szigetét kínálva a város szívében. A telek minden közművel rendelkezik.  A házhoz garázs is tartozik az autó biztonságos tárolásáért.

Az ingatlan padlástérrel is bír, ami adott esetben további beépítési lehetőséget jelent(további 50m2, közművek is fent), így bármikor növelheti az élettér méretét. 

Vác városa a Duna partján terül el, kilátással a festői Naszály-hegyre. A város közelében számos kirándulóhely, bicikliút és vízi sportolási lehetőség található, így nem csak a helyiek, hanem a turisták körében is népszerű. Vác tökéletes helyszín azok számára, akik a természet közelségét és a városi élet kényelmeit is fontosnak tartják.

A galériában ai generlált kép is található.

Registration Number

DLK037172

Property Details

Sales
for sale
Legal Status
used
Character
apartment
Construction Method
brick
Net Size
200 m²
Gross Size
200 m²
Heating
Gas circulator
Ceiling Height
270 cm
Number of Levels Within the Property
1
Orientation
North-West
Staircase Type
enclosed staircase
Condition
Good
Condition of Facade
Good
Year of Construction
2006
Number of Bathrooms
2
Position
courtyard-facing

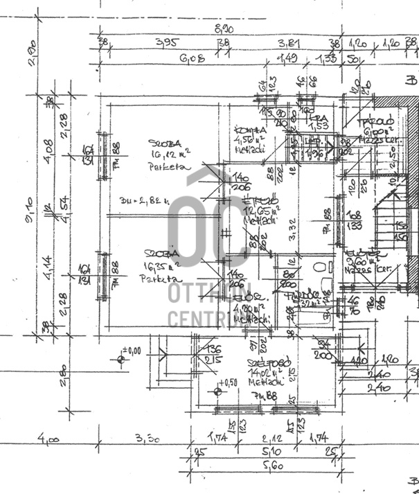
Rooms

living room
17.67 m²
room
16.12 m²
kitchen
4.56 m²
dining room
12.56 m²
entryway
4.25 m²
bathroom-toilet
5.32 m²
other
14.02 m²
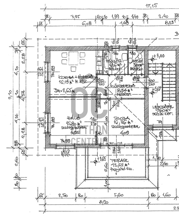
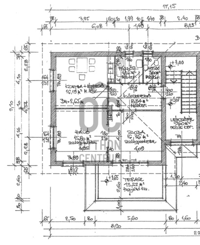
room
17.48 m²
room
16.92 m²
open-plan kitchen and dining room
18.25 m²
corridor
9.45 m²
bathroom-toilet
5.56 m²
staircase
13.45 m²
veranda
13.52 m²
Bán Marianna
Bán Marianna

Credit Expert

From Our Office Listings - IV. kerület - Erzsébet utca

for sale panel apartment

Index image
data_sheet.details.realestate.section.main.otthonstart_flag.label
17

for sale plot

Index image
12

for sale apartment

Index image
data_sheet.details.realestate.section.main.otthonstart_flag.label
14

for sale plot

Index image
7

for sale new construction row house

Index image
data_sheet.details.realestate.section.main.otthonstart_flag.label
7

for sale new construction row house

Index image
data_sheet.details.realestate.section.main.otthonstart_flag.label
7

for sale new construction row house

Index image
data_sheet.details.realestate.section.main.otthonstart_flag.label
7

for sale new construction semi-detached house

Index image
data_sheet.details.realestate.section.main.otthonstart_flag.label
7

for sale apartment

Index image
22

for sale panel apartment

Index image
data_sheet.details.realestate.section.main.otthonstart_flag.label
23