data_sheet.details.realestate.section.main.otthonstart_flag.label
For sale family house,
DHZ094418
Siklós
70,000,000 Ft
180,000 €
- 259m²
- 6 Rooms


























Siklós csendes, nyugodt utcájában, 180 m²-es, részben felújított és átalakított, két generációs családi ház eladó.
A ház felújításon esett át az MFB pályázatnak köszönhetően, így az összes nyílászáró műanyagra lett cserélve, és a villamos hálózat is modernizálásra került. A rendszer teljesítménye bővült, és új éjszakai, nappali (3x25) és H-tarifa (3x16) áramkörök kerültek kiépítésre a hőszivattyú ellátására.
-Fűtés szempontjából két lehetőség közül választhatunk:
- Vegyes tüzelésű kazán
- Fő fűtési rendszerként működő hőszivattyú
Az ingatlanon gázcsonk is elérhető, így könnyedén bevezethető a gáz. Az északi és nyugati falak, valamint a garázs feletti rész szigetelve van, a födémre pedig 10 cm vastag kőzetgyapotot helyeztek el. Az emeleten a nappali és a hálószoba egy-egy klímával felszerelt.
Az ingatlan számos lehetőséget rejt magában, ideális választás lehet akár két generáció számára, vagy akár Airbnb-szolgáltatás céljára is.
A két szint különálló, de szükség esetén összenyitható.
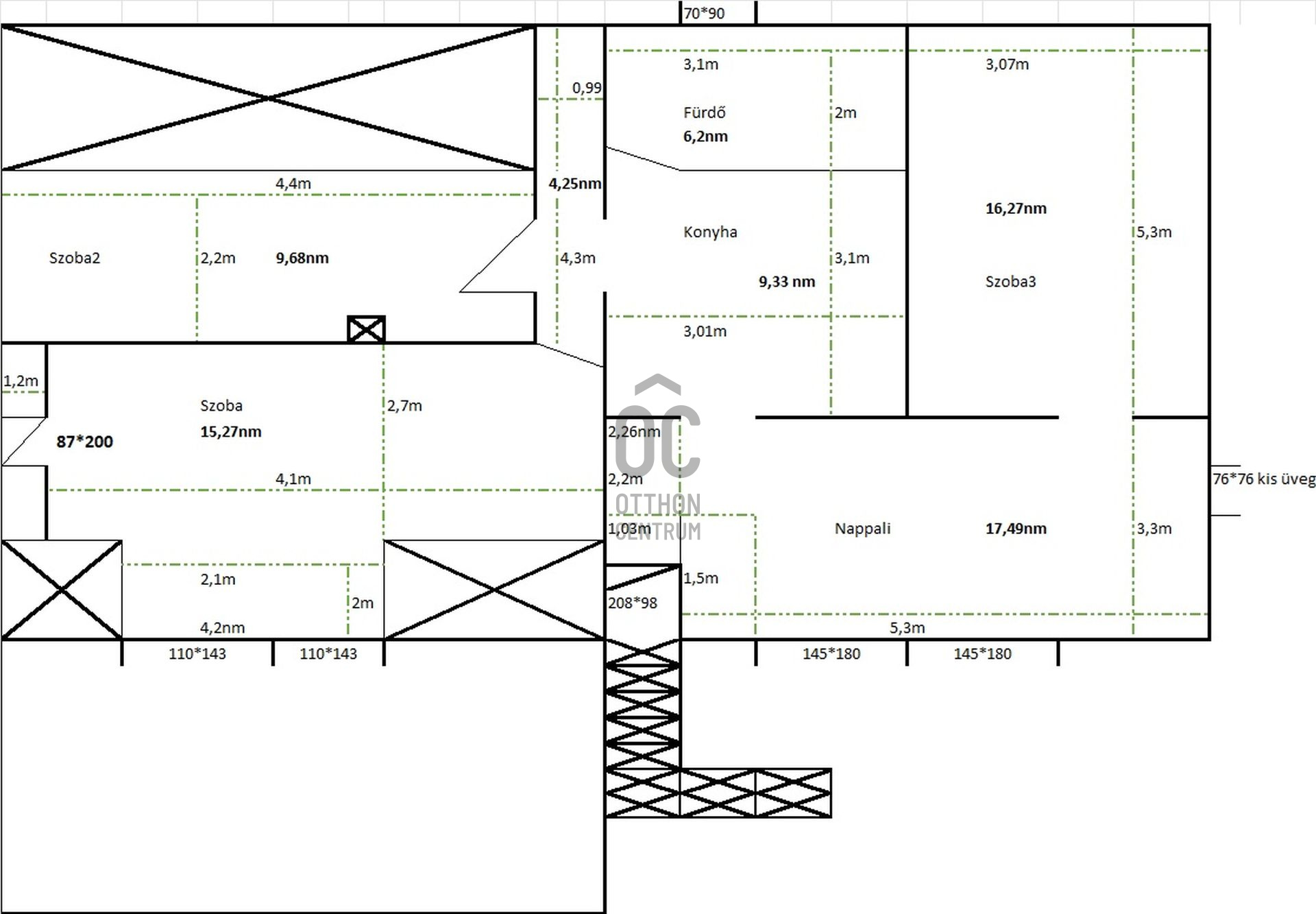
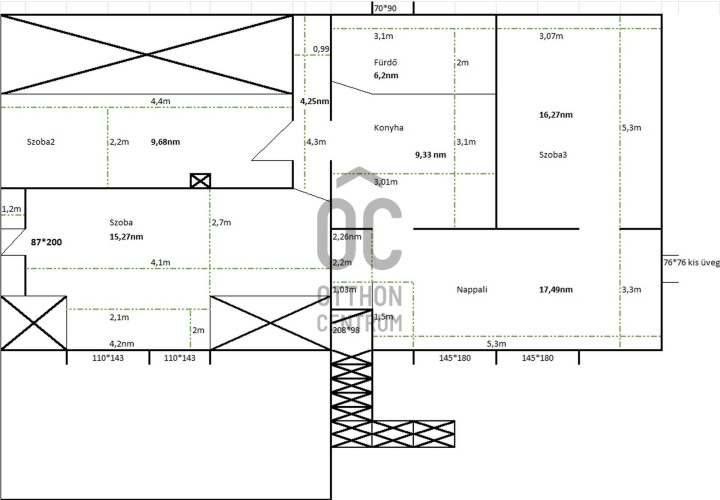
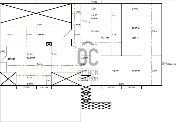
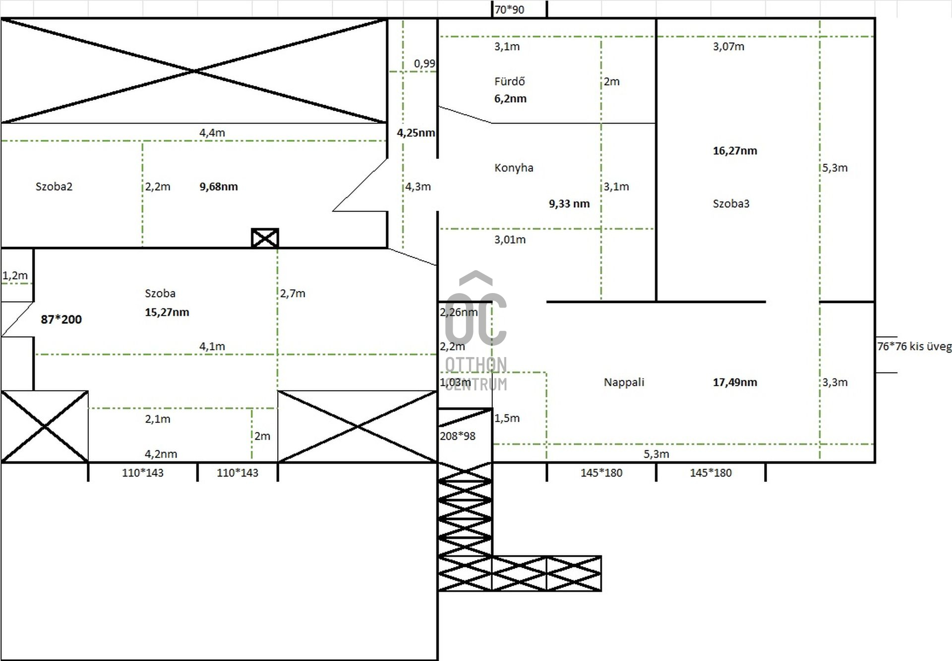
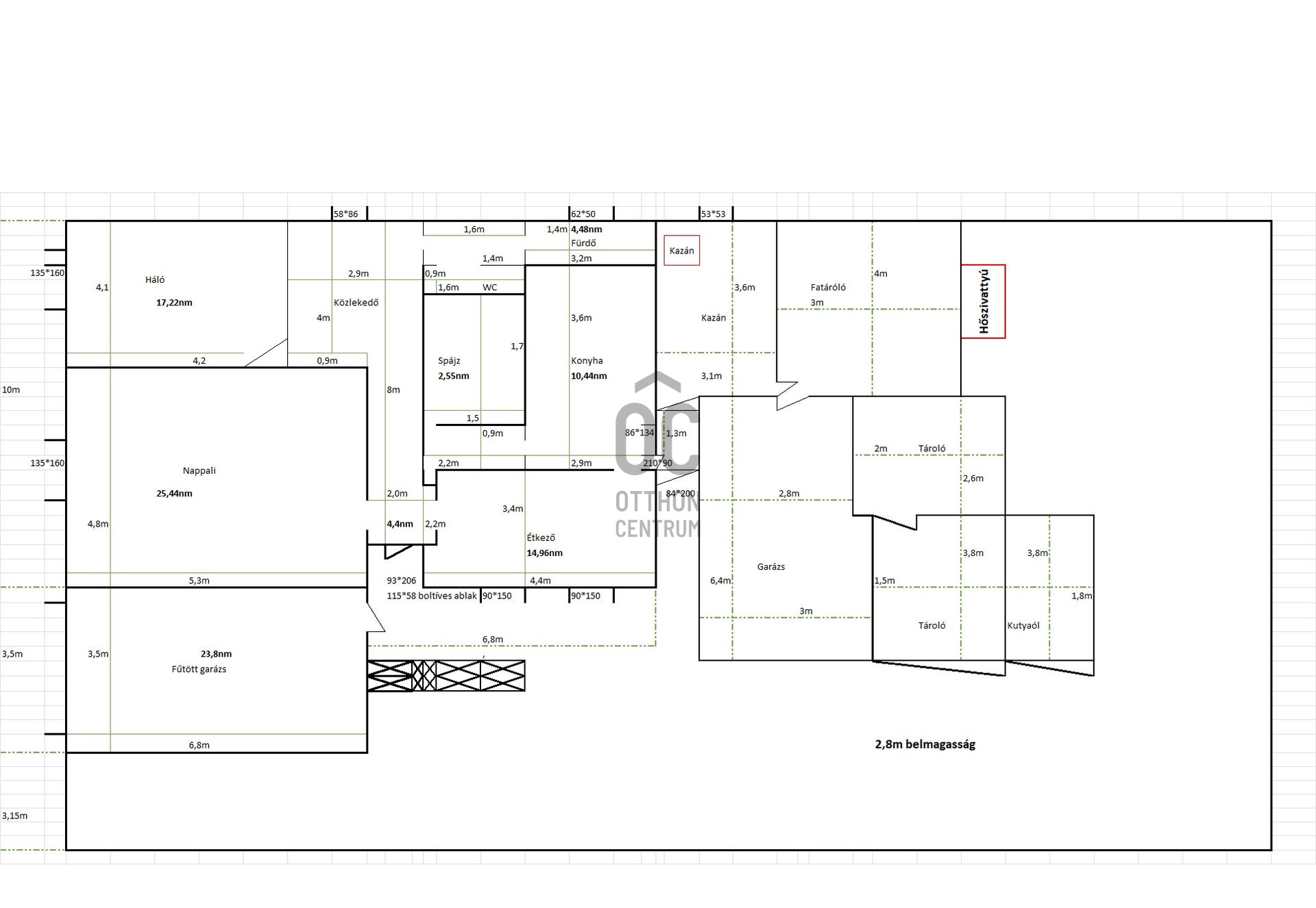
Az alsó szinten található:
- Nappali
- Hálószoba
- Konyha
- Étkező
- Spájz
- Fürdőszoba
Az emeleten:
- Nappali
- Konyha
- Fürdőszoba
- 2,5 szoba (az egyik szoba ablak nélküli, beépítésre vár)
A 616 m²-es telek tartalmaz:
- Fedett, fűthető garázs
- További tároló helyiségek: fa tároló, külön garázs, gépészeti helyiség/nyári konyha, szerszámos, lomos tároló, valamint egy fúrt kút.
Tesco és Aldi 12 perc sétára
-Belváros 15 perc sétával elérhető
-Óvoda és iskola mindössze 10 perc sétára
-Buszmegállók 5 perc sétára találhatók
Ha keresel egy rugalmasan használható, több generáció számára is ideális otthont, vagy akár üzleti céllal szeretnél ingatlant, ne hagyd ki ezt a lehetőséget!
A ház felújításon esett át az MFB pályázatnak köszönhetően, így az összes nyílászáró műanyagra lett cserélve, és a villamos hálózat is modernizálásra került. A rendszer teljesítménye bővült, és új éjszakai, nappali (3x25) és H-tarifa (3x16) áramkörök kerültek kiépítésre a hőszivattyú ellátására.
-Fűtés szempontjából két lehetőség közül választhatunk:
- Vegyes tüzelésű kazán
- Fő fűtési rendszerként működő hőszivattyú
Az ingatlanon gázcsonk is elérhető, így könnyedén bevezethető a gáz. Az északi és nyugati falak, valamint a garázs feletti rész szigetelve van, a födémre pedig 10 cm vastag kőzetgyapotot helyeztek el. Az emeleten a nappali és a hálószoba egy-egy klímával felszerelt.
Az ingatlan számos lehetőséget rejt magában, ideális választás lehet akár két generáció számára, vagy akár Airbnb-szolgáltatás céljára is.
A két szint különálló, de szükség esetén összenyitható.
Az alsó szinten található:
- Nappali
- Hálószoba
- Konyha
- Étkező
- Spájz
- Fürdőszoba
Az emeleten:
- Nappali
- Konyha
- Fürdőszoba
- 2,5 szoba (az egyik szoba ablak nélküli, beépítésre vár)
A 616 m²-es telek tartalmaz:
- Fedett, fűthető garázs
- További tároló helyiségek: fa tároló, külön garázs, gépészeti helyiség/nyári konyha, szerszámos, lomos tároló, valamint egy fúrt kút.
Tesco és Aldi 12 perc sétára
-Belváros 15 perc sétával elérhető
-Óvoda és iskola mindössze 10 perc sétára
-Buszmegállók 5 perc sétára találhatók
Ha keresel egy rugalmasan használható, több generáció számára is ideális otthont, vagy akár üzleti céllal szeretnél ingatlant, ne hagyd ki ezt a lehetőséget!
Registration Number
DHZ094418
Property Details
Sales
for sale
Legal Status
used
Character
house
Construction Method
brick
Net Size
259 m²
Gross Size
259 m²
Plot Size
616 m²
Heating
other
Ceiling Height
270 cm
Number of Levels Within the Property
2
Orientation
South-East
Condition
Good
Condition of Facade
Good
Year of Construction
1979
Number of Bathrooms
2
Position
street-facing
Water
Available
Electricity
Available
Sewer
Available
Rooms
living room
25.44 m²
room
17.22 m²
dining room
14.96 m²
kitchen
10.44 m²
corridor
19.6 m²
pantry
2.55 m²
toilet
1.44 m²
corridor
1.98 m²
living room
17.49 m²
room
16.27 m²
room
15.27 m²
room
9.68 m²
kitchen
9.33 m²
toilet
1.25 m²
corridor
3 m²
other
12 m²

Mecseki Lászlóné - Éva
Credit Expert